Retour
Disponibilité Immédiate
À Louer Bureaux 125 m² BUC (78530)
Ajouter au comparateur
Vous souhaitez faciliter votre recherche ?
Créez un compte
Présentation du bien
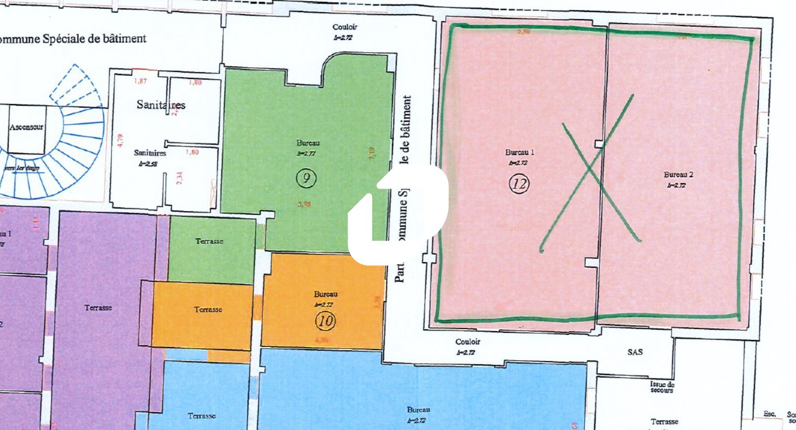
IMMPROVE vous propose à la location une surface de bureaux en étage dans un bâtiment récent à l’entrée de la zone d’activité de BUC.
La surface au 1er étage est en parfait état, réparties sur 2 espaces identiques donnant accès à une terrasse partagée. Les sanitaires sont en parties communes.
Surface totale
Nature
Divisibilité
Etat des locaux
125 m²
Bureaux
Non
Bon état
Prix & Conditions
Loyer :
100 € /m²/an (HT/HC)
1 041 € /mois (HT/HC)
12 500 € /an (HT/HC)
Dépôt de garantie :
3 mois de loyer HT HC
Prestations & équipements du bien
Le bâtiment
Immeuble récent
Façade en bardage
Parties communes de qualité
Les espaces de travail
Fibre optique
Bon état
Espace ouvert
Faux plafonds
Fibre optique
Le confort au quotidien
Locaux lumineux
Sol PVC
Sécurité du site
Interphone
Site clos
Système de télésurveillance
Interphone
Prestations spécifiques
• Chauffage électrique
Extérieur
Terrasse partagée
Terrasse partagée
Autres
• Sanitaires communs
Répartition & surfaces des espaces
Tableau des divisibilités
| Type | Étage | Surface | Loyer (€/m²/an HT HC) |
Charges (€/m²/an HT HC) |
|---|---|---|---|---|
| Bureaux | 1er étage | 125 m² | 100.00 | 14.40 |
Performance énergétique du bien (DPE)


Informations non contractuelles
Localisation & accès
Transports en commun à proximité
Gare de Versailles Chantiers
Accès routier
Autoroute A86
Nationales N12 et N118
Adresses
approximatives
Adresses
précises
Nos nouveaux biens qui pourraient vous intéresser
Les entrepreneurs ayant consulté cette offre ont aussi consulté celles ci
Bureaux - 105m²
SAINT JEAN DE VEDAS (34430)
SAINT JEAN DE VEDAS (34430)
1 458.36€/mois HT HC
Disponibilité : Immédiate
Surface : 105 m²
Bureaux - 330.50m²
PARIS (75013)
PARIS (75013)
10 642.50€/mois HT HC
Disponibilité : Immédiate
Surface : 330.50 m²