Retour
Disponibilité Immédiate
À Louer Bureaux 766 m² divisibles à partir de 254 m² BOULOGNE BILLANCOURT (92100)
Ajouter au comparateur
Vous souhaitez faciliter votre recherche ?
Créez un compte
Présentation du bien
Sur la commune de Boulogne Billancourt, IMMPROVE vous propose à la location, des surfaces de bureaux lumineuses et traversantes, avec terrasses privatives, situées dans un immeuble moderne au pied du métro Billancourt, Ligne 9. Ces espaces offrent un cadre de travail agréable et fonctionnel, idéalement placés pour une accessibilité optimale. Profitez de bureaux de qualité dans un environnement dynamique et bien desservi, parfait pour développer votre activité.
Surface totale
Nature
Divisibilité
Etat des locaux
766 m²
Bureaux
Oui à partir de 254 m²
Etat d’usage
Prix & Conditions
Loyer :
310 € /m²/an (HT/HC)
6 561 € /mois (HT/HC)
78 740 € /an (HT/HC)
Divisibles à partir de 254 m²
Impôt foncier :
25.99
Taxe bureaux :
23.32
Dépôt de garantie :
3 mois de loyer HT HC
Conditions location :
. Le hall d’accueil et les parties communes
ont fait l’objet d’une rénovation
. Parkings int. (20) : 1 200,00 €/U/an HT HC
ont fait l’objet d’une rénovation
. Parkings int. (20) : 1 200,00 €/U/an HT HC
Prestations & équipements du bien
Les espaces de travail
Le hall d’accueil et les parties communes
Les plateaux ont été rénovés par le bailleur
Open space
Salle de réunion
Le confort au quotidien
Ascenseurs . 6ème étage : 49 m² de terrasse privative
Climatisation
Sécurité du site
Interphone et digicode
Autres
ont fait l’objet d’une rénovation
Contrôle d’accès
(2 grandes et 2 petites loggias)
Surfaces traversantes et lumineuses
Etage privatif
. Le hall d’accueil et les parties communes
ont fait l’objet d’une rénovation
. Parkings int. (20) : 1 200,00 €/U/an HT HC
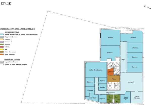
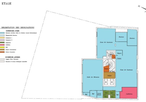
Répartition & surfaces des espaces
Tableau des divisibilités
| Type | Étage | Surface | Loyer (€/m²/an HT HC) |
Charges (€/m²/an HT HC) |
|---|---|---|---|---|
| Bureaux | 2ème étage | 254 m² | 310.00 | 54.00 |
| Bureaux | 3ème étage | 254 m² | 310.00 | 54.00 |
| Bureaux | 4ème étage | 258 m² | 310.00 | 54.00 |
Performance énergétique du bien (DPE)


Informations non contractuelles
Localisation & accès
Transports en commun à proximité
389
N12
N61
Adresses
approximatives
Adresses
précises
Nos nouveaux biens qui pourraient vous intéresser
Bureaux - 4 931m² Divisibles à partir de 311 m²
BOULOGNE BILLANCOURT (92100)
BOULOGNE BILLANCOURT (92100)
16 829.17€/mois HT HC
Disponibilité : Septembre 2026
Surface : divisibles à partir de 311 m²
Bureaux - 737m² Divisibles à partir de 199 m²
BOULOGNE BILLANCOURT (92100)
BOULOGNE BILLANCOURT (92100)
4 882.80€/mois HT HC
Disponibilité : Immédiate
Surface : divisibles à partir de 199 m²
Bureaux - 274m²
BOULOGNE BILLANCOURT (92100)
BOULOGNE BILLANCOURT (92100)
7 306.67€/mois HT HC
Disponibilité : Juin 2026
Surface : 274 m²
Bureaux - 236m²
BOULOGNE BILLANCOURT (92100)
BOULOGNE BILLANCOURT (92100)
6 686.67€/mois HT HC
Disponibilité : Immédiate
Surface : 236 m²
Les entrepreneurs ayant consulté cette offre ont aussi consulté celles ci
Bureaux - 348.02m²
BIEVRES (91570)
BIEVRES (91570)
3 480.00€/mois HT HC
Disponibilité : 1er juillet 2026
Surface : 348.02 m²
Bureaux - 288.28m²
BIEVRES (91570)
BIEVRES (91570)
2 880.00€/mois HT HC
Disponibilité : 1er juillet 2026
Surface : 288.28 m²
Bureaux et Activités - 4 645.22m² Divisibles à partir de 249.90 m²
VILLIERS SUR MARNE (94350)
VILLIERS SUR MARNE (94350)
9 870.00€/mois HT HC
Disponibilité : Immédiate
Surface : divisibles à partir de 249.90 m²
Bureaux - 447m²
MOUSSY LE NEUF (77230)
MOUSSY LE NEUF (77230)
4 097.50€/mois HT HC
Disponibilité : Immédiate
Surface : 447 m²