Retour
Disponibilité Immédiate
À Louer Bureaux 980 m² divisibles à partir de 174 m² LE BELLEVUE 95 -97 RUE DE BELLEVUE BOULOGNE BILLANCOURT (92100)
Ajouter au comparateur
Vous souhaitez faciliter votre recherche ?
Créez un compte
Présentation du bien
Entre le Pont de St cloud et le Pont de Sèvres, Immprove vous propose de louer des bureaux au sein d'un bel immeuble tertiaire qui a fait l’objet d’une rénovation complète et proposant un bel espace d’accueil, d’une douche commune.
Surface totale
Nature
Divisibilité
Etat des locaux
980 m²
Bureaux
Oui à partir de 174 m²
Bon état
Prix & Conditions
Loyer :
320 € /m²/an (HT/HC)
4 640 € /mois (HT/HC)
55 680 € /an (HT/HC)
Divisibles à partir de 174 m²
Impôt foncier :
16.87
Dépôt de garantie :
3 mois de loyer HT HC
Conditions location :
. TAXE PARKING : 1,14 €/M²
Prestations & équipements du bien
Les espaces de travail
Fibre optique
Parkings vélo . Bureaux entièrement rénovés
Cuisine aménagée
Le confort au quotidien
Climatisation réversible neuves
Sécurité du site
Double Ascenseur sécurisé par badge
Contrôle d'accès par badge et interphone
Autres
Immeuble tertiaire/ moderne
Accès P.M.R.
Hall d’entrée qui a fait l’objet d’une rénovation et doté d'un sanitaire P.M.R. et d'une douche
Sanitaires PMR
Le RDC est ERP
. TAXE PARKING : 1,14 €/M²
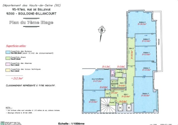
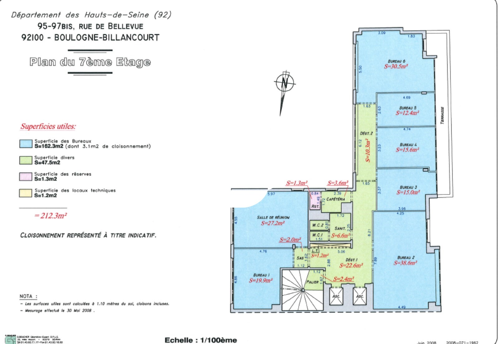
Répartition & surfaces des espaces
Tableau des divisibilités
| Type | Étage | Surface | Loyer (€/m²/an HT HC) |
Charges (€/m²/an HT HC) |
|---|---|---|---|---|
| Bureaux | Rez-de-Chaussée | 174 m² | 320.00 | 48.00 |
| Bureaux | 3ème étage | 272 m² | 320.00 | 48.00 |
| Bureaux | 4ème étage | 273 m² | 320.00 | 48.00 |
| Bureaux | 6ème étage | 261 m² | 320.00 | 48.00 |
Performance énergétique du bien (DPE)


Informations non contractuelles
Localisation & accès
Transports en commun à proximité
ligne 8
Accès routier
N118
A13
Adresses
approximatives
Adresses
précises
Nos nouveaux biens qui pourraient vous intéresser
Bureaux - 737m² Divisibles à partir de 199 m²
BOULOGNE BILLANCOURT (92100)
BOULOGNE BILLANCOURT (92100)
4 882.80€/mois HT HC
Disponibilité : Immédiate
Surface : divisibles à partir de 199 m²
Bureaux - 414.20m² Divisibles à partir de 150 m²
BOULOGNE BILLANCOURT (92100)
BOULOGNE BILLANCOURT (92100)
9 487.50€/mois HT HC
Disponibilité : Immédiate
Surface : divisibles à partir de 150 m²
Bureaux - 185m²
BOULOGNE BILLANCOURT (92100)
BOULOGNE BILLANCOURT (92100)
6 123.04€/mois HT HC
Disponibilité : Après accord
Surface : 185 m²
Bureaux - 145m²
BOULOGNE BILLANCOURT (92100)
BOULOGNE BILLANCOURT (92100)
3 987.50€/mois HT HC
Disponibilité : Immédiate
Surface : 145 m²
Les entrepreneurs ayant consulté cette offre ont aussi consulté celles ci
Bureaux - 348.02m²
BIEVRES (91570)
BIEVRES (91570)
3 480.00€/mois HT HC
Disponibilité : 1er juillet 2026
Surface : 348.02 m²
Bureaux - 288.28m²
BIEVRES (91570)
BIEVRES (91570)
2 880.00€/mois HT HC
Disponibilité : 1er juillet 2026
Surface : 288.28 m²
Bureaux et Activités - 4 645.22m² Divisibles à partir de 249.90 m²
VILLIERS SUR MARNE (94350)
VILLIERS SUR MARNE (94350)
54 180.00€/mois HT HC
Disponibilité : Immédiate
Surface : divisibles à partir de 249.90 m²
Bureaux - 447m²
MOUSSY LE NEUF (77230)
MOUSSY LE NEUF (77230)
4 097.50€/mois HT HC
Disponibilité : Immédiate
Surface : 447 m²