Retour
Bureaux - 3 434m²
Bureaux - 3 434m²
à Louer
16-18 RUE DU DOME BOULOGNE BILLANCOURT (92100)
DESCRIPTION
Au sein d’un immeuble indépendant disposant de nombreuses terrasses, Immprove vous propose des plateaux de bureaux climatisés. Le lot du rdc et 1er étage sont classés en CINASPIC et peuvent donc accueillir du public. Le hall d’accueil peut être privatif pour cet espace. Espace lounge et cafétéria avec accès à un jardin commun.
En savoir plus
. Immeuble de standing. Hall d'accueil rénové
. Hôtesse d'accueil
. Contrôle d'accès par badge
. Digicode
. Vidéosurveillance
. 2 Ascenseurs . Faux plafonds
. Cloisonnement amovible
. Possibilité de normes E.R.P.au rdc et 1er étage
Consommations énergétiques


Informations non contractuelles
Bureaux à partir de
300 € /m²/an (HT/HC)
Divisibles à partir de 330 m²
À partir de
8 250 € /mois (HT/HC)
Divisibles à partir de 330 m²
À partir de
99 000 € /an (HT/HC)
Divisibles à partir de 330 m²
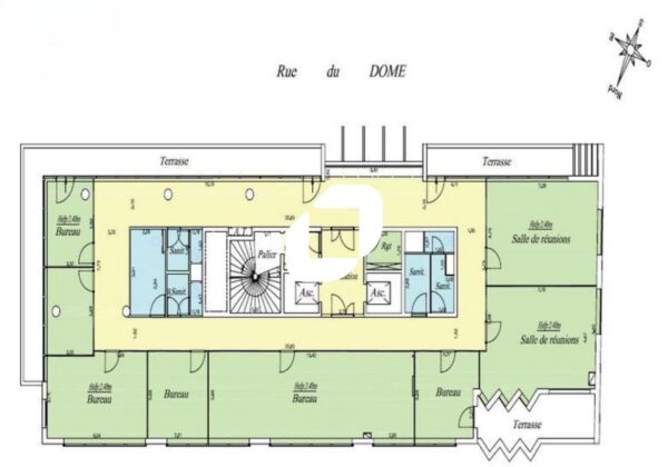
Tableau des divisibilités
| Type | Étage | Surface | Loyer (€/m²/an HT HC) |
Charges (€/m²/an HT HC) |
|---|---|---|---|---|
| Bureaux | Rez-de-Chaussée | 650 m² | 300.00 | 63.30 |
| Bureaux | 1er étage | 330 m² | 300.00 | 63.30 |
| Bureaux | 1er étage | 672 m² | 300.00 | 63.30 |
| Bureaux | 2ème étage | 694 m² | 300.00 | 63.30 |
| Bureaux | 3ème étage | 694 m² | 300.00 | 63.30 |
| Bureaux | 7ème étage | 394 m² | 300.00 | 63.30 |
Caractéristiques
. 80 emplacements de Parkings en S/Sol : 1 200,00 €/U/an
- Surface 3 434 m²
- Etat des locaux Restructuré
- Ascenseur oui
- Digicode oui
Adresses
approximatives
Adresses
précises
Nos nouveaux biens qui pourraient vous intéresser
Bureaux - 4 931m² Divisibles à partir de 311 m²
à Louer
BOULOGNE BILLANCOURT (92100)
Voir le bien
16 829.17€/mois HT HC
Les entrepreneurs ayant consulté cette offre ont aussi consulté celles ci
Les services Immprove
Une gamme complète de services qui facilitent vos démarches et destinée à satisfaire vos attentes