Retour
Disponibilité Immédiate
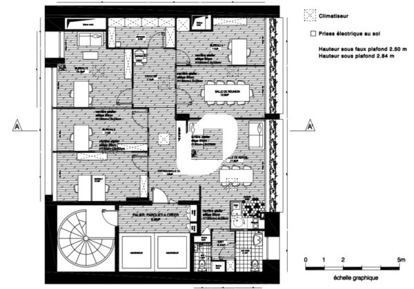
À Louer Bureaux 180.40 m² BOULOGNE BILLANCOURT (92100)
Ajouter au comparateur
Vous souhaitez faciliter votre recherche ?
Créez un compte
Présentation du bien
Idéalement situés, Immprove vous propose des bureaux rénovés à proximité du métro 10 "Pont de St Cloud", dans un quartier vivant, proche du stade, des commerces et des restaurants. Surface climatisée disposant de nombreux parkings !
Surface totale
Nature
Divisibilité
Etat des locaux
180.40 m²
Bureaux
Non
Bon état
Prix & Conditions
Loyer :
340 € /m²/an (HT/HC)
5 100 € /mois (HT/HC)
61 200 € /an (HT/HC)
Impôt foncier :
29.60
Taxe bureaux :
24.7
Dépôt de garantie :
3 mois de loyer HT HC
Prestations & équipements du bien
Les espaces de travail
Accès sécurisé par digicode et sas d'accueil
Locaux rénovés
Fibre optique
Le confort au quotidien
Climatisation réversible
Les accès
Immeuble situé en face du stage Le Gallo, accès direct à la A13 et et aux Quais de Seine, proche du métro, des commerces et toutes les commodités
Locaux disposant d'un accès PMR
Accessibilité
Double batterie d'ascenseurs
Autres
Immeuble tertiaire de très bon standing
Etage privatif
Douche
Répartition & surfaces des espaces
Tableau des divisibilités
| Type | Étage | Surface | Loyer (€/m²/an HT HC) |
Charges (€/m²/an HT HC) |
|---|---|---|---|---|
| Parkings | 840.00 | Prix sur demande | ||
| Bureaux | 1er étage | 180 m² | 340.00 | 33.00 |
Performance énergétique du bien (DPE)


Informations non contractuelles
Localisation & accès
Transports en commun à proximité
Accès routier
Parc de Saint Cloud (T2)
A13
Boulevard Périphérique
N118
Adresses
approximatives
Adresses
précises
Nos nouveaux biens qui pourraient vous intéresser
Bureaux - 737m² Divisibles à partir de 199 m²
BOULOGNE BILLANCOURT (92100)
BOULOGNE BILLANCOURT (92100)
4 882.80€/mois HT HC
Disponibilité : Immédiate
Surface : divisibles à partir de 199 m²
Bureaux - 980m² Divisibles à partir de 174 m²
BOULOGNE BILLANCOURT (92100)
BOULOGNE BILLANCOURT (92100)
4 640.00€/mois HT HC
Disponibilité : Immédiate
Surface : divisibles à partir de 174 m²
Bureaux - 414.20m² Divisibles à partir de 150 m²
BOULOGNE BILLANCOURT (92100)
BOULOGNE BILLANCOURT (92100)
9 487.50€/mois HT HC
Disponibilité : Immédiate
Surface : divisibles à partir de 150 m²
Bureaux - 185m²
BOULOGNE BILLANCOURT (92100)
BOULOGNE BILLANCOURT (92100)
6 123.04€/mois HT HC
Disponibilité : Après accord
Surface : 185 m²
Les entrepreneurs ayant consulté cette offre ont aussi consulté celles ci
Bureaux - 348.02m²
BIEVRES (91570)
BIEVRES (91570)
3 480.00€/mois HT HC
Disponibilité : 1er juillet 2026
Surface : 348.02 m²
Bureaux - 288.28m²
BIEVRES (91570)
BIEVRES (91570)
2 880.00€/mois HT HC
Disponibilité : 1er juillet 2026
Surface : 288.28 m²
Bureaux et Activités - 4 645.22m² Divisibles à partir de 249.90 m²
VILLIERS SUR MARNE (94350)
VILLIERS SUR MARNE (94350)
54 180.00€/mois HT HC
Disponibilité : Immédiate
Surface : divisibles à partir de 249.90 m²
Bureaux - 447m²
MOUSSY LE NEUF (77230)
MOUSSY LE NEUF (77230)
4 097.50€/mois HT HC
Disponibilité : Immédiate
Surface : 447 m²