Retour
Disponibilité Immédiate
À Louer Bureaux 258 m² 76 BOULEVARD DE LA REPUBLIQUE BOULOGNE BILLANCOURT (92100)
Ajouter au comparateur
Vous souhaitez faciliter votre recherche ?
Créez un compte
Présentation du bien
Au sein d'un immeuble de standing disposant d'une très bonne visibilité à la sortie immédiate du périphérique, Immprove vous propose plusieurs surfaces de bureaux aménagés et climatisés. Très bonne déserte en transport métro ligne 12 à 2 minutes à pied.
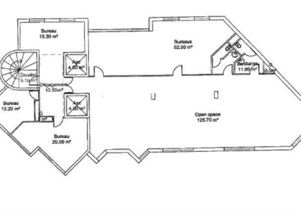
Plateaux traversants lumineux comprenant plusieurs bureaux fermés un grand open, une salle de réunion et coin cuisine équipé.
Surface totale
Nature
Divisibilité
Etat des locaux
258 m²
Bureaux
Non
Rénové
Prix & Conditions
Loyer :
310 € /m²/an (HT/HC)
6 665 € /mois (HT/HC)
79 980 € /an (HT/HC)
Impôt foncier :
27.72
Taxe bureaux :
25.5
Dépôt de garantie :
3 mois de loyer HT HC
Prestations & équipements du bien
Le bâtiment
Immeuble moderne
Les espaces de travail
Hall d'entrée . Bureaux rénovés en espace ouvert
Le confort au quotidien
Climatisation
Sécurité du site
Digicode
Accessibilité
2 ascenseurs
Autres
Lumineux
Câblage
Répartition & surfaces des espaces
Tableau des divisibilités
| Type | Étage | Surface | Loyer (€/m²/an HT HC) |
Charges (€/m²/an HT HC) |
|---|---|---|---|---|
| Parkings | 1er Sous-Sol | 1 200.00 | Prix sur demande | |
| Bureaux | 5ème étage | 258 m² | 310.00 | 69.19 |
Performance énergétique du bien (DPE)


Informations non contractuelles
Localisation & accès
Transports en commun à proximité
123
126
175
Accès routier
AVENUE VICTOR HUGO-MARCEL SEMBAT (T2)
Adresses
approximatives
Adresses
précises
Nos nouveaux biens qui pourraient vous intéresser
Bureaux - 4 931m² Divisibles à partir de 311 m²
BOULOGNE BILLANCOURT (92100)
BOULOGNE BILLANCOURT (92100)
16 829.17€/mois HT HC
Disponibilité : Septembre 2026
Surface : divisibles à partir de 311 m²
Bureaux - 737m² Divisibles à partir de 199 m²
BOULOGNE BILLANCOURT (92100)
BOULOGNE BILLANCOURT (92100)
4 882.80€/mois HT HC
Disponibilité : Immédiate
Surface : divisibles à partir de 199 m²
Bureaux - 274m²
BOULOGNE BILLANCOURT (92100)
BOULOGNE BILLANCOURT (92100)
7 306.67€/mois HT HC
Disponibilité : Juin 2026
Surface : 274 m²
Bureaux - 236m²
BOULOGNE BILLANCOURT (92100)
BOULOGNE BILLANCOURT (92100)
6 686.67€/mois HT HC
Disponibilité : Immédiate
Surface : 236 m²
Les entrepreneurs ayant consulté cette offre ont aussi consulté celles ci
Bureaux - 83.60m²
BUSSY SAINT GEORGES (77600)
BUSSY SAINT GEORGES (77600)
1 288.00€/mois HT HC
Disponibilité : Immédiate
Surface : 83.60 m²
Bureaux - 6 934m² Divisibles à partir de 173 m²
LYON (69009)
LYON (69009)
Prix sur demande
Disponibilité : Selon les lots – nous consulter
Surface : divisibles à partir de 173 m²