Retour
Disponibilité Immédiate
À Louer Bureaux 150 m² 91-93 AVENUE ARISTIDE BRIAND MONTROUGE (92120)
Ajouter au comparateur
Vous souhaitez faciliter votre recherche ?
Créez un compte
Présentation du bien
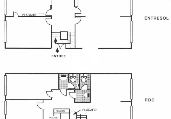
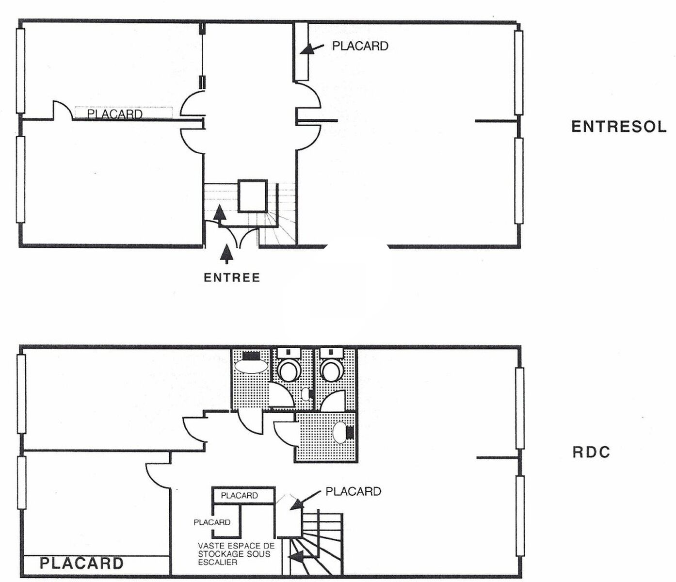
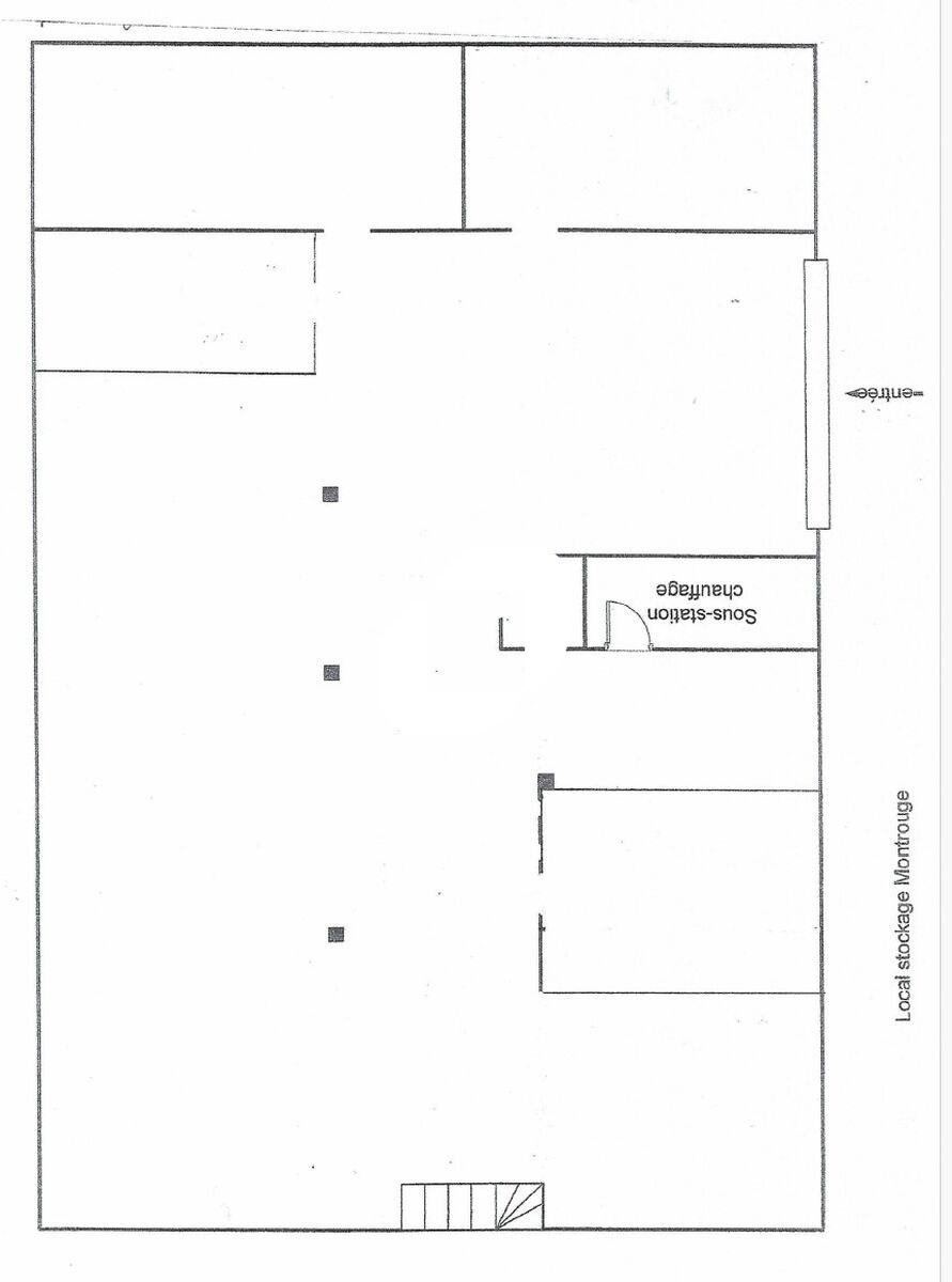
IMMPROVE vous propose dans un ensemble immobilier mixte située proche de la Nationale 20, dans la commune de Montrouge, à proximité des transports (bus, métro ligne 4 et non loin du RER B), une surface de bureaux en cours de rénovation de 150 m² répartie sur deux niveaux, et une surface de stockage de 255 m² en sous sol.
Parkings.
Surface totale
Nature
Divisibilité
Etat des locaux
150 m²
Bureaux
Non
Bon état
Prix & Conditions
Loyer :
190 € /m²/an (HT/HC)
2 375 € /mois (HT/HC)
28 500 € /an (HT/HC)
Impôt foncier :
27.60
Taxe bureaux :
21.99
Dépôt de garantie :
3 mois de loyer HT HC
Conditions location :
foncier :
bureaux : 27,6 € HT / m²/ an
Activités : 8 € HT / m²/ an
bureaux : 27,6 € HT / m²/ an
Activités : 8 € HT / m²/ an
Prestations & équipements du bien
Les espaces de travail
La surface sera livrée rénovée (Peinture, sol, changement des dalles de faux plafond à l’entrée, sanitaires)
En rez de chaussée haut : 4 bureaux cloisonnés et un espace type accueil
En rez de jardin : 2 sanitaires privatifs, un espace cuisine, 1 grand open space, et un bureau.
Luminaires LED au plafond
Cloisons sèches
Le confort au quotidien
Sol PVC imitation parquet
Prestations spécifiques
Chauffage : Chauff. collectif gaz
chauffage central immeuble
Autres
Bureaux traversants en duplex
Porte blindée
foncier :
bureaux : 27,6 € HT / m²/ an
Activités : 8 € HT / m²/ an
Répartition & surfaces des espaces
Tableau des divisibilités
| Type | Étage | Surface | Loyer (€/m²/an HT HC) |
Charges (€/m²/an HT HC) |
|---|---|---|---|---|
| Bureaux | RDC/Entresol | 150 m² | 190.00 | 28.40 |
| Parkings | 1er Sous-Sol | 1 200.00 | Prix sur demande |
Performance énergétique du bien (DPE)


Informations non contractuelles
Localisation & accès
Transports en commun à proximité
T3
Accès routier
RN20
A6
Boulevard Périphérique
Adresses
approximatives
Adresses
précises
Nos nouveaux biens qui pourraient vous intéresser
Bureaux - 478m² Divisibles à partir de 150 m²
MONTROUGE (92120)
MONTROUGE (92120)
2 437.50€/mois HT HC
Disponibilité : Immédiate
Surface : divisibles à partir de 150 m²
Bureaux - 169.65m²
MONTROUGE (92120)
MONTROUGE (92120)
4 675.00€/mois HT HC
Disponibilité : Immédiate
Surface : 169.65 m²
Les entrepreneurs ayant consulté cette offre ont aussi consulté celles ci
Bureaux - 348.02m²
BIEVRES (91570)
BIEVRES (91570)
3 480.00€/mois HT HC
Disponibilité : 1er juillet 2026
Surface : 348.02 m²
Bureaux - 288.28m²
BIEVRES (91570)
BIEVRES (91570)
2 880.00€/mois HT HC
Disponibilité : 1er juillet 2026
Surface : 288.28 m²
Bureaux et Activités - 4 645.22m² Divisibles à partir de 249.90 m²
VILLIERS SUR MARNE (94350)
VILLIERS SUR MARNE (94350)
9 870.00€/mois HT HC
Disponibilité : Immédiate
Surface : divisibles à partir de 249.90 m²
Bureaux - 447m²
MOUSSY LE NEUF (77230)
MOUSSY LE NEUF (77230)
4 097.50€/mois HT HC
Disponibilité : Immédiate
Surface : 447 m²