Retour
Disponibilité Immédiate
À Louer Bureaux 1 000 m² NEUILLY SUR SEINE (92200)
Ajouter au comparateur
Vous souhaitez faciliter votre recherche ?
Créez un compte
Présentation du bien
Immprove vous propose un plateau de bureaux livré rénové, vitré toute hauteur, en étage. L'immeuble dispose d'un accueil et d'un très beau jardin commun.
Surface totale
Nature
Divisibilité
Etat des locaux
1 000 m²
Bureaux
Non
Bon état
Prix & Conditions
Loyer :
440 € /m²/an (HT/HC)
36 666 € /mois (HT/HC)
440 000 € /an (HT/HC)
Impôt foncier :
35.47
Taxe bureaux :
31.84
Dépôt de garantie :
3 mois de loyer HT HC
Conditions location :
Assurance : 3.25 €/m²/an
Provisions: 82 €/m² HT/an
Provisions pour charges parking : 92€ HT/emplacement/an
Charges électricité privative: 40 296 €/ an
Taxe additionnelle sur les stationnements 23 €/m²
Provisions: 82 €/m² HT/an
Provisions pour charges parking : 92€ HT/emplacement/an
Charges électricité privative: 40 296 €/ an
Taxe additionnelle sur les stationnements 23 €/m²
Prestations & équipements du bien
Le bâtiment
Immeuble récent . Archives 47 m² à 260 euros/m²
Les espaces de travail
Hôtesse d'accueil
Le confort au quotidien
Jardin paysager
Extérieur
Parkings (77U) : 2 000 €/U/an HT HC
Autres
Faux plancher
Faux plafond
Assurance : 3.25 €/m²/an
Provisions: 82 €/m² HT/an
Provisions pour charges parking : 92€ HT/emplacement/an
Charges électricité privative: 40 296 €/ an
Taxe additionnelle sur les stationnements 23 €/m²
Répartition & surfaces des espaces
Tableau des divisibilités
| Type | Étage | Surface | Loyer (€/m²/an HT HC) |
Charges (€/m²/an HT HC) |
|---|---|---|---|---|
| Parkings | Sous-Sol | 1 800.00 | 80.00 | |
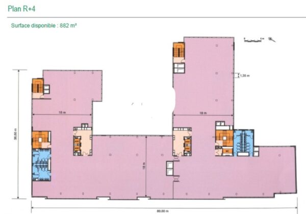
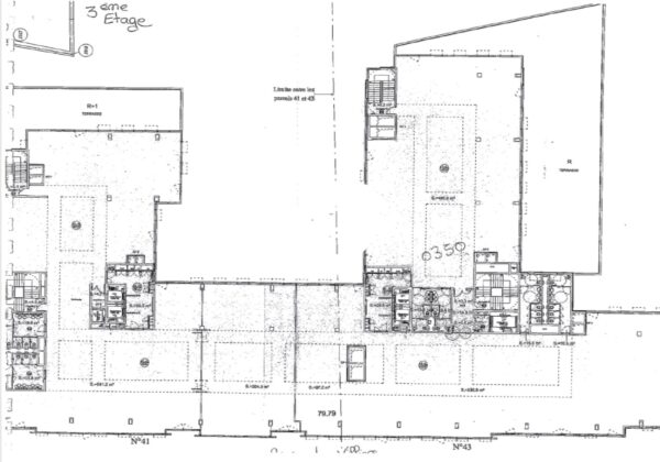
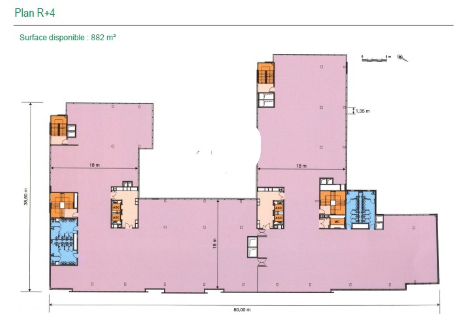
| Bureaux | 3ème étage | 1 000 m² | 440.00 | 80.00 |
Performance énergétique du bien (DPE)


Informations non contractuelles
Localisation & accès
Transports en commun à proximité
174
93
274
163
164
Adresses
approximatives
Adresses
précises
Nos nouveaux biens qui pourraient vous intéresser
Bureaux - 4 574m² Divisibles à partir de 1 119 m²
NEUILLY SUR SEINE (92200)
NEUILLY SUR SEINE (92200)
116 103.33€/mois HT HC
Disponibilité : Immédiate
Surface : divisibles à partir de 1 119 m²
Bureaux - 2 270m² Divisibles à partir de 1 135 m²
NEUILLY SUR SEINE (92200)
NEUILLY SUR SEINE (92200)
Prix sur demande
Disponibilité : 3 mois après accord
Surface : divisibles à partir de 1 135 m²
Les entrepreneurs ayant consulté cette offre ont aussi consulté celles ci
Bureaux - 348.02m²
BIEVRES (91570)
BIEVRES (91570)
3 480.00€/mois HT HC
Disponibilité : 1er juillet 2026
Surface : 348.02 m²
Bureaux - 288.28m²
BIEVRES (91570)
BIEVRES (91570)
2 880.00€/mois HT HC
Disponibilité : 1er juillet 2026
Surface : 288.28 m²
Bureaux et Activités - 4 645.22m² Divisibles à partir de 249.90 m²
VILLIERS SUR MARNE (94350)
VILLIERS SUR MARNE (94350)
54 180.00€/mois HT HC
Disponibilité : Immédiate
Surface : divisibles à partir de 249.90 m²
Bureaux - 447m²
MOUSSY LE NEUF (77230)
MOUSSY LE NEUF (77230)
4 097.50€/mois HT HC
Disponibilité : Immédiate
Surface : 447 m²