Retour
Mairie de Montrouge
Disponibilité Immédiate
À Louer Bureaux 338.52 m² divisibles à partir de 31.03 m² MALAKOFF (92240)
Ajouter au comparateur
Vous souhaitez faciliter votre recherche ?
Créez un compte
Présentation du bien
IMMPROVE vous propose à Malakoff un plateau de bureau d'une surface de 338m² avec un bureau de 125 m2 non divisible et un autre de 213m2 divisible à partir de 31m², proches de toutes commodités.
Bureaux lumineux de standing récemment rénovés avec des matériaux de qualités, pour répondre précisément à vos besoins professionnels.
Sanitaires privatifs situés sur les parties communes, les lieux disposent aussi d'une cour en RDC.
Offre disponible immédiate à visiter sans tarder.
Surface totale
Nature
Divisibilité
Etat des locaux
338.52 m²
Bureaux
Oui à partir de 31.03 m²
Très bon état
Prix & Conditions
Loyer :
220 € /m²/an (HT/HC)
568 € /mois (HT/HC)
6 826 € /an (HT/HC)
Divisibles à partir de 31.03 m²
Impôt foncier :
38.77
Taxe bureaux :
19.18
Dépôt de garantie :
3 mois de loyer HT HC
Conditions location :
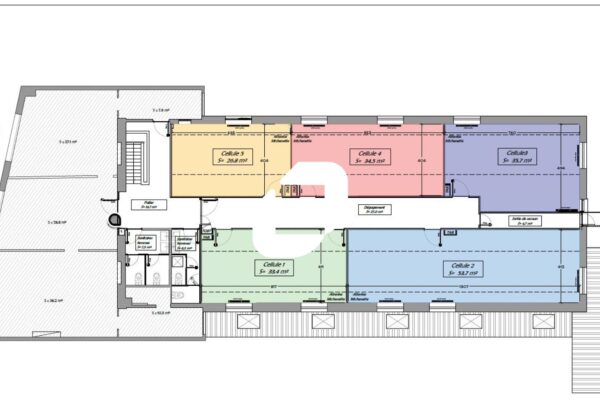
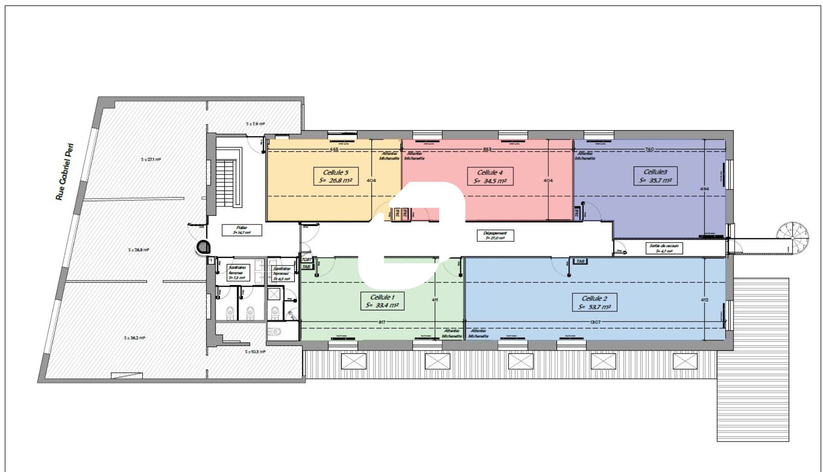
Bureaux Surf Utile:
1-26.8m2 4-53.7m2
2-33.4m2 5-35.7m2
3-34.5m2
1-26.8m2 4-53.7m2
2-33.4m2 5-35.7m2
3-34.5m2
Prestations & équipements du bien
Le bâtiment
Immeuble de bureaux
Les espaces de travail
Digicode . Locaux rénovés
Espace ouvert
Bureaux cloisonnés
Décloisonnement possible
Le confort au quotidien
Locaux lumineux
Double exposition
Cour commune
Moquette
Très belle hauteur sous plafond
Sécurité du site
Interphone
Prestations spécifiques
Chauffage collectif
Autres
Sanitaires en parties commune
Bureaux Surf Utile:
1-26.8m2 4-53.7m2
2-33.4m2 5-35.7m2
3-34.5m2
Répartition & surfaces des espaces
Tableau des divisibilités
| Type | Étage | Surface | Loyer (€/m²/an HT HC) |
Charges (€/m²/an HT HC) |
|---|---|---|---|---|
| Bureaux | 1er étage | 41 m² | 220.00 | 25.00 |
| Bureaux | 1er étage | 62 m² | 220.00 | 25.00 |
| Bureaux | 1er étage | 39 m² | 220.00 | 25.00 |
| Bureaux | 1er étage | 40 m² | 220.00 | 25.00 |
| Bureaux | 1er étage | 31 m² | 220.00 | 25.00 |
| Bureaux | 1er étage | 125 m² | 220.00 | 25.00 |
Performance énergétique du bien (DPE)


Informations non contractuelles
Localisation & accès
Transports en commun à proximité
66
Adresses
approximatives
Adresses
précises
Nos nouveaux biens qui pourraient vous intéresser
Bureaux - 3 327.77m² Divisibles à partir de 58.10 m²
MALAKOFF (92240)
MALAKOFF (92240)
5 261.67€/mois HT HC
Disponibilité : Immédiate
Surface : divisibles à partir de 58.10 m²
Bureaux - 3 488.14m² Divisibles à partir de 241.15 m²
MALAKOFF (92240)
MALAKOFF (92240)
10 898.33€/mois HT HC
Disponibilité : Immédiate
Surface : divisibles à partir de 241.15 m²
Bureaux - 962m² Divisibles à partir de 200 m²
MALAKOFF (92240)
MALAKOFF (92240)
4 833.33€/mois HT HC
Disponibilité : Immédiate
Surface : divisibles à partir de 200 m²
Bureaux - 1 524m² Divisibles à partir de 238 m²
MALAKOFF (92240)
MALAKOFF (92240)
14 761.67€/mois HT HC
Disponibilité : Immédiate
Surface : divisibles à partir de 238 m²
Les entrepreneurs ayant consulté cette offre ont aussi consulté celles ci
Bureaux - 348.02m²
BIEVRES (91570)
BIEVRES (91570)
3 480.00€/mois HT HC
Disponibilité : 1er juillet 2026
Surface : 348.02 m²
Bureaux - 288.28m²
BIEVRES (91570)
BIEVRES (91570)
2 880.00€/mois HT HC
Disponibilité : 1er juillet 2026
Surface : 288.28 m²
Bureaux et Activités - 4 645.22m² Divisibles à partir de 249.90 m²
VILLIERS SUR MARNE (94350)
VILLIERS SUR MARNE (94350)
9 870.00€/mois HT HC
Disponibilité : Immédiate
Surface : divisibles à partir de 249.90 m²
Bureaux - 447m²
MOUSSY LE NEUF (77230)
MOUSSY LE NEUF (77230)
4 097.50€/mois HT HC
Disponibilité : Immédiate
Surface : 447 m²