Retour
Disponibilité Immédiate
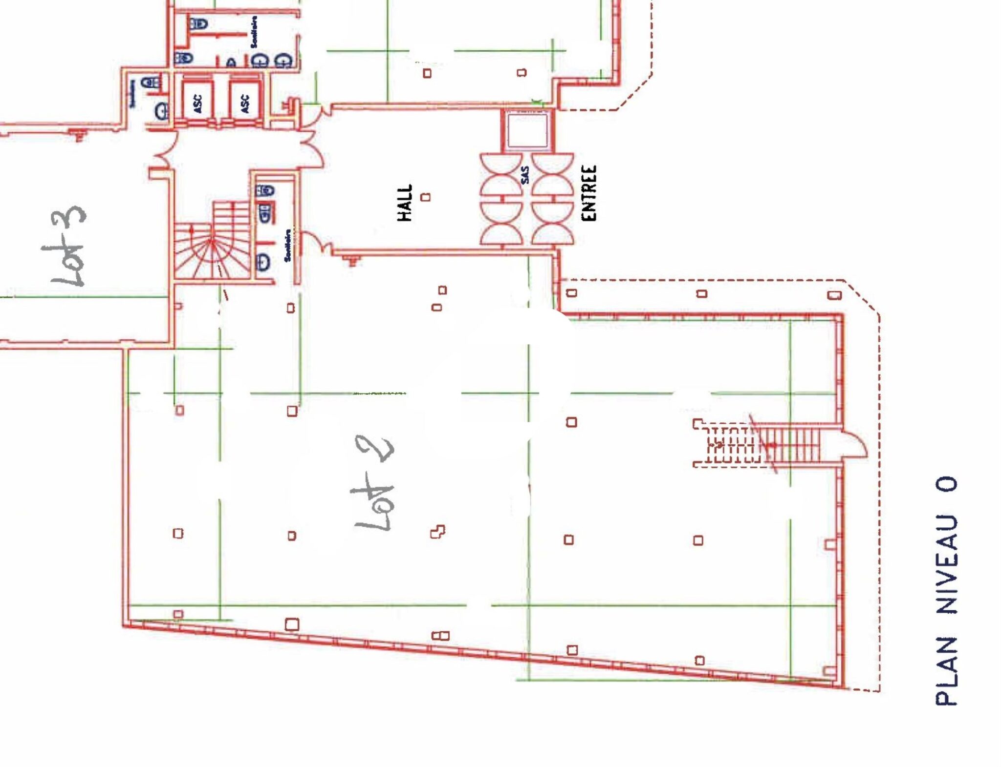
À Louer Bureaux 397 m² 58-60 RUE ETIENNE DOLET MALAKOFF (92240)
Ajouter au comparateur
Vous souhaitez faciliter votre recherche ?
Créez un compte
Présentation du bien
Nous vous proposons un plateau de bureaux entièrement rénové, situé au rez-de-chaussée d'un immeuble à Malakoff, à deux minutes à pied du métro de la ligne 13 Etienne Dolet. De plus, ce bien est accompagné de sept places de parking souterrain et de deux places de stationnement extérieures. Normes ERP !
Surface totale
Nature
Divisibilité
Etat des locaux
397 m²
Bureaux
Non
Bon état
Prix & Conditions
Loyer :
214 € /m²/an (HT/HC)
7 079 € /mois (HT/HC)
84 957 € /an (HT/HC)
Impôt foncier :
25.20
Taxe bureaux :
18.9
Dépôt de garantie :
3 mois de loyer HT HC
Conditions location :
Frais état des lieux : 500€ TTC pris en charge par le preneur à 50%
Prestations & équipements du bien
Le bâtiment
Façade mur rideau
Les espaces de travail
Bon état
Salle de réunion
Sanitaires privatifs
Prises RJ45
Le confort au quotidien
Climatisation réversible
Les accès
Accès véhicules légers
Portail d'accès
Sécurité du site
Digicode
Interphone
Sas d'entrée
Accessibilité
Ascenseur
Ascenseur PMR
Autres
Possibilité de normes E.R.P.
Frais état des lieux : 500€ TTC pris en charge par le preneur à 50%
Répartition & surfaces des espaces
Tableau des divisibilités
| Type | Étage | Surface | Loyer (€/m²/an HT HC) |
Charges (€/m²/an HT HC) |
|---|---|---|---|---|
| Parkings | Sous-Sol | 1 200.00 | 89.00 | |
| Bureaux | Rez-de-Chaussée | 397 m² | 214.11 | 31.50 |
| Parkings | Rez-de-Chaussée | 1 200.00 | 89.00 |
Performance énergétique du bien (DPE)


Informations non contractuelles
Localisation & accès
Transports en commun à proximité
Gare de Vanves Malakoff
T3
191
597
Adresses
approximatives
Adresses
précises
Nos nouveaux biens qui pourraient vous intéresser
Bureaux - 298.20m²
MALAKOFF (92240)
MALAKOFF (92240)
5 762.50€/mois HT HC
Disponibilité : Nous consulter
Surface : 298.20 m²
Les entrepreneurs ayant consulté cette offre ont aussi consulté celles ci
Bureaux - 348.02m²
BIEVRES (91570)
BIEVRES (91570)
3 480.00€/mois HT HC
Disponibilité : 1er juillet 2026
Surface : 348.02 m²
Bureaux - 288.28m²
BIEVRES (91570)
BIEVRES (91570)
2 880.00€/mois HT HC
Disponibilité : 1er juillet 2026
Surface : 288.28 m²
Bureaux et Activités - 4 645.22m² Divisibles à partir de 249.90 m²
VILLIERS SUR MARNE (94350)
VILLIERS SUR MARNE (94350)
9 870.00€/mois HT HC
Disponibilité : Immédiate
Surface : divisibles à partir de 249.90 m²
Bureaux - 447m²
MOUSSY LE NEUF (77230)
MOUSSY LE NEUF (77230)
4 097.50€/mois HT HC
Disponibilité : Immédiate
Surface : 447 m²