Retour
15
Disponibilité Immédiate
À Louer Bureaux 663.50 m² divisibles à partir de 80 m² 40 AVENUE AUGUSTIN DUMONT MALAKOFF (92240)
Ajouter au comparateur
Vous souhaitez faciliter votre recherche ?
Créez un compte
Présentation du bien
IMMPROVE vous propose dans un immeuble de bureaux de bon standing situé en plein coeur de Malakoff, et proche métro, des surfaces de bureaux divisibles en excellent état, cloisonnées et climatisées.
Terrasses privatives, parkings.
ERP possible.
Surface totale
Nature
Divisibilité
Etat des locaux
663.50 m²
Bureaux
Oui à partir de 80 m²
Bon état
Prix & Conditions
Loyer :
220 € /m²/an (HT/HC)
1 466 € /mois (HT/HC)
17 600 € /an (HT/HC)
Divisibles à partir de 80 m²
Impôt foncier :
35.87
Taxe bureaux :
19.18
Dépôt de garantie :
3 mois de loyer HT HC
Prestations & équipements du bien
Les espaces de travail
Luminaires LED
Cloisonnement amovible
Le confort au quotidien
Accès et sanitaires PMR . Locaux lumineux et traversants
Climatisation réversible
100 m² de terrasse privative au 5ème étage
60 m² de terrasse privative au 4ème étage
Accessibilité
Ascenseur
Locaux ERPéables
Extérieur
39 Parkings dont 6 électriques
50 m² de terrasse au RDC
55 m² de terrasse au Rez de jardin
Autres
Sols PVC
Sanitaires PMR
4ème et 5ème étages loués ensemble
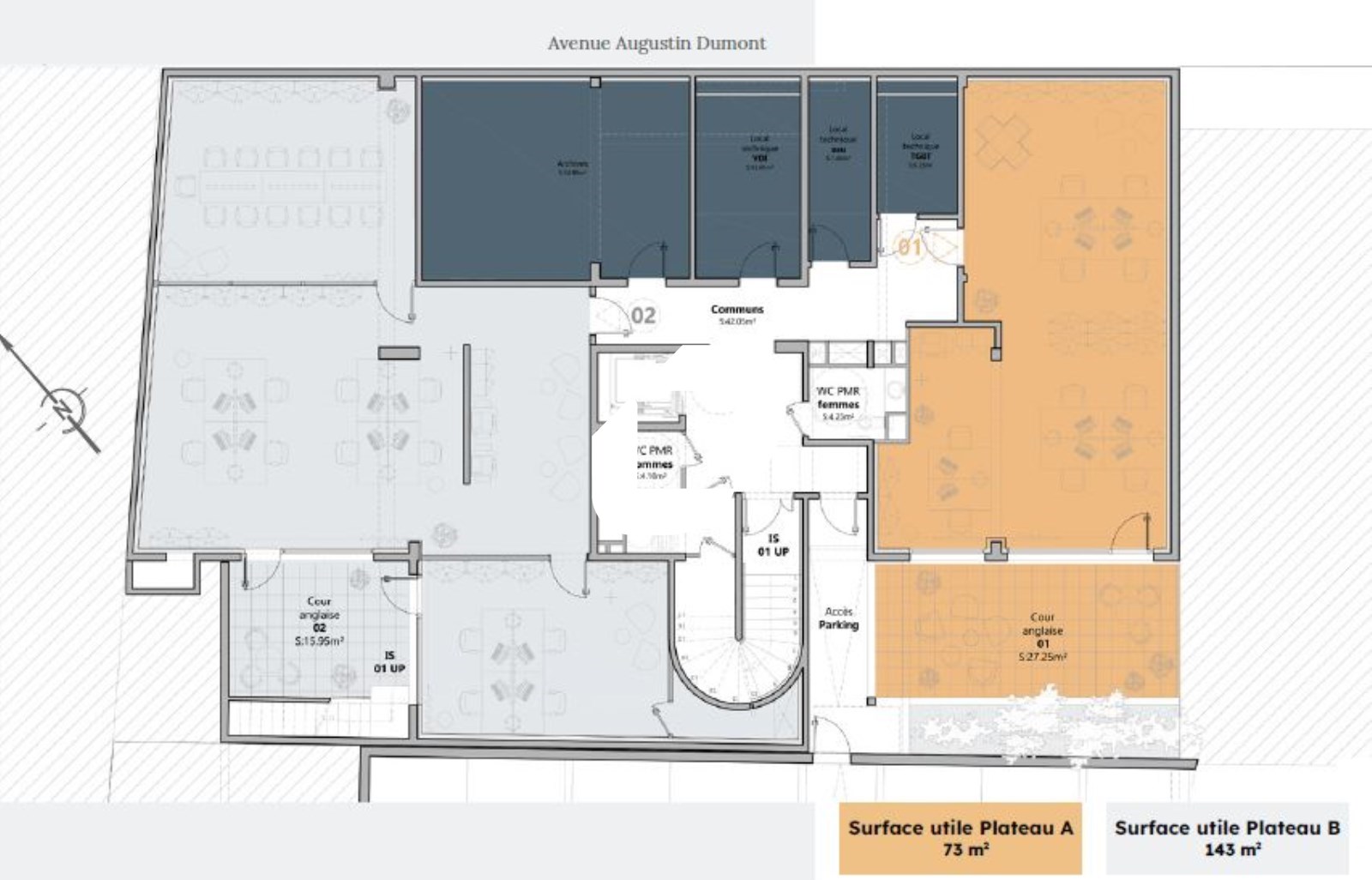
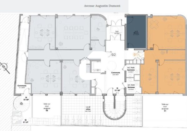
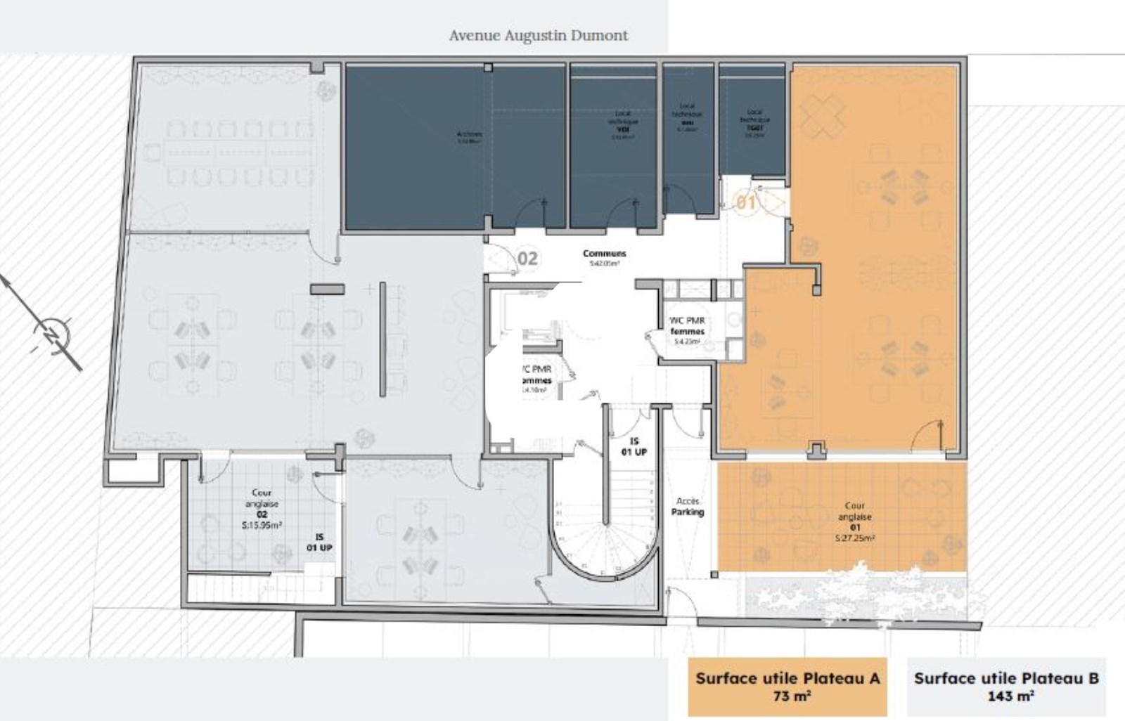
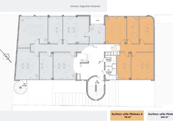
Répartition & surfaces des espaces
Tableau des divisibilités
| Type | Étage | Surface | Loyer (€/m²/an HT HC) |
Charges (€/m²/an HT HC) |
|---|---|---|---|---|
| Parkings | 1er Sous-Sol | Prix sur demande | Prix sur demande | |
| Archives | Rez-de-Jardin | 36 m² | 120.00 | 20.00 |
| Bureaux | Rez-de-Jardin | 80 m² | 220.00 | 20.00 |
| Bureaux | 1er étage | 107 m² | 280.00 | 20.00 |
| Bureaux | 1er étage | 184 m² | 280.00 | 20.00 |
| Bureaux | 2ème étage | 293 m² | 280.00 | 20.00 |
Performance énergétique du bien (DPE)


Informations non contractuelles
Localisation & accès
Transports en commun à proximité
Gare de Vanves Malakoff
T6 "Chatillon-Montrouge
126
Accès routier
Porte d'Orléan (3A)
Boulevard Périphérique "Porte de Vanves" D50 et D906
Adresses
approximatives
Adresses
précises
Nos nouveaux biens qui pourraient vous intéresser
Les entrepreneurs ayant consulté cette offre ont aussi consulté celles ci
Bureaux - 348.02m²
BIEVRES (91570)
BIEVRES (91570)
3 480.00€/mois HT HC
Disponibilité : 1er juillet 2026
Surface : 348.02 m²
Bureaux - 288.28m²
BIEVRES (91570)
BIEVRES (91570)
2 880.00€/mois HT HC
Disponibilité : 1er juillet 2026
Surface : 288.28 m²
Bureaux et Activités - 4 645.22m² Divisibles à partir de 249.90 m²
VILLIERS SUR MARNE (94350)
VILLIERS SUR MARNE (94350)
9 870.00€/mois HT HC
Disponibilité : Immédiate
Surface : divisibles à partir de 249.90 m²
Bureaux - 447m²
MOUSSY LE NEUF (77230)
MOUSSY LE NEUF (77230)
4 097.50€/mois HT HC
Disponibilité : Immédiate
Surface : 447 m²