À Louer Bureaux 2 239.60 m² divisibles à partir de 196 m² 41VH 41-47 RUE VICTOR HUGO BOIS COLOMBES (92270)
Présentation du bien
Prix & Conditions
Prestations & équipements du bien
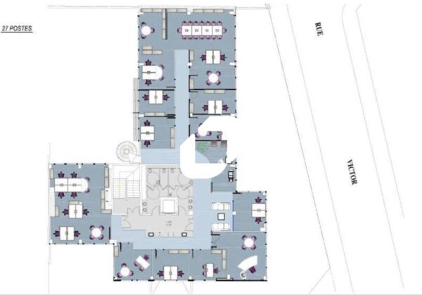
Hall d'accueil avec espaces annexes aménageables en salles de réunion et exposition
Climatisation réversible
Revêtement de sol : Moquette en dalles de 50 x 50anti-statique
Climatisation réversible de type VRV 3 tubes par cassettes en faux-plafond
Contrôle d'accès
Ascenseur
Parkings : 39 emplacements : 1200 euros
Immeuble THPE
Contrôle anti intrusion par détection centralisée
Alarme incendie
Stores extérieurs
Vitrage Toute Hauteur
Stores extérieurs sur façades Sud et Ouest / Protections solaires extérieures
Démarche Haute Qualité Environnementale . Surcharge admissible sur plancher : 250kg/m²
Faux-plafond : dalles en fibre minérale acoustique
Hauteur sous faux-plafond : 2.60 m / Plénum de +/-36cm
HSP : 2.60 m
SU : 2287m²
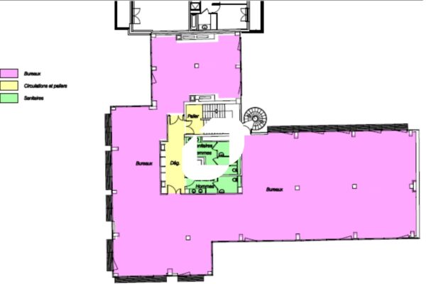
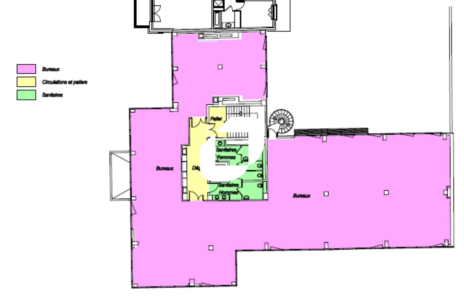
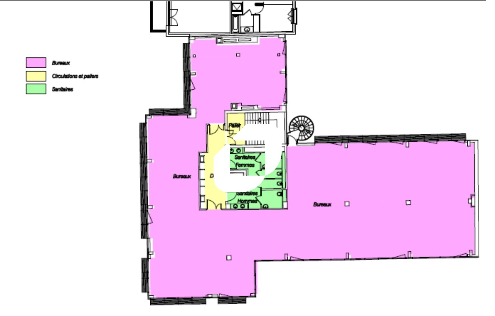
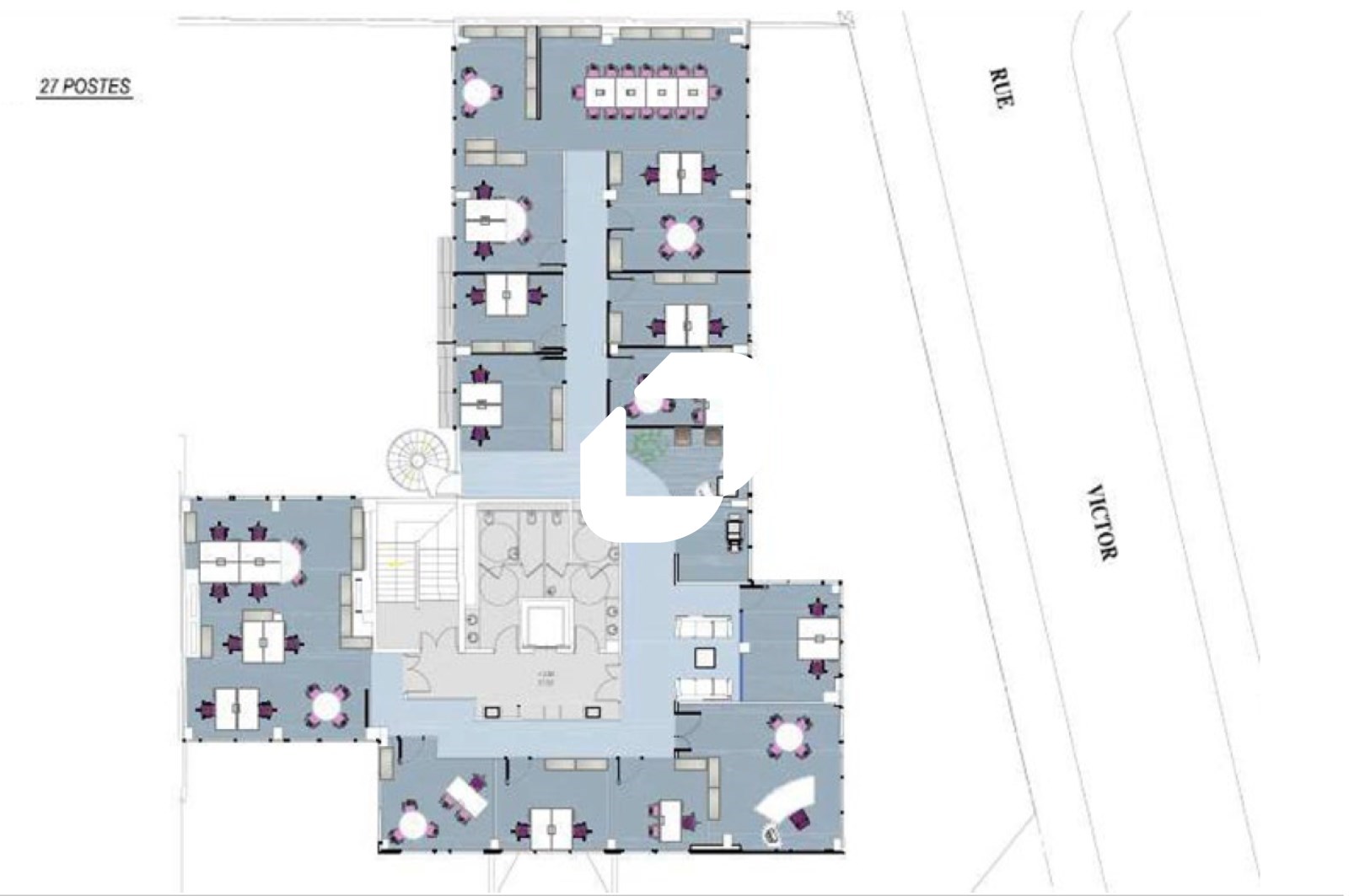
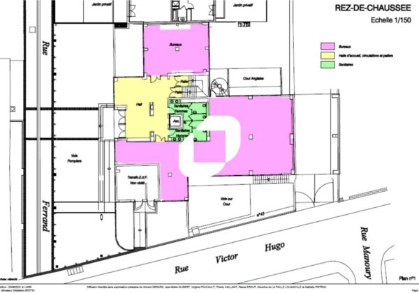
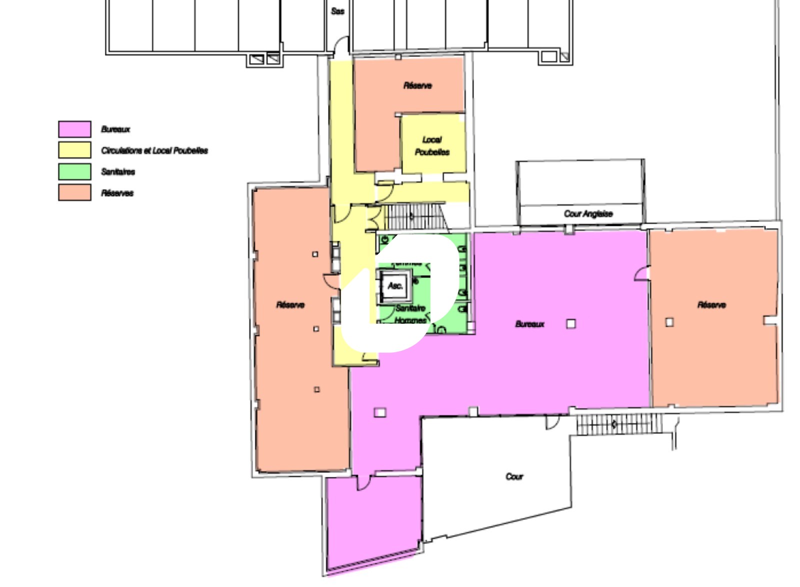
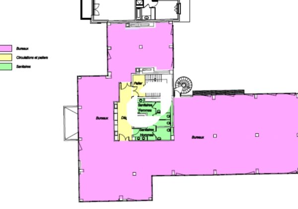
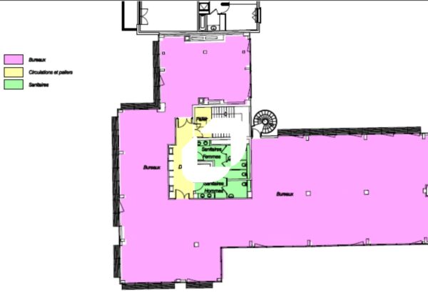
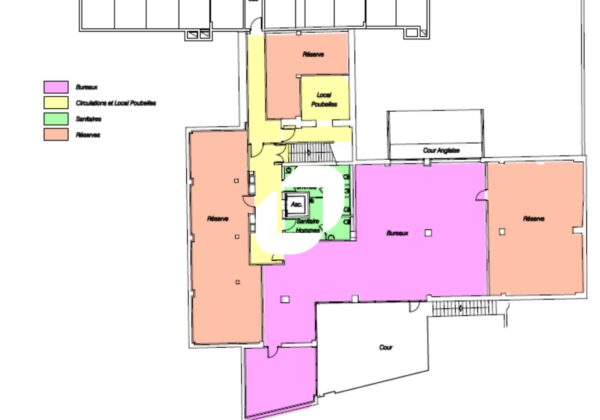
Répartition & surfaces des espaces
Tableau des divisibilités
| Type | Étage | Surface | Loyer (€/m²/an HT HC) |
Charges (€/m²/an HT HC) |
|---|---|---|---|---|
| Parkings | Prix sur demande | Prix sur demande | ||
| Bureaux | Sous-Sol | 196 m² | 190.00 | Prix sur demande |
| Bureaux | Rez-de-Jardin | 274 m² | 190.00 | Prix sur demande |
| Bureaux | Rez-de-Chaussée | 359 m² | 240.00 | Prix sur demande |
| Bureaux | 1er étage | 471 m² | 240.00 | Prix sur demande |
| Bureaux | 2ème étage | 471 m² | 240.00 | Prix sur demande |
| Bureaux | 3ème étage | 469 m² | 240.00 | Prix sur demande |
Performance énergétique du bien (DPE)


Informations non contractuelles
Localisation & accès
Transports en commun à proximité
SNCF gare de Bois-Colombes (TRAIN-L)
SNCF gare de Bois-Colombes
Adresses
approximatives
Adresses
précises
Nos nouveaux biens qui pourraient vous intéresser
BOIS COLOMBES (92270)
Les entrepreneurs ayant consulté cette offre ont aussi consulté celles ci
BIEVRES (91570)
BIEVRES (91570)
VILLIERS SUR MARNE (94350)
MOUSSY LE NEUF (77230)