Retour
Disponibilité Immédiate
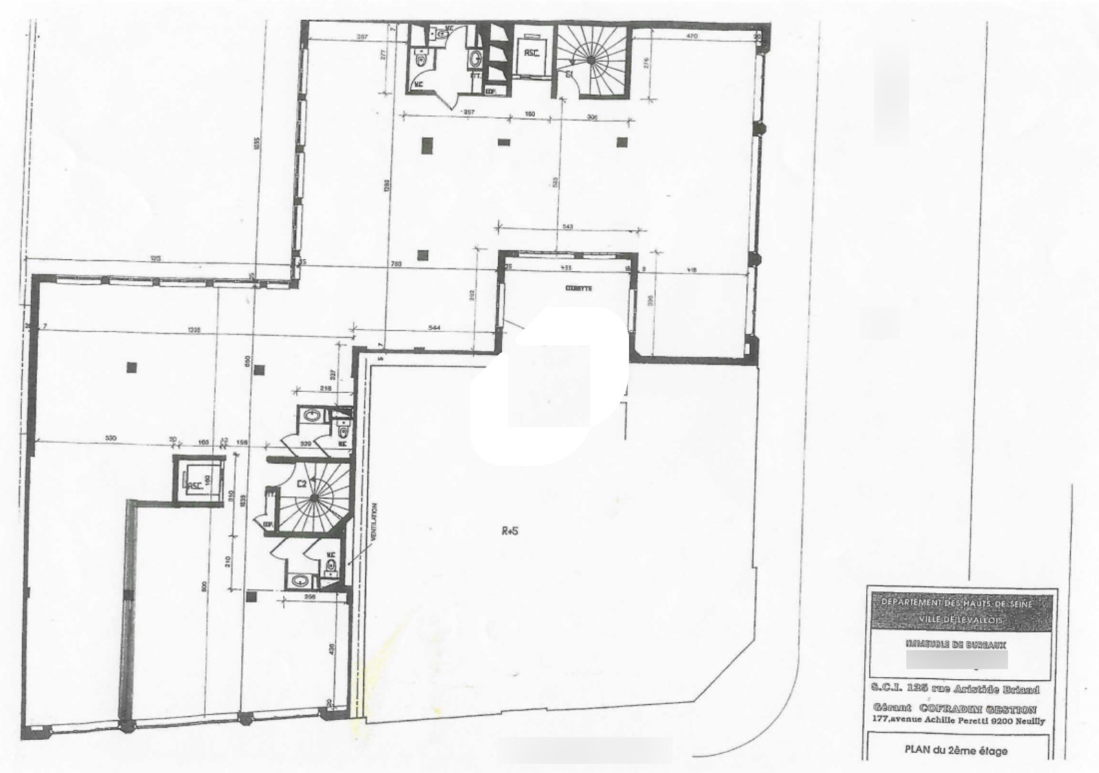
À Louer Bureaux 764 m² divisibles à partir de 181 m² LEVALLOIS PERRET (92300)
Ajouter au comparateur
Vous souhaitez faciliter votre recherche ?
Créez un compte
Présentation du bien
Au sein d'un immeuble de bon standing, Immprove vous propose des bureaux cloisonnés et très lumineux à proximité de la gare de « Clichy-Levallois ». Les locaux ont été entièrement rénovés en 2024 avec un utilisateur par étage .
Surface totale
Nature
Divisibilité
Etat des locaux
764 m²
Bureaux
Oui à partir de 181 m²
Bon état
Prix & Conditions
Loyer :
320 € /m²/an (HT/HC)
4 826 € /mois (HT/HC)
57 920 € /an (HT/HC)
Divisibles à partir de 181 m²
Impôt foncier :
34.26
Taxe bureaux :
24.48
Dépôt de garantie :
3 mois de loyer HT HC
Prestations & équipements du bien
Le bâtiment
Immeuble moderne
Parties communes de bon standing
Les espaces de travail
Fibre optique . Bureaux cloisonnés
Décloisonnement possible
Pré-câblage informatique et téléphonique
Cuisine
Sanitaires privatifs
Le 4ème étage sera livré rénové
Le confort au quotidien
Locaux traversants et lumineux
Sécurité du site
Digicode
Interphone
Accessibilité
Ascenseur desservant directement les locaux
Prestations spécifiques
Air rafraîchi
Répartition & surfaces des espaces
Tableau des divisibilités
| Type | Étage | Surface | Loyer (€/m²/an HT HC) |
Charges (€/m²/an HT HC) |
|---|---|---|---|---|
| Parkings | Sous-Sol | 1 200.00 | Prix sur demande | |
| Bureaux | 3ème étage | 200 m² | 320.00 | 40.62 |
| Bureaux | 4ème étage | 188 m² | 320.00 | 40.62 |
| Bureaux | 4ème étage | 195 m² | 320.00 | 40.62 |
| Bureaux | 5ème étage | 181 m² | 320.00 | 40.62 |
Performance énergétique du bien (DPE)


Informations non contractuelles
Localisation & accès
Transports en commun à proximité
Gare de Clichy Levallois
SNCF gare de Clichy-Levallois (P)
174
274
53
Adresses
approximatives
Adresses
précises
Nos nouveaux biens qui pourraient vous intéresser
Bureaux - 160m²
LEVALLOIS PERRET (92300)
LEVALLOIS PERRET (92300)
6 933.33€/mois HT HC
Disponibilité : Immédiate
Surface : 160 m²
Bureaux - 1 730.89m² Divisibles à partir de 205 m²
LEVALLOIS PERRET (92300)
LEVALLOIS PERRET (92300)
9 555.00€/mois HT HC
Disponibilité : Juin 2026
Surface : divisibles à partir de 205 m²
Bureaux - 217m²
LEVALLOIS PERRET (92300)
LEVALLOIS PERRET (92300)
6 666.60€/mois HT HC
Disponibilité : Immédiate
Surface : 217 m²
Bureaux - 208m²
LEVALLOIS PERRET (92300)
LEVALLOIS PERRET (92300)
5 720.00€/mois HT HC
Disponibilité : Immédiate
Surface : 208 m²
Les entrepreneurs ayant consulté cette offre ont aussi consulté celles ci
Bureaux - 348.02m²
BIEVRES (91570)
BIEVRES (91570)
3 480.00€/mois HT HC
Disponibilité : 1er juillet 2026
Surface : 348.02 m²
Bureaux - 288.28m²
BIEVRES (91570)
BIEVRES (91570)
2 880.00€/mois HT HC
Disponibilité : 1er juillet 2026
Surface : 288.28 m²
Bureaux et Activités - 4 645.22m² Divisibles à partir de 249.90 m²
VILLIERS SUR MARNE (94350)
VILLIERS SUR MARNE (94350)
54 180.00€/mois HT HC
Disponibilité : Immédiate
Surface : divisibles à partir de 249.90 m²
Bureaux - 447m²
MOUSSY LE NEUF (77230)
MOUSSY LE NEUF (77230)
4 097.50€/mois HT HC
Disponibilité : Immédiate
Surface : 447 m²