À Louer Bureaux 208 m² 120 RUE JEAN JAURES LEVALLOIS PERRET (92300)
Présentation du bien
Prix & Conditions
. Bail dérogatoire ou commercial
. Frais de rédaction
Prestations & équipements du bien
Hall d’accueil rénové
Luminaire LED
Open Space
Emplacement cuisine (arrivées et évacuations)
Sanitaires privatifs
Surface entièrement rénovée - style industriel
Climatisation par air rafraîchi
Moquette
Sol PVC imitation parquet
Accès sécurisé
Interphone
Double batterie d’ascenseurs
Certifié « BREEAM in use »
Chauffage urbain
Parkings int. (10) : 1 200€/U/an HT HC
A proximité immédiate de la ligne L
Immeuble fibré
Bornes de recharge électrique
Surface traversante
Plafond type industriel
Etage privatif
Multiples possibilités d’aménagement
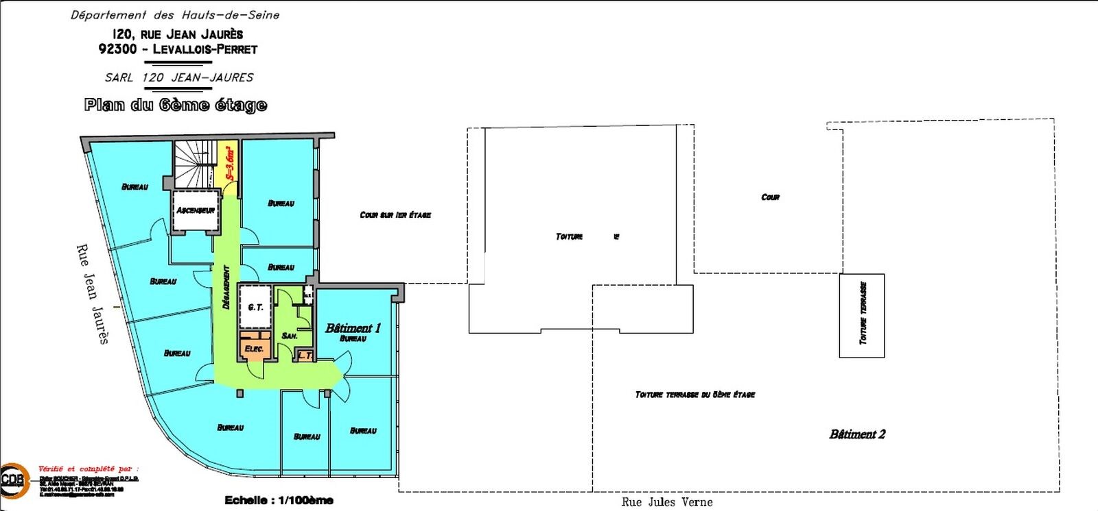
Répartition & surfaces des espaces
Tableau des divisibilités
| Type | Étage | Surface | Loyer (€/m²/an HT HC) |
Charges (€/m²/an HT HC) |
|---|---|---|---|---|
| Parkings | 1 200.00 | Prix sur demande | ||
| Bureaux | 6ème étage | 208 m² | 330.00 | 63.94 |
Performance énergétique du bien (DPE)


Informations non contractuelles
Localisation & accès
Transports en commun à proximité
SNCF gare de Asnières-sur-Seine (TER)
SNCF gare de Clichy - Levallois (L)
Accès routier
A 13 (Entrée), A 13 (Sortie), A 86 (Entrée Porte de Clichy), A 86 (Sortie Porte de Clichy)
Adresses
approximatives
Adresses
précises
Nos nouveaux biens qui pourraient vous intéresser
LEVALLOIS PERRET (92300)
LEVALLOIS PERRET (92300)
LEVALLOIS PERRET (92300)
LEVALLOIS PERRET (92300)
Les entrepreneurs ayant consulté cette offre ont aussi consulté celles ci
BIEVRES (91570)
BIEVRES (91570)
VILLIERS SUR MARNE (94350)
MOUSSY LE NEUF (77230)