Retour
Disponibilité Immédiate
À Louer Bureaux 1 398 m² divisibles à partir de 172 m² BAGNOLET (93170)
Ajouter au comparateur
Vous souhaitez faciliter votre recherche ?
Créez un compte
Présentation du bien
A 300 mètres du métro Galliéni, Immprove vous propose un immeuble bénéficiant d'une hôtesse d'accueil, situé face au Novotel de la Porte de Bagnolet, facilement identifiable par vos clients et vos collaborateurs.
Surface totale
Nature
Divisibilité
Etat des locaux
1 398 m²
Bureaux
Oui à partir de 172 m²
Bon état
Prix & Conditions
Loyer :
160 € /m²/an (HT/HC)
2 293 € /mois (HT/HC)
27 520 € /an (HT/HC)
Divisibles à partir de 172 m²
Impôt foncier :
31.00
Dépôt de garantie :
3 mois de loyer HT HC
Conditions location :
. Contrats de téléphonie/internet souscrits directement par le locataire, les autres charges sont incluses dans les charges ci-dessus :
. Accueil, Entretien, Maintenance, Assurance immeuble : 43€ HT/m²/an
. Nettoyage (parties communes et privatives) : 26€ HT/m²/an
. Fluides (Chauffage + Electricité + Eau des parties communes et privatives) : 25€ HT/m²/an
. Fiscalité (TF, TB, TOM): 31€ HT/m²/an
. Places de parking situés au sous-sol : 1 200 €/HTC/U/an
. Accueil, Entretien, Maintenance, Assurance immeuble : 43€ HT/m²/an
. Nettoyage (parties communes et privatives) : 26€ HT/m²/an
. Fluides (Chauffage + Electricité + Eau des parties communes et privatives) : 25€ HT/m²/an
. Fiscalité (TF, TB, TOM): 31€ HT/m²/an
. Places de parking situés au sous-sol : 1 200 €/HTC/U/an
Prestations & équipements du bien
Le bâtiment
Immeuble de bureaux des années 1970
Les espaces de travail
Hôtesse d'accueil
Sécurité du site
Contrôle d’accès par badge
Accessibilité
Ascenseur
Prestations spécifiques
Chauffage collectif
Extérieur
Terrasses privatives au 4ème et 5ème étages
Autres
Bon standing
Vidéosurveillance
Interphonie
Alarme
Fibre dans l’immeuble
Cloisons
Faux plafond
. Contrats de téléphonie/internet souscrits directement par le locataire, les autres charges sont incluses dans les charges ci-dessus :
. Accueil, Entretien, Maintenance, Assurance immeuble : 43€ HT/m²/an
. Nettoyage (parties communes et privatives) : 26€ HT/m²/an
. Fluides (Chauffage + Electricité + Eau des parties communes et privatives) : 25€ HT/m²/an
. Fiscalité (TF, TB, TOM): 31€ HT/m²/an
. Places de parking situés au sous-sol : 1 200 €/HTC/U/an
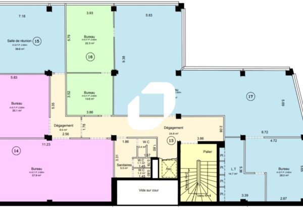
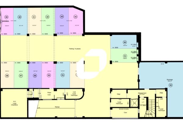
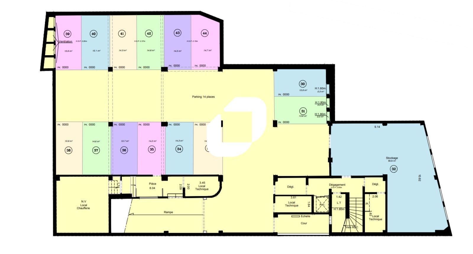
Répartition & surfaces des espaces
Tableau des divisibilités
| Type | Étage | Surface | Loyer (€/m²/an HT HC) |
Charges (€/m²/an HT HC) |
|---|---|---|---|---|
| Archives | Sous-Sol | 87 m² | 160.00 | 94.00 |
| Bureaux | 1er étage | 373 m² | 160.00 | 94.00 |
| Bureaux | 2ème étage | 373 m² | 160.00 | 94.00 |
| Bureaux | 3ème étage | 172 m² | 160.00 | 94.00 |
| Bureaux | 3ème étage | 201 m² | 160.00 | 94.00 |
| Bureaux | 4ème étage | 279 m² | 160.00 | 93.00 |
Performance énergétique du bien (DPE)


Informations non contractuelles
Localisation & accès
Transports en commun à proximité
Accès routier
A3 / Boulevard Périphérique Porte de Bagnolet
Adresses
approximatives
Adresses
précises
Nos nouveaux biens qui pourraient vous intéresser
Bureaux - 26 427m² Divisibles à partir de 253 m²
BAGNOLET (93170)
BAGNOLET (93170)
4 216.67€/mois HT HC
Disponibilité : Immédiate
Surface : divisibles à partir de 253 m²
Bureaux - 757m² Divisibles à partir de 80 m²
BAGNOLET (93170)
BAGNOLET (93170)
2 375.00€/mois HT HC
Disponibilité : Immédiate
Surface : divisibles à partir de 80 m²
Bureaux - 1 750m² Divisibles à partir de 380 m²
BAGNOLET (93170)
BAGNOLET (93170)
12 215.00€/mois HT HC
Disponibilité : Immédiate
Surface : divisibles à partir de 380 m²
Les entrepreneurs ayant consulté cette offre ont aussi consulté celles ci
Bureaux - 83.60m²
BUSSY SAINT GEORGES (77600)
BUSSY SAINT GEORGES (77600)
1 288.00€/mois HT HC
Disponibilité : Immédiate
Surface : 83.60 m²
Bureaux - 6 934m² Divisibles à partir de 173 m²
LYON (69009)
LYON (69009)
Prix sur demande
Disponibilité : Selon les lots – nous consulter
Surface : divisibles à partir de 173 m²