Retour
30
Disponibilité Immédiate
À Louer Bureaux 396 m² | 111 postes divisibles à partir d'1 poste SAINT OUEN (93400)
Ajouter au comparateur
Vous souhaitez faciliter votre recherche ?
Créez un compte
Présentation du bien
Dans un immeuble neuf, à proximité du RER C et de la future ligne 14, Immprove vous propose des surfaces de bureaux privatifs ou partagés dans un centre de coworking dernière génération.
Surface totale
Nature
Divisibilité
Nombre de postes
Etat des locaux
396 m²
Bureaux
Oui à partir de 12 m²
111
Neuf
Prix & Conditions
Prix sur demande
Dépôt de garantie :
3 mois de loyer HT HC
Conditions location :
Honoraires preneur : 15% HT du loyer annuel HT HC
Honoraires mandant : 10% HT du loyer annuel HT HC
Domiciliation juridique : 40 € HT/mois (en option)
Honoraires mandant : 10% HT du loyer annuel HT HC
Domiciliation juridique : 40 € HT/mois (en option)
Prestations & équipements du bien
Le bâtiment
Immeuble restructuré
Parties communes rénovées récemment
Les espaces de travail
Hôtesse d'accueil
Cafétéria . Bureaux cloisonnés
Faux plafonds
Faux planchers techniques
Le confort au quotidien
Climatisation
Les accès
Accès PMR
Sécurité du site
Parking (20 places situées sous l'immeuble, parking fermé et sécurisé par badge) : 120€HT/mois
Accessibilité
Ascenseur desservant directement les locaux
Autres
Locaux E.R.P.
Accès 24/7
Internet fibre très haut débit
Poste de travail tout équipé
Honoraires preneur : 15% HT du loyer annuel HT HC
Honoraires mandant : 10% HT du loyer annuel HT HC
Domiciliation juridique : 40 € HT/mois (en option)
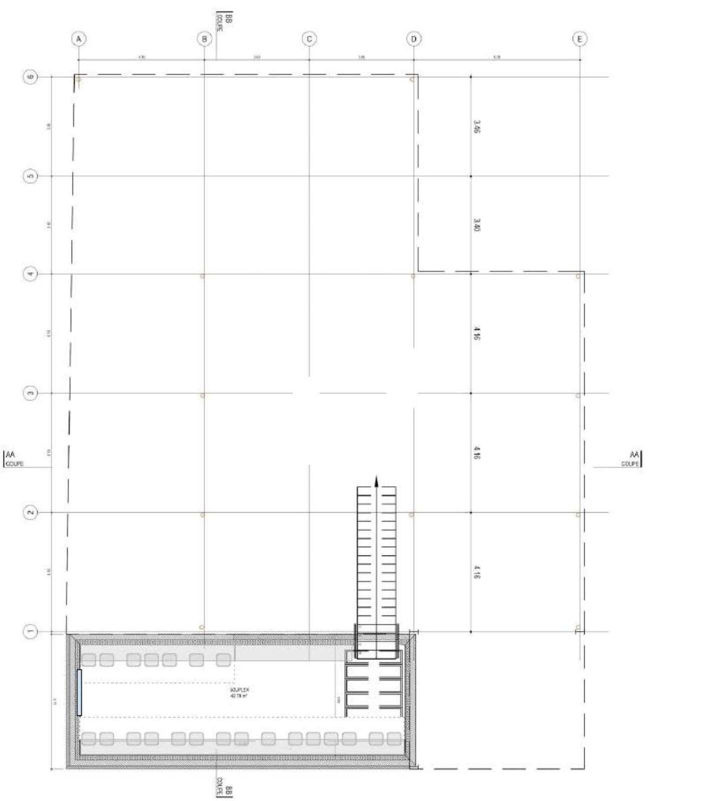
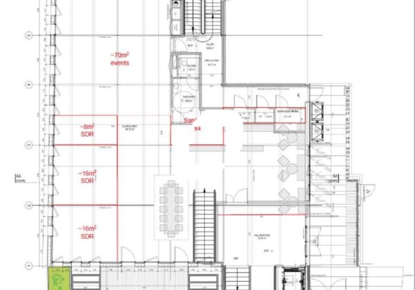
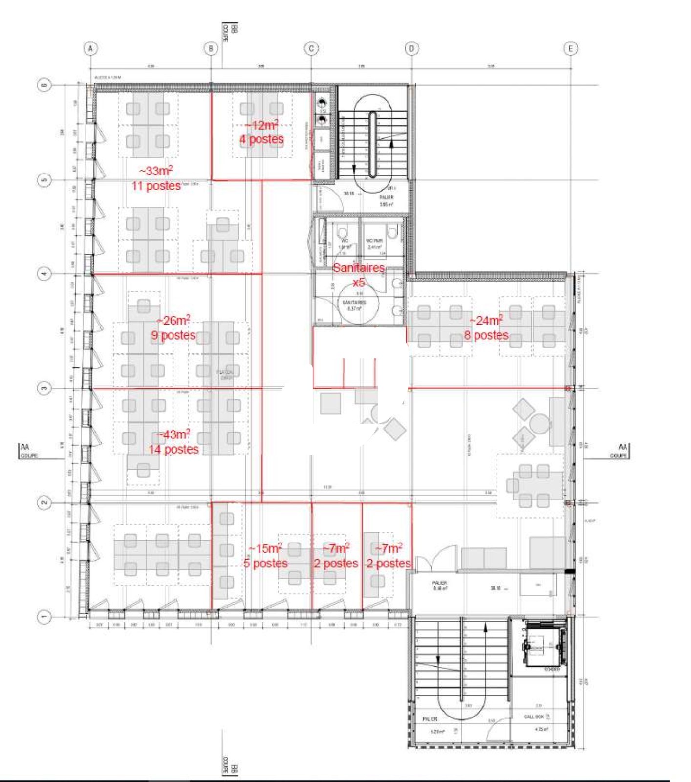
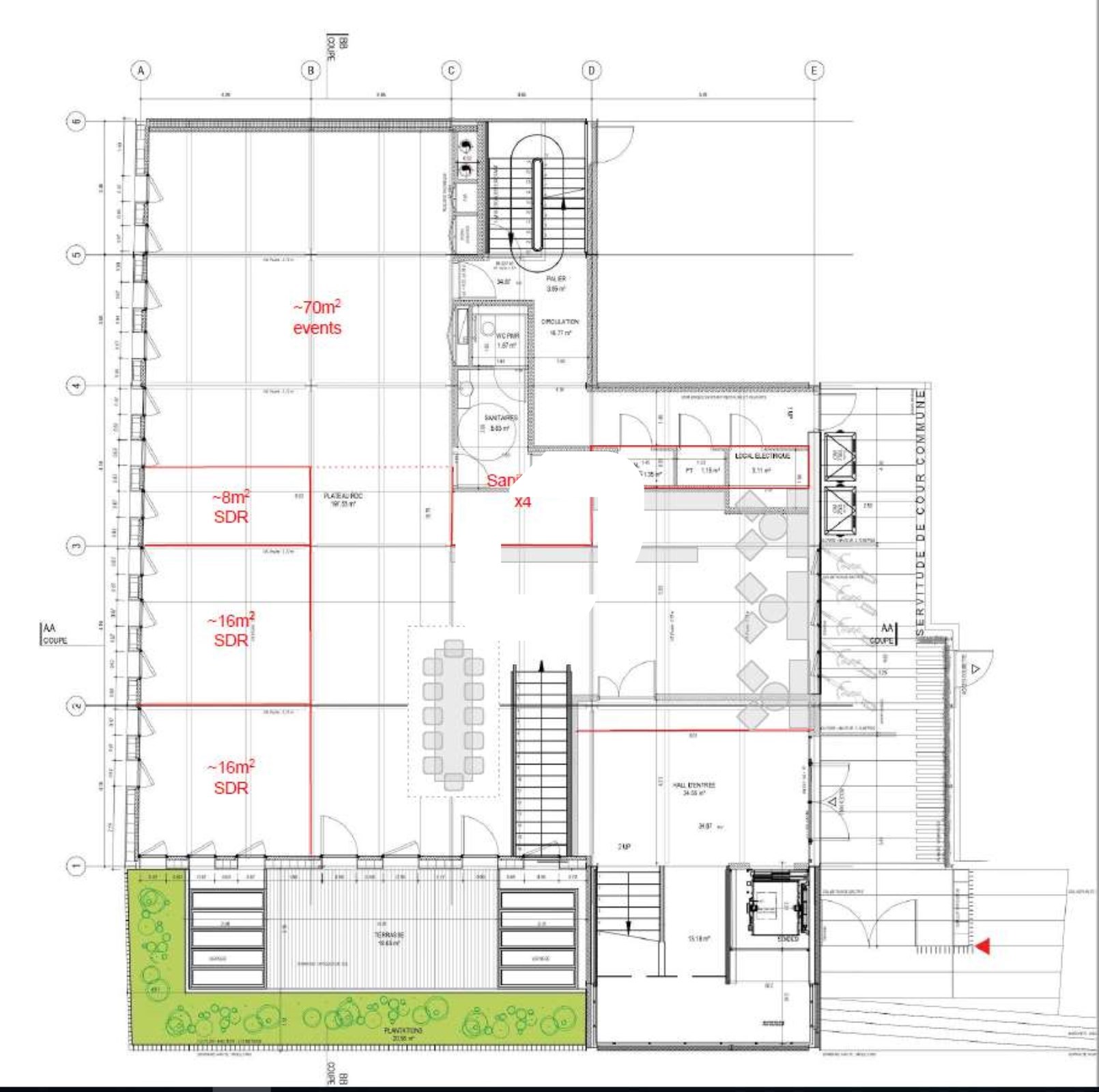
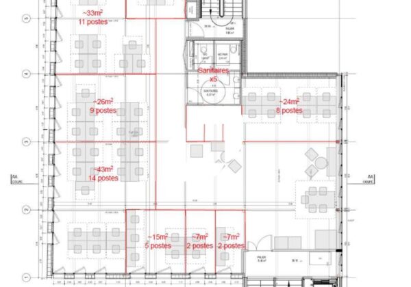
Répartition & surfaces des espaces
Tableau des divisibilités
| Type | Étage | Surface | Loyer (€/m²/an HT HC) |
Charges (€/m²/an HT HC) |
|---|---|---|---|---|
| Coworking | 12 m² | 1 530.00 | Prix sur demande | |
| Coworking | 21 m² | 2 678.00 | Prix sur demande | |
| Coworking | 25 m² | 3 060.00 | Prix sur demande | |
| Coworking | 26 m² | 3 443.00 | Prix sur demande | |
| Coworking | 42 m² | 5 355.00 | Prix sur demande | |
| Coworking | 270 m² | 5 355.00 | Prix sur demande | |
| Parkings | Prix sur demande | Prix sur demande |
Performance énergétique du bien (DPE)


Informations non contractuelles
Localisation & accès
Transports en commun à proximité
85
173
137
139
166
237
Adresses
approximatives
Adresses
précises
Nos nouveaux biens qui pourraient vous intéresser
Bureaux - 1 571m² Divisibles à partir de 15 m²
SAINT OUEN (93400)
SAINT OUEN (93400)
2 333.33€/mois HT HC
Disponibilité : Immédiate
Surface : divisibles à partir de 15 m²
Les entrepreneurs ayant consulté cette offre ont aussi consulté celles ci
Bureaux - 83.60m²
BUSSY SAINT GEORGES (77600)
BUSSY SAINT GEORGES (77600)
1 288.00€/mois HT HC
Disponibilité : Immédiate
Surface : 83.60 m²
Bureaux - 6 934m² Divisibles à partir de 173 m²
LYON (69009)
LYON (69009)
Prix sur demande
Disponibilité : Selon les lots – nous consulter
Surface : divisibles à partir de 173 m²