Retour
Disponibilité 4ème trimestre 2022
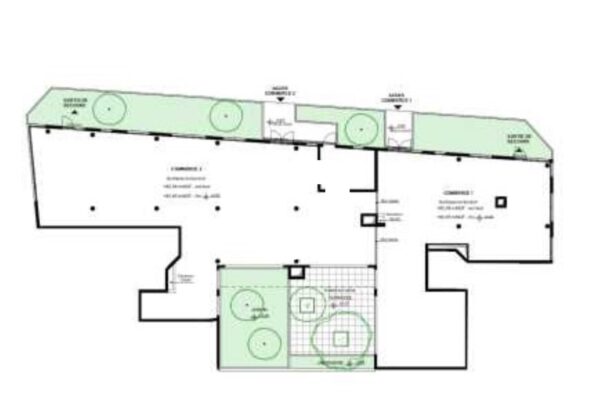
À Louer Bureaux 371 m² CACHAN (94230)
Ajouter au comparateur
Vous souhaitez faciliter votre recherche ?
Créez un compte
Présentation du bien
À proximité immédiate du métro ligne 4, de la future ligne 15 et du RER B Bagneux, IMMPROVE propose à la location un rez-de-chaussée ERP/PMR de 371 m², non divisible, agrémenté d'un jardin privatif. Cette offre exceptionnelle de bureaux à Cachan allie accessibilité et cadre verdoyant.
Surface totale
Nature
Divisibilité
Etat des locaux
371 m²
Bureaux
Non
Neuf
Prix & Conditions
Loyer :
259 € /m²/an (HT/HC)
8 007 € /mois (HT/HC)
96 089 € /an (HT/HC)
Dépôt de garantie :
3 mois de loyer HT HC
Prestations & équipements du bien
Le bâtiment
Immeuble mixte de bureaux et commerce
Façade en bardage
Parties communes de bon standing
Le confort au quotidien
Jardin paysager
Jardin privatif
Les accès
Accès véhicules légers
Accès PMR
Accès privatif sur rue
Double accès
Aire de manœuvre
Aire de chargement
Répartition & surfaces des espaces
Tableau des divisibilités
| Type | Étage | Surface | Loyer (€/m²/an HT HC) |
Charges (€/m²/an HT HC) |
|---|---|---|---|---|
| Bureaux | Rez-de-Chaussée | 371 m² | 259.00 | Prix sur demande |
Performance énergétique du bien (DPE)


Informations non contractuelles
Localisation & accès
Transports en commun à proximité
SNCF gare de Massy-Palaiseau (TGV)
15
197
297
391
Accès routier
Boulevard Périphérique: Porte d’Orléans
A6, A10, A86
Aéroport Orly / OrlyVal
Adresses
approximatives
Adresses
précises
Nos nouveaux biens qui pourraient vous intéresser
Bureaux - 11 837m² Divisibles à partir de 402 m²
CACHAN (94230)
CACHAN (94230)
11 835.00€/mois HT HC
Disponibilité : Immédiate
Surface : divisibles à partir de 402 m²
Les entrepreneurs ayant consulté cette offre ont aussi consulté celles ci
Bureaux - 83.60m²
BUSSY SAINT GEORGES (77600)
BUSSY SAINT GEORGES (77600)
1 288.00€/mois HT HC
Disponibilité : Immédiate
Surface : 83.60 m²
Bureaux - 6 934m² Divisibles à partir de 173 m²
LYON (69009)
LYON (69009)
Prix sur demande
Disponibilité : Selon les lots – nous consulter
Surface : divisibles à partir de 173 m²