Retour
Disponibilité Immédiate
À Louer Bureaux et Activités 618 m² divisibles à partir de 206 m² RUE FRANCISCO FERRER SAINT CYR L'ECOLE (78210)
Ajouter au comparateur
Vous souhaitez faciliter votre recherche ?
Créez un compte
Présentation du bien
IMMPROVE vous propose à la location plusieurs surfaces à SAINT-CYR-L’ECOLE. L’immeuble récent, propose plusieurs surfaces dont 1 d’activité et 2 de bureaux. Les locaux sont en bon état, climatisés et PMR (ascenseur) et doté de plusieurs stationnements ainsi que d’un balcon.
Surface totale
Nature
Divisibilité
Etat des locaux
618 m²
Bureaux et Activités
Oui à partir de 206 m²
Bon état
Prix & Conditions
Loyer :
170 € /m²/an (HT/HC)
2 918 € /mois (HT/HC)
35 020 € /an (HT/HC)
Divisibles à partir de 206 m²
Impôt foncier :
12.14
Taxe bureaux :
5.82
Dépôt de garantie :
3 mois de loyer HT HC
Prestations & équipements du bien
Le bâtiment
Immeuble récent
Immeuble mixte
Parties communes de qualité
Les espaces de travail
Fibre optique . Locaux en bon état
Accueil
Espace ouvert
Bureaux cloisonnés
Cloisonnement amovible
Locaux rationnels et modulables
Faux plafonds
Pré-câblage informatique et téléphonique
Sanitaires privatifs
Le confort au quotidien
Climatisation réversible
Locaux traversants et lumineux
Balcon
Les accès
Accès PMR
Sécurité du site
Interphone
Accès sécurisé par badge
Accessibilité
Ascenseur PMR
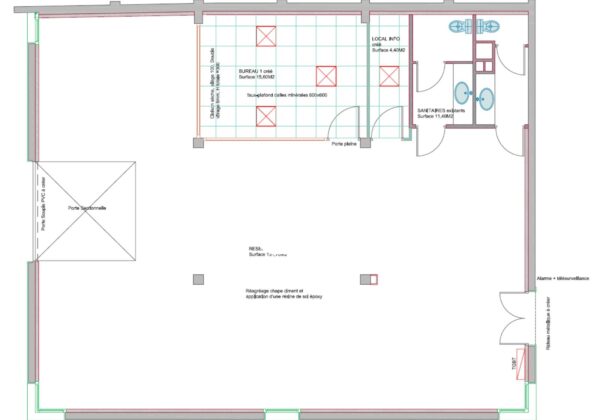
Répartition & surfaces des espaces
Tableau des divisibilités
| Type | Étage | Surface | Loyer (€/m²/an HT HC) |
Charges (€/m²/an HT HC) |
|---|---|---|---|---|
| Parkings | 600.00 | Prix sur demande | ||
| Parkings | 600.00 | Prix sur demande | ||
| Parkings | 600.00 | Prix sur demande | ||
| Activités | Rez-de-Chaussée | 206 m² | 170.00 | 21.25 |
| Bureaux | 1er étage | 206 m² | 200.00 | 21.25 |
| Bureaux | 2ème étage | 206 m² | 200.00 | 21.25 |
Performance énergétique du bien (DPE)


Informations non contractuelles
Localisation & accès
Transports en commun à proximité
Gare de Saint-Cyr-l'Ecole (ligne RER C et train N / U
ligne T13 Saint Cyr
Lignes 6252 et 6253
Accès routier
Autoroutes A12, A13 et A86
Nationale N12
Adresses
approximatives
Adresses
précises
Nos nouveaux biens qui pourraient vous intéresser
Bureaux et Activités - 1 592m²
OSTWALD (67540)
OSTWALD (67540)
8 332.79€/mois HT HC
Disponibilité : 1er juillet 2026
Surface : 1 592 m²
Bureaux et Activités - 1 490m² Divisibles à partir de 347 m²
MORET LOING ET ORVANNE (77250)
MORET LOING ET ORVANNE (77250)
Prix sur demande
Disponibilité : 1er mars 2027
Surface : divisibles à partir de 347 m²
Bureaux et Activités - 274m² Divisibles à partir de 118 m²
PALAISEAU (91120)
PALAISEAU (91120)
1 690.00€/mois HT HC
Disponibilité : Immédiate
Surface : divisibles à partir de 118 m²
Les entrepreneurs ayant consulté cette offre ont aussi consulté celles ci
Bureaux et Activités - 1 592m²
OSTWALD (67540)
OSTWALD (67540)
8 332.79€/mois HT HC
Disponibilité : 1er juillet 2026
Surface : 1 592 m²
Bureaux et Activités - 128m²
VOISINS LE BRETONNEUX (78960)
VOISINS LE BRETONNEUX (78960)
Prix sur demande
Disponibilité : Immédiate
Surface : 128 m²
Bureaux et Activités - 1 490m² Divisibles à partir de 347 m²
MORET LOING ET ORVANNE (77250)
MORET LOING ET ORVANNE (77250)
Prix sur demande
Disponibilité : 1er mars 2027
Surface : divisibles à partir de 347 m²