Retour
Entrepôts - 29 629m² à Louer
. Toiture bac acier isolée
. Murs bardage double peau
. Sol béton quartz
. Résistance au sol : 5 t/m²
. Hauteur : 10 à 17 mètres
. Accès plain pied
. Accès à quai
. Sprinklage
. RIA
. Chauffage au gaz
. Eclairage Leds
. Température dirigée entre 10 et 22 °
. Local charge
. Bureaux cloisonnés en R+1
Autorisations ICPE : 1510 - 2920
Déclarations ICPE : 1434 -2910-2925
Entrepôts - 29 629m² à Louer
1 RUE DU BRUCH BRUMATH (67170)
DESCRIPTION
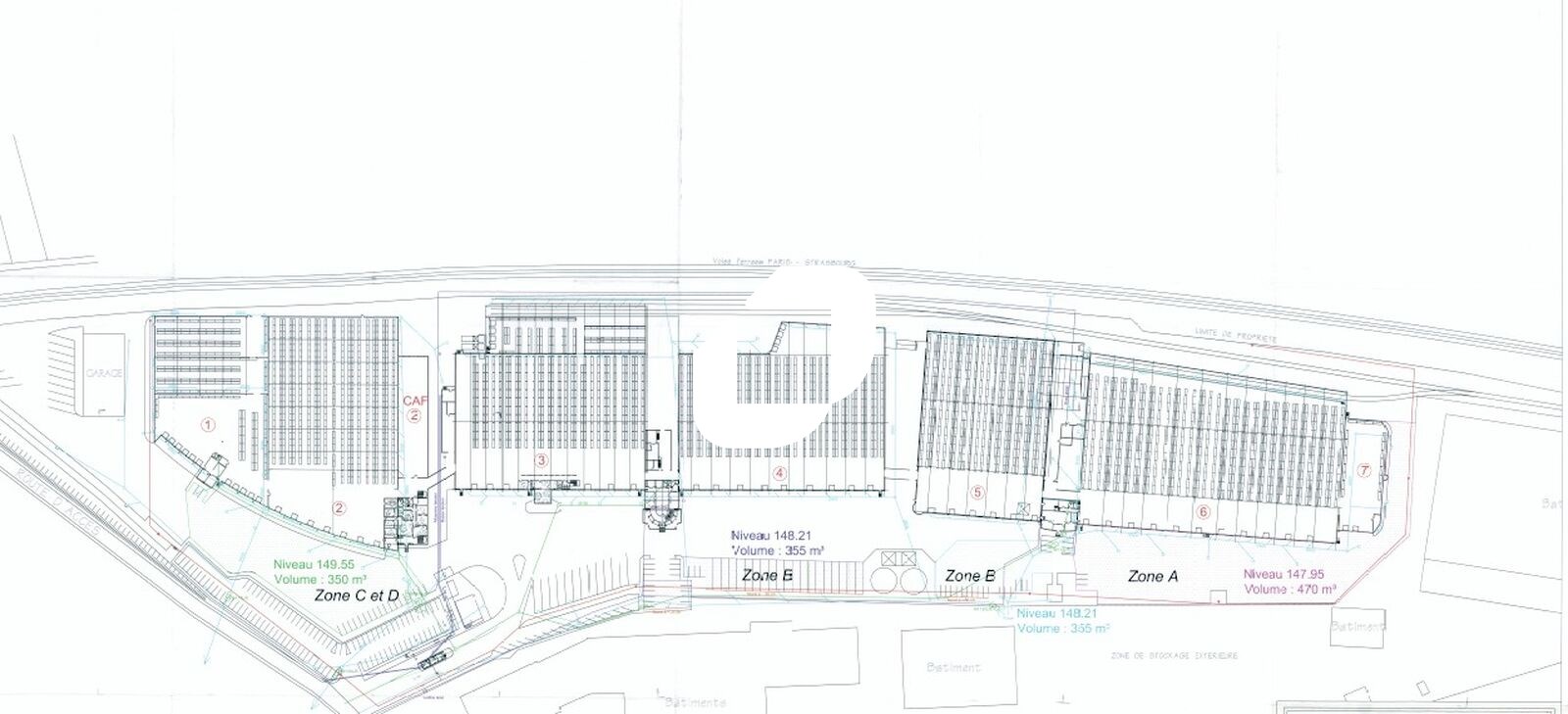
IMMPROVE vous propose à Brumath, à la location, un entrepôt de plus de 29 000 m² divisibles à partir de 3 500 m², idéalement situé le long de l'A4, à proximité du GCO. Doté de multiples portes à quai, d'accès plain-pied, de bureaux en R+1, de vastes aires de manœuvre et stationnement, cet espace au cœur de la ZI Nord de Brumath offre une accessibilité optimale vers Paris, Strasbourg et l'Allemagne.
Le site dispose d'un système de sprinklage et d'autorisations ICPE.
En savoir plus
. Ossature métallique. Toiture bac acier isolée
. Murs bardage double peau
. Sol béton quartz
. Résistance au sol : 5 t/m²
. Hauteur : 10 à 17 mètres
. Accès plain pied
. Accès à quai
. Sprinklage
. RIA
. Chauffage au gaz
. Eclairage Leds
. Température dirigée entre 10 et 22 °
. Local charge
. Bureaux cloisonnés en R+1
Autorisations ICPE : 1510 - 2920
Déclarations ICPE : 1434 -2910-2925
Consommations énergétiques


Informations non contractuelles
Tableau des divisibilités
| Type | Étage | Surface | Loyer (€/m²/an HT HC) |
Charges (€/m²/an HT HC) |
|---|---|---|---|---|
| Entrepôts | 3 573 m² | 50.00 | 17.56 | |
| Entrepôts | 7 217 m² | 50.00 | 17.56 | |
| Entrepôts | 7 217 m² | 50.00 | 17.56 | |
| Entrepôts | 6 956 m² | 50.00 | 17.56 | |
| Entrepôts | Rez-de-Chaussée | 4 666 m² | 50.00 | 17.56 |
Caractéristiques
Les charges inclus les fluides et la taxe foncière.
- Surface 29 629 m²
- Etat des locaux Bon état
Adresses
approximatives
Adresses
précises
Les entrepreneurs ayant consulté cette offre ont aussi consulté celles ci
Les services Immprove
Une gamme complète de services qui facilitent vos démarches et destinée à satisfaire vos attentes