Retour
Disponibilité Immédiate
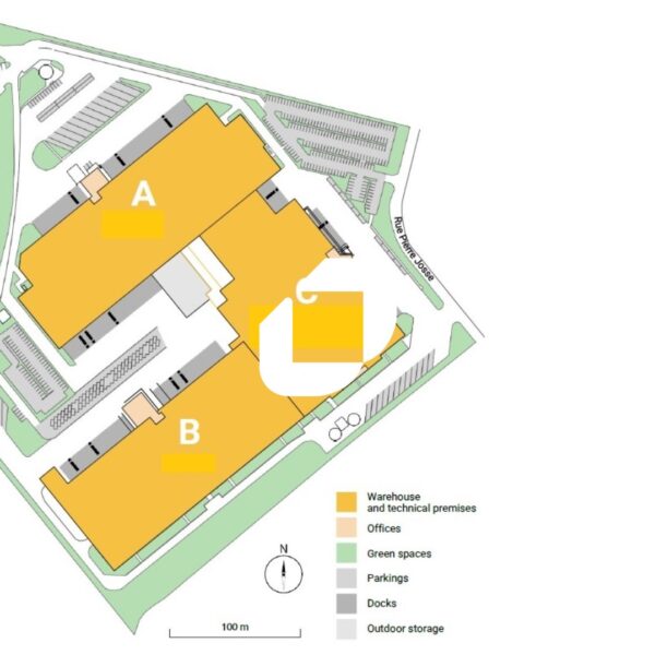
À Louer Entrepôts 16 393 m² 7 RUE PIERRE JOSSE BONDOUFLE (91070)
Ajouter au comparateur
Vous souhaitez faciliter votre recherche ?
Créez un compte
Présentation du bien
Dans la zone logistique des Bordes à Bondoufle, au pied de l’axe N104 et A6, IMMPROV vous propose à la location un bâtiment logistique ICPE de 16 393 m². Grande hauteur, nombreux accès à quais et plain-pied.
Surface totale
Nature
Divisibilité
Etat des locaux
16 393 m²
Entrepôts
Non
Bon état
Prix & Conditions
Loyer :
65 € /m²/an (HT/HC)
88 795 € /mois (HT/HC)
1 065 545 € /an (HT/HC)
Impôt foncier :
10.99
Taxe bureaux :
2.64
Dépôt de garantie :
3 mois de loyer HT HC
Prestations & équipements du bien
Le bâtiment
Bâtiment indépendant
Façade en bardage . Hauteur libre : 10 à 11 mètres
Les accès
Portes à quais : 37
Aire de manœuvre : 35 mètres
Aire de chargement
Sécurité du site
Site clos et sécurisé
Prestations spécifiques
Charge au sol : 5 T/m²
Sprinklers
ICPE : 1510 1530 1532 2662 2663-1 2663-2 2910-A 2925 4320 4330 4331 4755-2 1511 4321 4734 4802
Extérieur
Parkings VL : 87
Parkings PL : 23
Autres
Structure métallique
Portes de plain-pied : 2
% Bureaux d’accompagnement : 3,5%
Répartition & surfaces des espaces
Tableau des divisibilités
| Type | Étage | Surface | Loyer (€/m²/an HT HC) |
Charges (€/m²/an HT HC) |
|---|---|---|---|---|
| Entrepôts | 4 748 m² | 65.00 | 12.47 | |
| Entrepôts | 6 863 m² | 65.00 | 12.47 | |
| Parkings | Prix sur demande | Prix sur demande | ||
| Parkings | Prix sur demande | Prix sur demande | ||
| Entrepôts | Rez-de-Chaussée | 3 998 m² | 65.00 | 12.47 |
| Entrepôts | Rez-de-Chaussée | 784 m² | 65.00 | 12.47 |
Performance énergétique du bien (DPE)


Informations non contractuelles
Localisation & accès
Transports en commun à proximité
Accès routier
Aéroport d'Orly
N104
A6
Adresses
approximatives
Adresses
précises
Nos nouveaux biens qui pourraient vous intéresser
Entrepôts - 17 514m² Divisibles à partir de 7 670 m²
LE MEUX (60880)
LE MEUX (60880)
32 597.50€/mois HT HC
Disponibilité : Octobre 2024
Surface : divisibles à partir de 7 670 m²
Entrepôts - 6 734m²
SAINT MICHEL SUR ORGE (91240)
SAINT MICHEL SUR ORGE (91240)
56 116.67€/mois HT HC
Disponibilité : Immédiate
Surface : 6 734 m²
Entrepôts - 17 175m² Divisibles à partir de 1 568 m²
BLANQUEFORT (33290)
BLANQUEFORT (33290)
104 046.67€/mois HT HC
Disponibilité : 1er octobre 2026
Surface : divisibles à partir de 1 568 m²
Entrepôts - 5 051m²
AULNAY SOUS BOIS (93600)
AULNAY SOUS BOIS (93600)
63 137.50€/mois HT HC
Disponibilité : Immédiate
Surface : 5 051 m²
Les entrepreneurs ayant consulté cette offre ont aussi consulté celles ci
Entrepôts - 17 514m² Divisibles à partir de 7 670 m²
LE MEUX (60880)
LE MEUX (60880)
32 597.50€/mois HT HC
Disponibilité : Octobre 2024
Surface : divisibles à partir de 7 670 m²
Entrepôts - 6 734m²
SAINT MICHEL SUR ORGE (91240)
SAINT MICHEL SUR ORGE (91240)
56 116.67€/mois HT HC
Disponibilité : Immédiate
Surface : 6 734 m²
Entrepôts et Bureaux - 464m² Divisibles à partir de 22 m²
TRESSES (33370)
TRESSES (33370)
810.00€/mois HT HC
Disponibilité : Selon lots
Surface : divisibles à partir de 22 m²
Entrepôts - 17 175m² Divisibles à partir de 1 568 m²
BLANQUEFORT (33290)
BLANQUEFORT (33290)
104 046.67€/mois HT HC
Disponibilité : 1er octobre 2026
Surface : divisibles à partir de 1 568 m²