Retour
Disponibilité 10 MOIS APRES ACCORD
À Louer Entrepôts 22 610 m² divisibles à partir de 5 953 m² AVENUE DE L'HUREPOIX LE PLESSIS PATE (91220)
Ajouter au comparateur
Vous souhaitez faciliter votre recherche ?
Créez un compte
Présentation du bien
Dans la zone d’activités du Plessis-Pâté (91), sur le long de la Nationale 104, IMMPROVE vous propose un parc d’activités neuf avec plusieurs cellules d’activités à vendre à louer à partir de 6 000 m². Bâtiment clé en mains ou cellules d’activités disponibles.
Surface totale
Nature
Divisibilité
Etat des locaux
22 610 m²
Entrepôts
Oui à partir de 5 953 m²
Neuf
Prix & Conditions
Loyer :
75 € /m²/an (HT/HC)
37 206 € /mois (HT/HC)
446 475 € /an (HT/HC)
Divisibles à partir de 5 953 m²
Dépôt de garantie :
3 mois de loyer HT HC
Prestations & équipements du bien
Les espaces de travail
Bureaux / Locaux sociaux / Accueil : Carrelage au RDC et Moquette ou PVC au R+ 1 .
Les accès
Site clôturé par portail électrique
Accès de plain-pied par porte sectionnelle de 3,00 x 4,00 m (ht)
Quai de déchargement avec SAS et niveleur
Extérieur
5 places de parking par lot
Autres
Voirie lourde pour accès livraisons
Voirie légère pour emplacement VL ( 5 places/lot) . Dallage industriel 3T/m²
Peinture murale, faux-plafond
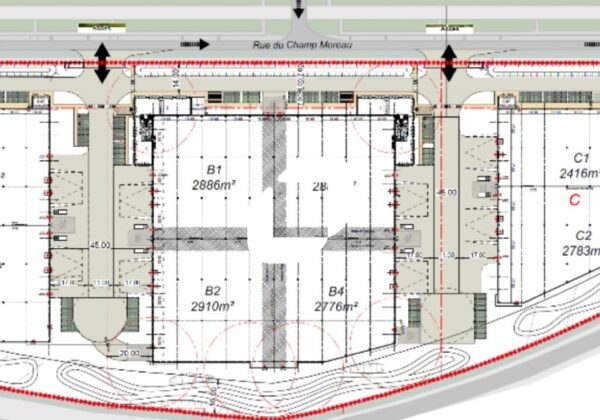
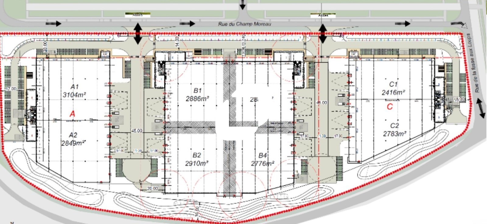
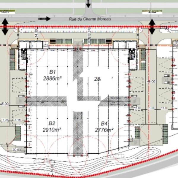
Répartition & surfaces des espaces
Tableau des divisibilités
| Type | Étage | Surface | Loyer (€/m²/an HT HC) |
Charges (€/m²/an HT HC) |
|---|---|---|---|---|
| Parkings | 75.00 | Prix sur demande | ||
| Activités | Rez-de-Chaussée | 3 104 m² | 75.00 | Prix sur demande |
| Activités | Rez-de-Chaussée | 2 849 m² | 75.00 | Prix sur demande |
| Activités | Rez-de-Chaussée | 2 886 m² | 75.00 | Prix sur demande |
| Activités | Rez-de-Chaussée | 2 910 m² | 75.00 | Prix sur demande |
| Activités | Rez-de-Chaussée | 2 886 m² | 75.00 | Prix sur demande |
| Activités | Rez-de-Chaussée | 2 776 m² | 75.00 | Prix sur demande |
| Activités | Rez-de-Chaussée | 2 416 m² | 75.00 | Prix sur demande |
| Activités | Rez-de-Chaussée | 2 783 m² | 75.00 | Prix sur demande |
Performance énergétique du bien (DPE)


Informations non contractuelles
Localisation & accès
Accès routier
N104
A6
N20
Adresses
approximatives
Adresses
précises
Nos nouveaux biens qui pourraient vous intéresser
Entrepôts - 17 514m² Divisibles à partir de 7 670 m²
LE MEUX (60880)
LE MEUX (60880)
32 597.50€/mois HT HC
Disponibilité : Octobre 2024
Surface : divisibles à partir de 7 670 m²
Entrepôts - 6 734m²
SAINT MICHEL SUR ORGE (91240)
SAINT MICHEL SUR ORGE (91240)
56 116.67€/mois HT HC
Disponibilité : Immédiate
Surface : 6 734 m²
Entrepôts - 17 175m² Divisibles à partir de 1 568 m²
BLANQUEFORT (33290)
BLANQUEFORT (33290)
104 046.67€/mois HT HC
Disponibilité : 1er octobre 2026
Surface : divisibles à partir de 1 568 m²
Entrepôts - 5 051m²
AULNAY SOUS BOIS (93600)
AULNAY SOUS BOIS (93600)
63 137.50€/mois HT HC
Disponibilité : Immédiate
Surface : 5 051 m²
Les entrepreneurs ayant consulté cette offre ont aussi consulté celles ci
Entrepôts - 17 514m² Divisibles à partir de 7 670 m²
LE MEUX (60880)
LE MEUX (60880)
32 597.50€/mois HT HC
Disponibilité : Octobre 2024
Surface : divisibles à partir de 7 670 m²
Entrepôts - 6 734m²
SAINT MICHEL SUR ORGE (91240)
SAINT MICHEL SUR ORGE (91240)
56 116.67€/mois HT HC
Disponibilité : Immédiate
Surface : 6 734 m²
Entrepôts et Bureaux - 464m² Divisibles à partir de 22 m²
TRESSES (33370)
TRESSES (33370)
810.00€/mois HT HC
Disponibilité : Selon lots
Surface : divisibles à partir de 22 m²
Entrepôts - 17 175m² Divisibles à partir de 1 568 m²
BLANQUEFORT (33290)
BLANQUEFORT (33290)
104 046.67€/mois HT HC
Disponibilité : 1er octobre 2026
Surface : divisibles à partir de 1 568 m²