Retour
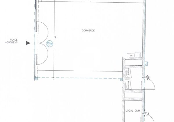
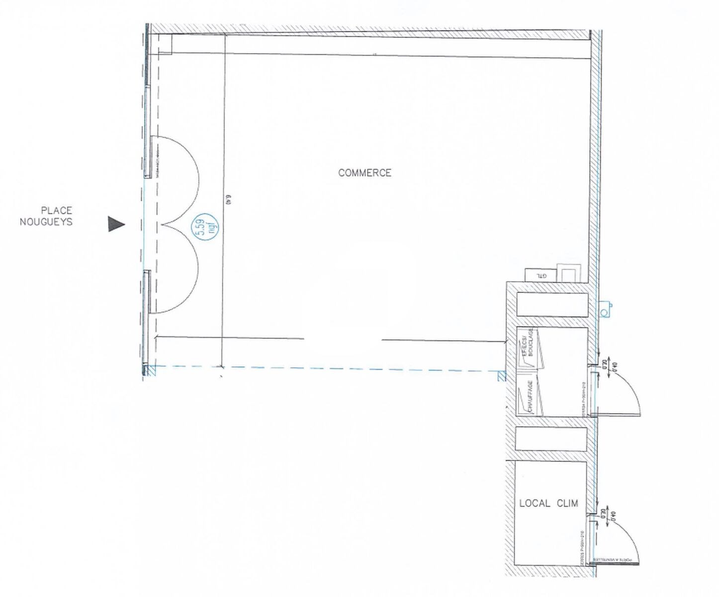
Locaux Commerciaux - 50.84m² à Louer
. Accès véhicules légers
. Accès PMR . Neuf/Restructuré
. Brut de béton fluide en attente
Locaux Commerciaux - 50.84m² à Louer
FLOIRAC (33270)
DESCRIPTION
Au cœur du centre ville de Floirac à proximité immédiate des transports en communs , IMMPROVE vous propose à la location un local commercial de 50m² idéal pour un commerce de proximité avec un emplacement stratégique au cœur de la vie locale. Un secteur en plein essor, mêlant habitat résidentiel dense et services de proximité.
Disponible 15 avril
En savoir plus
. Immeuble neuf. Accès véhicules légers
. Accès PMR . Neuf/Restructuré
. Brut de béton fluide en attente
Consommations énergétiques


Informations non contractuelles
Tableau des divisibilités
| Type | Étage | Surface | Loyer (€/m²/an HT HC) |
Charges (€/m²/an HT HC) |
|---|---|---|---|---|
| Locaux Commerciaux | Rez-de-Chaussée | 51 m² | 153.42 | Prix sur demande |
Caractéristiques
- Surface 50.84 m²
- Etat des locaux Neuf
Adresses
approximatives
Adresses
précises
Les entrepreneurs ayant consulté cette offre ont aussi consulté celles ci
Les services Immprove
Une gamme complète de services qui facilitent vos démarches et destinée à satisfaire vos attentes