Retour
Disponibilité 1er trimestre 2025
À Louer Locaux Commerciaux 147.60 m² BRUGES (33520)
Ajouter au comparateur
Vous souhaitez faciliter votre recherche ?
Créez un compte
Présentation du bien
Proche du centre ville de Bruges, IMMPROVE vous propose à la location un local commercial au RDC d’une résidence neuve. Ce local présente un linéaire de vitrine ainsi qu’une gaine d’extraction en attente.
Surface totale
Nature
Divisibilité
Etat des locaux
147.60 m²
Locaux Commerciaux
Non
Neuf
Prix & Conditions
Loyer :
230 € /m²/an (HT/HC)
2 357 € /mois (HT/HC)
28 290 € /an (HT/HC)
Dépôt de garantie :
3 mois de loyer HT HC
Conditions location :
Type de bail : commercial 3/6/9 ans, dérogatoire ou professionnel
Prestations & équipements du bien
Le bâtiment
Immeuble restructuré
Les espaces de travail
Immeuble neuf
Accès véhicules légers . Neuf
Espace ouvert
Le confort au quotidien
Locaux lumineux
Prestations spécifiques
Hauteur libre : 3,93m
Autres
Réserve cloisonnée
Type de bail : commercial 3/6/9 ans, dérogatoire ou professionnel
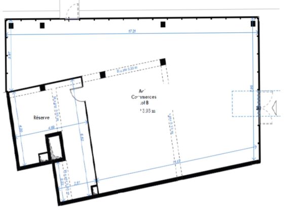
Répartition & surfaces des espaces
Tableau des divisibilités
| Type | Étage | Surface | Loyer (€/m²/an HT HC) |
Charges (€/m²/an HT HC) |
|---|---|---|---|---|
| Locaux Commerciaux | Rez-de-Chaussée | 123 m² | 230.35 | Prix sur demande |
| Réserve | Rez-de-Chaussée | 25 m² | 230.35 | Prix sur demande |
Performance énergétique du bien (DPE)


Informations non contractuelles
Localisation & accès
Transports en commun à proximité
SNCF gare de Bruges
Gare de Bruges
35
70
72
Adresses
approximatives
Adresses
précises
Nos nouveaux biens qui pourraient vous intéresser
Locaux Commerciaux - 544m²
PARIS (75020)
PARIS (75020)
14 833.52€/mois HT HC
Disponibilité : Immédiate
Surface : 544 m²
Locaux Commerciaux - 320m²
LILLE (59000)
LILLE (59000)
11 250.13€/mois HT HC
Disponibilité : Immédiate
Surface : 320 m²
Locaux Commerciaux - 105m² Divisibles à partir de 50 m²
ELANCOURT (78990)
ELANCOURT (78990)
1 000.00€/mois HT HC
Disponibilité : Immédiate
Surface : divisibles à partir de 50 m²
Les entrepreneurs ayant consulté cette offre ont aussi consulté celles ci
Locaux Commerciaux - 544m²
PARIS (75020)
PARIS (75020)
14 833.52€/mois HT HC
Disponibilité : Immédiate
Surface : 544 m²
Locaux Commerciaux - 320m²
LILLE (59000)
LILLE (59000)
11 250.13€/mois HT HC
Disponibilité : Immédiate
Surface : 320 m²
Bureaux et Locaux Commerciaux - 68.90m²
MAUREPAS (78310)
MAUREPAS (78310)
954.50€/mois HT HC
Disponibilité : Immédiate
Surface : 68.90 m²
Locaux Commerciaux - 105m² Divisibles à partir de 50 m²
ELANCOURT (78990)
ELANCOURT (78990)
1 000.00€/mois HT HC
Disponibilité : Immédiate
Surface : divisibles à partir de 50 m²