Retour
Disponibilité Immédiate
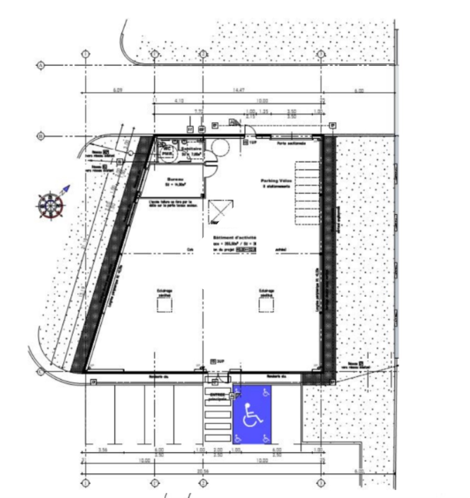
À Louer Locaux Commerciaux 355 m² CARQUEFOU (44470)
Ajouter au comparateur
Vous souhaitez faciliter votre recherche ?
Créez un compte
Présentation du bien
IMMPROVE vous propose un local commercial avec une très bonne visibilité sur la route de Paris.
Ce local se compose de 2 bureaux, sanitaires, une surface commerciale et une surface de stockage avec accès par une porte sectionnelle motorisée.
Surface totale
Nature
Divisibilité
Etat des locaux
355 m²
Locaux Commerciaux
Non
Bon état
Prix & Conditions
Loyer :
129 € /m²/an (HT/HC)
3 786 € /mois (HT/HC)
45 440 € /an (HT/HC)
Impôt foncier :
2000.00
Dépôt de garantie :
2 mois de loyer HT/HC
Prestations & équipements du bien
Le bâtiment
Bâtiment indépendant
Façade en bardage
Les espaces de travail
Aérothermes . Espace ouvert
Bureaux cloisonnés
Le confort au quotidien
Climatisation réversible
Climatisation réversible
Les accès
Accès véhicules légers
Accès poids lourds
Accès PMR
Porte sectionnelle de plain-pied 3.5X4
Prestations spécifiques
Chauffage par aérotherme
Autres
Locaux E.R.P.
Possibilité de normes E.R.P.
Répartition & surfaces des espaces
Tableau des divisibilités
| Type | Étage | Surface | Loyer (€/m²/an HT HC) |
Charges (€/m²/an HT HC) |
|---|---|---|---|---|
| Activités | Rez-de-Chaussée | 355 m² | 128.55 | 2.54 |
Performance énergétique du bien (DPE)


Informations non contractuelles
Localisation & accès
Transports en commun à proximité
Gare de Nantes à 20min en voiture
77
Accès routier
Route de Paris
Boulevard Périphérique D723 - Route de Paris - Rond Point de la Belle Etoile
Adresses
approximatives
Adresses
précises
Nos nouveaux biens qui pourraient vous intéresser
Locaux Commerciaux - 271.37m²
CARQUEFOU (44470)
CARQUEFOU (44470)
3 029.10€/mois HT HC
Disponibilité : Mars 2026
Surface : 271.37 m²
Les entrepreneurs ayant consulté cette offre ont aussi consulté celles ci
Locaux Commerciaux - 544m²
PARIS (75020)
PARIS (75020)
14 833.52€/mois HT HC
Disponibilité : Immédiate
Surface : 544 m²
Locaux Commerciaux - 320m²
LILLE (59000)
LILLE (59000)
11 250.13€/mois HT HC
Disponibilité : Immédiate
Surface : 320 m²
Bureaux et Locaux Commerciaux - 68.90m²
MAUREPAS (78310)
MAUREPAS (78310)
954.50€/mois HT HC
Disponibilité : Immédiate
Surface : 68.90 m²
Locaux Commerciaux - 105m² Divisibles à partir de 50 m²
ELANCOURT (78990)
ELANCOURT (78990)
1 000.00€/mois HT HC
Disponibilité : Immédiate
Surface : divisibles à partir de 50 m²