Retour
Disponibilité Immédiate
À Louer Locaux Commerciaux 185 m² RUE MICHEL ANGE PARIS (75016)
Ajouter au comparateur
Vous souhaitez faciliter votre recherche ?
Créez un compte
Présentation du bien
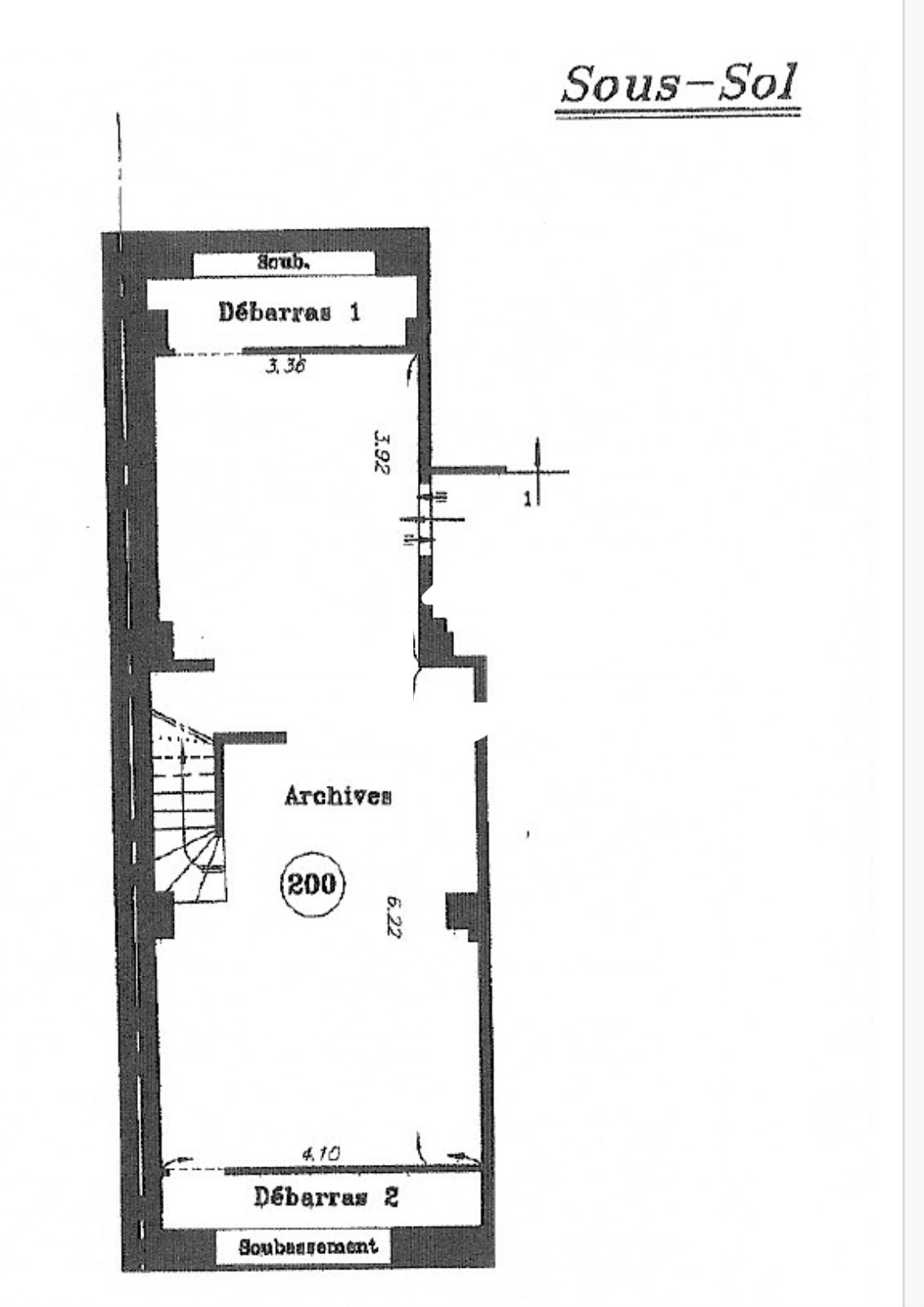
Au sein d’un immeuble art déco, Immprove vous propose à la location une surface d'environ 185 m² en duplex bénéficiant d’un accès direct sur rue. Cette surface en parfait état est composée d’un accueil, de 6 bureaux dont un avec balcon et d’une salle de réunion. Coin Cuisine et archives en sous-sol.
Surface totale
Nature
Divisibilité
Etat des locaux
185 m²
Locaux Commerciaux
Non
Bon état
Prix & Conditions
Loyer :
456 € /m²/an (HT/HC)
7 030 € /mois (HT/HC)
84 360 € /an (HT/HC)
Impôt foncier :
3299.00
Dépôt de garantie :
3 mois de loyer HT HC
Prestations & équipements du bien
Le bâtiment
Parties communes de qualité
Les espaces de travail
Chauffage immeuble Locaux traversants en bon état aménagés en :
Accueil
Six bureaux cloisonnés
Une salle de réunion
Cuisine
Archives en sous-sol
Câblage informatique et téléphonique
Le confort au quotidien
Balcon
Parquet
Les accès
Double accès dont un accès privatif sur rue
Accès PMR
Sécurité du site
Contrôle d'accès
Interphone
Répartition & surfaces des espaces
Tableau des divisibilités
| Type | Étage | Surface | Loyer (€/m²/an HT HC) |
Charges (€/m²/an HT HC) |
|---|---|---|---|---|
| Parkings | 1 000.00 | Prix sur demande | ||
| Locaux Commerciaux | Sous-Sol | 43 m² | 456.00 | 6 475.00 |
| Locaux Commerciaux | Rez-de-Chaussée | 80 m² | 456.00 | 6 475.00 |
| Locaux Commerciaux | 1er étage | 62 m² | 456.00 | 6 475.00 |
Performance énergétique du bien (DPE)


Informations non contractuelles
Localisation & accès
Transports en commun à proximité
54
62
72
22
42
N12
N61
175
189
289
Adresses
approximatives
Adresses
précises
Nos nouveaux biens qui pourraient vous intéresser
Locaux Commerciaux - 175m²
PARIS (75012)
PARIS (75012)
0.00€/mois HT HC
Disponibilité : Immédiate
Surface : 175 m²
Locaux Commerciaux - 167m²
PARIS (75013)
PARIS (75013)
6 262.50€/mois HT HC
Disponibilité : Immédiate
Surface : 167 m²
Locaux Commerciaux - 218.20m²
PARIS (75013)
PARIS (75013)
6 358.33€/mois HT HC
Disponibilité : Immédiate
Surface : 218.20 m²
Locaux Commerciaux - 148m²
PARIS (75008)
PARIS (75008)
0.00€/mois HT HC
Disponibilité : Immédiate
Surface : 148 m²
Les entrepreneurs ayant consulté cette offre ont aussi consulté celles ci
Locaux Commerciaux - 544m²
PARIS (75020)
PARIS (75020)
14 833.52€/mois HT HC
Disponibilité : Immédiate
Surface : 544 m²
Locaux Commerciaux - 320m²
LILLE (59000)
LILLE (59000)
11 250.13€/mois HT HC
Disponibilité : Immédiate
Surface : 320 m²
Bureaux et Locaux Commerciaux - 68.90m²
MAUREPAS (78310)
MAUREPAS (78310)
954.50€/mois HT HC
Disponibilité : Immédiate
Surface : 68.90 m²
Locaux Commerciaux - 105m² Divisibles à partir de 50 m²
ELANCOURT (78990)
ELANCOURT (78990)
1 000.00€/mois HT HC
Disponibilité : Immédiate
Surface : divisibles à partir de 50 m²