Retour
Disponibilité Immédiate
À Louer Bureaux 615.72 m² divisibles à partir de 86.21 m² LES HERONS 8 RUE DES HERONS ENTZHEIM (67960)
Ajouter au comparateur
Vous souhaitez faciliter votre recherche ?
Créez un compte
Présentation du bien
Immprove vous propose à la location des bureaux à partir de 85 m² dans un immeuble situé à l’Aéroparc d’Entzheim. Les surfaces disponibles sont en rez-de-chaussée ou en étage. Le site est équipé de bornes électriques.
Le stockage en rez-de-chaussée est accessible par une porte sectionnelle commune.
Surface totale
Nature
Divisibilité
Etat des locaux
615.72 m²
Bureaux
Oui à partir de 86.21 m²
Bon état
Prix & Conditions
Loyer :
80 € /m²/an (HT/HC)
574 € /mois (HT/HC)
6 896 € /an (HT/HC)
Divisibles à partir de 86.21 m²
Impôt foncier :
19.74
Dépôt de garantie :
3 mois de loyer HT HC
Prestations & équipements du bien
Les espaces de travail
Bureaux cloisonnés
Luminaires encastrés Led
Le confort au quotidien
Sol moquette
Climatisations réversibles
Autres
Murs peints
Goulottes Périphériques
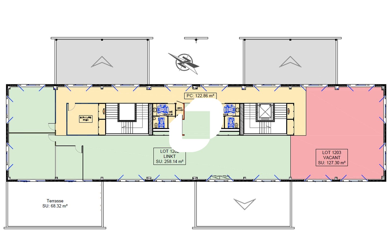
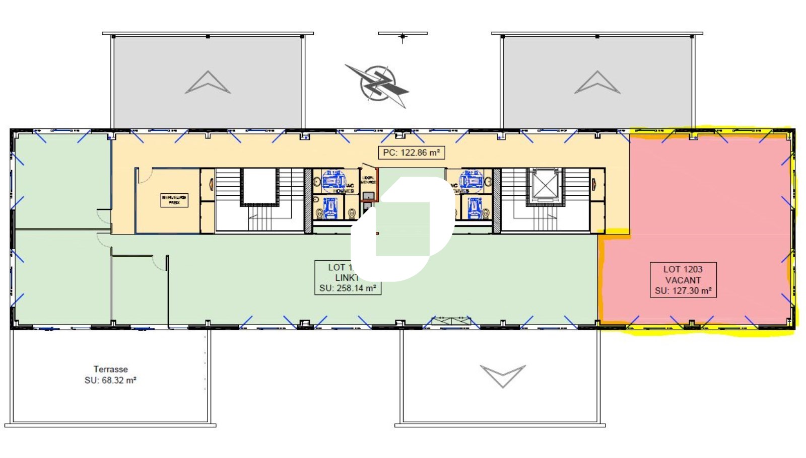
Répartition & surfaces des espaces
Tableau des divisibilités
| Type | Étage | Surface | Loyer (€/m²/an HT HC) |
Charges (€/m²/an HT HC) |
|---|---|---|---|---|
| Activités | Rez-de-Chaussée | 245 m² | 80.00 | 38.26 |
| Activités | Rez-de-Chaussée | 134 m² | 80.00 | 38.26 |
| Bureaux | Rez-de-Chaussée | 86 m² | 120.00 | 42.27 |
| Bureaux | 2ème étage | 150 m² | 120.00 | 40.26 |
Performance énergétique du bien (DPE)


Informations non contractuelles
Localisation & accès
Transports en commun à proximité
Gare TGV Strasbourg-10 mn en voiture depuis l'aérogare d'Entzheim
12
42
Accès routier
Aéroport d'Entzheim 5 mn en voiture
A35 20 mn
Adresses
approximatives
Adresses
précises
Nos nouveaux biens qui pourraient vous intéresser
Bureaux - 209.91m² Divisibles à partir de 99.74 m²
ENTZHEIM (67960)
ENTZHEIM (67960)
1 237.50€/mois HT HC
Disponibilité : Se référer au tableau des surfaces
Surface : divisibles à partir de 99.74 m²
Les entrepreneurs ayant consulté cette offre ont aussi consulté celles ci
Bureaux - 348.02m²
BIEVRES (91570)
BIEVRES (91570)
3 480.00€/mois HT HC
Disponibilité : 1er juillet 2026
Surface : 348.02 m²
Bureaux - 288.28m²
BIEVRES (91570)
BIEVRES (91570)
2 880.00€/mois HT HC
Disponibilité : 1er juillet 2026
Surface : 288.28 m²
Bureaux et Activités - 4 645.22m² Divisibles à partir de 249.90 m²
VILLIERS SUR MARNE (94350)
VILLIERS SUR MARNE (94350)
54 180.00€/mois HT HC
Disponibilité : Immédiate
Surface : divisibles à partir de 249.90 m²
Bureaux - 447m²
MOUSSY LE NEUF (77230)
MOUSSY LE NEUF (77230)
4 097.50€/mois HT HC
Disponibilité : Immédiate
Surface : 447 m²