Retour
Disponibilité Immédiate
À Louer Locaux d'Activités 630 m² RUE DE LORRAINE LA CHAPELLE SUR ERDRE (44240)
Ajouter au comparateur
Vous souhaitez faciliter votre recherche ?
Créez un compte
Présentation du bien
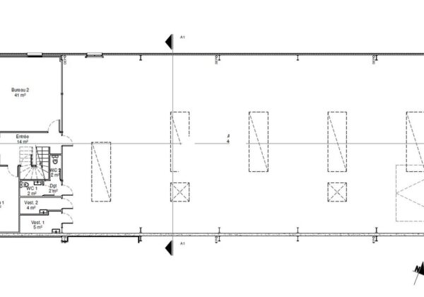
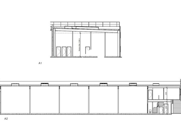
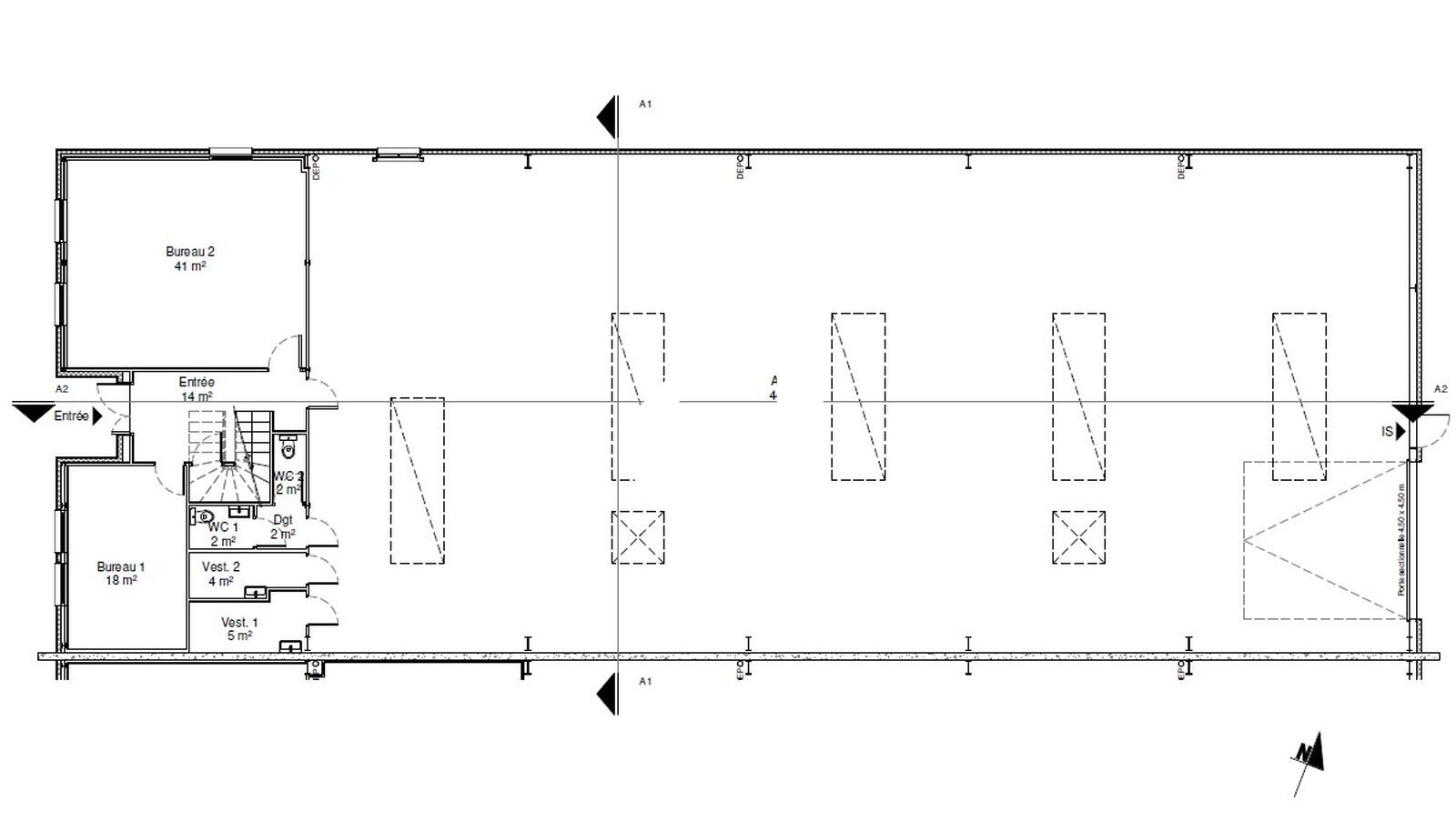
IMMPROVE vous propose à la location un local d’activité d’environ 450 m² avec des bureaux en RDC et étage d’environ 180 m².
Situé dans la zone dynamique de la Chapelle sur Erdre et proche du tram-train, ce local dispose de 15 places de stationnements privatif.
Surface totale
Nature
Divisibilité
Etat des locaux
630 m²
Locaux d'Activités
Non
Bon état
Prix & Conditions
Loyer :
100 € /m²/an (HT/HC)
5 250 € /mois (HT/HC)
63 000 € /an (HT/HC)
Impôt foncier :
870.67
Dépôt de garantie :
1 mois de loyer HT/HC
Conditions location :
Remarques :
. Entretien et Maintenance : 3 587,03 €
. Espaces verts : 722,90 €
. Climatisation : 1 361,33 €
. Toiture : 541,90 €
. Dératisation : 551,02 €
. Portail sectionnel maintenance : 90,65 €
. Portail électriques maintenance : 258,40€
. Electrifications portails : 60,84 €
. Entretien et Maintenance : 3 587,03 €
. Espaces verts : 722,90 €
. Climatisation : 1 361,33 €
. Toiture : 541,90 €
. Dératisation : 551,02 €
. Portail sectionnel maintenance : 90,65 €
. Portail électriques maintenance : 258,40€
. Electrifications portails : 60,84 €
Prestations & équipements du bien
Le bâtiment
Façade en bardage
Les espaces de travail
Fibre optique
Bureaux cloisonnés
Le confort au quotidien
Climatisation
Les accès
Accès véhicules légers
Accès poids lourds
Porte sectionnelle de plain-pied :
Dimensions porte : 4,5 (H) x 4,5 (L) m
Portail d'accès
Porte sectionnelle : 4.5X4.5
Sécurité du site
Site clos
Système de télésurveillance
Prestations spécifiques
Hauteur libre : 5 m
Autres
Alarme
Vestiaires
Sanitaires
Remarques :
. Entretien et Maintenance : 3 587,03 €
. Espaces verts : 722,90 €
. Climatisation : 1 361,33 €
. Toiture : 541,90 €
. Dératisation : 551,02 €
. Portail sectionnel maintenance : 90,65 €
. Portail électriques maintenance : 258,40€
. Electrifications portails : 60,84 €
Répartition & surfaces des espaces
Tableau des divisibilités
| Type | Étage | Surface | Loyer (€/m²/an HT HC) |
Charges (€/m²/an HT HC) |
|---|---|---|---|---|
| Activités | 630 m² | 100.00 | 7.08 |
Performance énergétique du bien (DPE)


Informations non contractuelles
Localisation & accès
Transports en commun à proximité
T1 - Gare de Erdre active
LCE
Accès routier
A11
Adresses
approximatives
Adresses
précises
Nos nouveaux biens qui pourraient vous intéresser
Locaux d'Activités - 240m²
LA CHAPELLE SUR ERDRE (44240)
LA CHAPELLE SUR ERDRE (44240)
1 700.00€/mois HT HC
Disponibilité : 1er février 2026
Surface : 240 m²
Locaux d'Activités - 880m²
LA CHAPELLE SUR ERDRE (44240)
LA CHAPELLE SUR ERDRE (44240)
4 998.40€/mois HT HC
Disponibilité : Immédiate
Surface : 880 m²
Locaux d'Activités - 1 410m²
LA CHAPELLE SUR ERDRE (44240)
LA CHAPELLE SUR ERDRE (44240)
7 917.15€/mois HT HC
Disponibilité : Immédiate
Surface : 1 410 m²
Les entrepreneurs ayant consulté cette offre ont aussi consulté celles ci
Locaux d'Activités - 507.70m²
SCHWEIGHOUSE SUR MODER (67590)
SCHWEIGHOUSE SUR MODER (67590)
Prix sur demande
Disponibilité : Immédiate
Surface : 507.70 m²
Locaux d'Activités - 215m²
SCHILTIGHEIM (67300)
SCHILTIGHEIM (67300)
1 433.33€/mois HT HC
Disponibilité : Immédiate
Surface : 215 m²
Locaux d'Activités - 253.85m²
SCHWEIGHOUSE SUR MODER (67590)
SCHWEIGHOUSE SUR MODER (67590)
Prix sur demande
Disponibilité : Immédiate
Surface : 253.85 m²
Locaux d'Activités - 290m²
SAINT HERBLAIN (44800)
SAINT HERBLAIN (44800)
2 333.29€/mois HT HC
Disponibilité : Immédiate
Surface : 290 m²