Retour
Disponibilité Immédiate
À Louer Locaux d'Activités 227 m² LA BOSSE BILLY VIGNEUX DE BRETAGNE (44360)
Ajouter au comparateur
Vous souhaitez faciliter votre recherche ?
Créez un compte
Présentation du bien
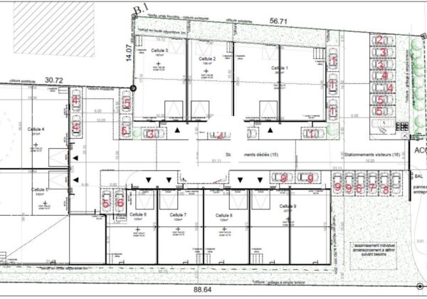
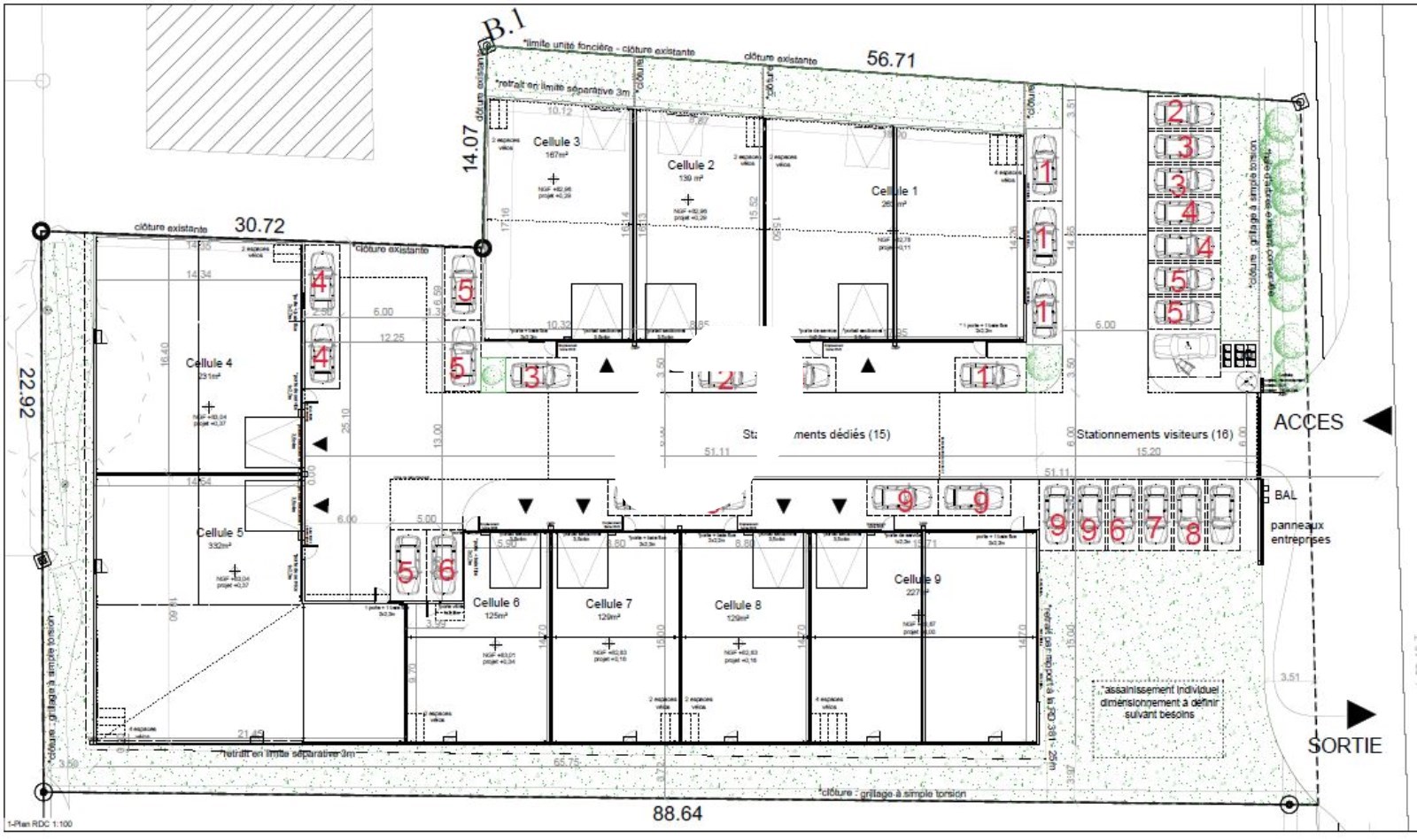
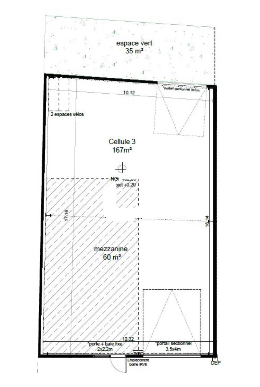
IMMPROVE vous propose à louer un local d’activité neuf d’environ 227 m², situé dans une zone dynamique de l’ouest de Nantes, au pied de la voie express Nantes-Savenay-Vannes-La Baule, à 10 min du périphérique.
Surface répartie sur 167 m² au RDC (bureaux climatisés, sanitaires avec douche et atelier/stockage) et 60 m² à l’étage (mezzanine de stockage avec possibilité de bureaux).
Surface totale
Nature
Divisibilité
Etat des locaux
227 m²
Locaux d'Activités
Non
Neuf
Prix & Conditions
Loyer :
106 € /m²/an (HT/HC)
1 986 € /mois (HT/HC)
23 834 € /an (HT/HC)
Dépôt de garantie :
2 mois de loyer HT/HC
Prestations & équipements du bien
Le bâtiment
Immeuble récent
Façade en bardage
Les espaces de travail
Fibre optique
Neuf
Sanitaires privatifs
Les accès
Accès véhicules légers
Accès poids lourds
Accès PMR
Portail d'accès
Portail sectionnel 3x3m (arrière)
Portail sectionnel 3.5x4m (avant)
Sécurité du site
Site clos
Accès sécurisé
Autres
Couverture : Bac acier
Ossature : Métallique
Bardage : Double peau
Douche
Répartition & surfaces des espaces
Tableau des divisibilités
| Type | Étage | Surface | Loyer (€/m²/an HT HC) |
Charges (€/m²/an HT HC) |
|---|---|---|---|---|
| Activités | 227 m² | 105.73 | 5.71 |
Performance énergétique du bien (DPE)


Informations non contractuelles
Localisation & accès
Transports en commun à proximité
Gare de Nantes à 40min
Accès routier
Nantes Atlantique à 25min
N165 Nantes - Saint Nazaire
D381 Vigneux de Bretagne - Saint Etienne de Montluc
Adresses
approximatives
Adresses
précises
Nos nouveaux biens qui pourraient vous intéresser
Locaux d'Activités - 215m²
SCHILTIGHEIM (67300)
SCHILTIGHEIM (67300)
1 433.33€/mois HT HC
Disponibilité : Immédiate
Surface : 215 m²
Locaux d'Activités - 290m²
SAINT HERBLAIN (44800)
SAINT HERBLAIN (44800)
2 333.29€/mois HT HC
Disponibilité : Immédiate
Surface : 290 m²
Locaux d'Activités - 3 087.70m²
SARTROUVILLE (78500)
SARTROUVILLE (78500)
19 835.25€/mois HT HC
Disponibilité : Immédiate
Surface : 3 087.70 m²
Locaux d'Activités - 442m²
SERVON (77170)
SERVON (77170)
4 235.83€/mois HT HC
Disponibilité : Immédiate
Surface : 442 m²
Les entrepreneurs ayant consulté cette offre ont aussi consulté celles ci
Locaux d'Activités - 507.70m²
SCHWEIGHOUSE SUR MODER (67590)
SCHWEIGHOUSE SUR MODER (67590)
Prix sur demande
Disponibilité : Immédiate
Surface : 507.70 m²
Locaux d'Activités - 215m²
SCHILTIGHEIM (67300)
SCHILTIGHEIM (67300)
1 433.33€/mois HT HC
Disponibilité : Immédiate
Surface : 215 m²
Locaux d'Activités - 253.85m²
SCHWEIGHOUSE SUR MODER (67590)
SCHWEIGHOUSE SUR MODER (67590)
Prix sur demande
Disponibilité : Immédiate
Surface : 253.85 m²
Locaux d'Activités - 290m²
SAINT HERBLAIN (44800)
SAINT HERBLAIN (44800)
2 333.29€/mois HT HC
Disponibilité : Immédiate
Surface : 290 m²