Retour
Disponibilité Immédiate
À Louer Locaux d'Activités 2 235 m² divisibles à partir de 203 m² FLEVY (57365)
Ajouter au comparateur
Vous souhaitez faciliter votre recherche ?
Créez un compte
Présentation du bien
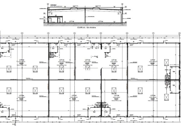
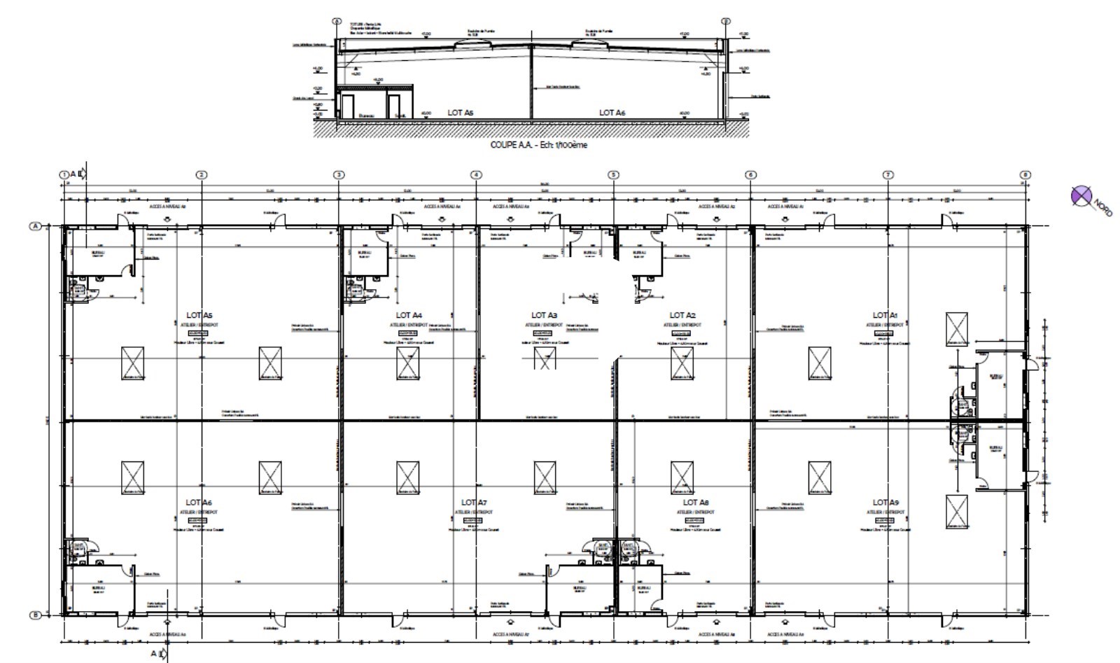
Immprove vous propose un parc d’activités neuf à la location dans une ZAC de la Fontaine des Saints à Flévy.
Cellules divisibles à partir de 182 m² avec bureaux d’accompagnement en RDC avec stationnements. Accès A31 et A4.
Surface totale
Nature
Divisibilité
Etat des locaux
2 235 m²
Locaux d'Activités
Oui à partir de 203 m²
Neuf
Prix & Conditions
Loyer :
86 € /m²/an (HT/HC)
1 454 € /mois (HT/HC)
17 458 € /an (HT/HC)
Divisibles à partir de 203 m²
Dépôt de garantie :
3 mois de loyer HT HC
Prestations & équipements du bien
Le bâtiment
Façade en bardage qualitative
Les espaces de travail
Bâtiment d’activités neuf
Accueil
Espace ouvert
Bureaux cloisonnés
Faux plafonds
Pré-câblage informatique et téléphonique
Sanitaires privatifs
Le confort au quotidien
Moquette
Les accès
Accès véhicules légers et moyens porteurs
Portail d'accès
Sécurité du site
Site clos et sécurisé . Plain-Pied : 1 par cellule
Prestations spécifiques
Hauteur libre : 6 mètres
Charge au sol : 3 tonnes / m²
Répartition & surfaces des espaces
Tableau des divisibilités
| Type | Étage | Surface | Loyer (€/m²/an HT HC) |
Charges (€/m²/an HT HC) |
|---|---|---|---|---|
| Activités | 405 m² | 86.00 | Prix sur demande | |
| Activités | 203 m² | 86.00 | Prix sur demande | |
| Activités | 203 m² | 86.00 | Prix sur demande | |
| Activités | 410 m² | 86.00 | Prix sur demande | |
| Activités | 406 m² | 86.00 | Prix sur demande | |
| Activités | 203 m² | 86.00 | Prix sur demande | |
| Activités | 405 m² | 86.00 | Prix sur demande | |
| Parkings | Prix sur demande | Prix sur demande |
Performance énergétique du bien (DPE)


Informations non contractuelles
Localisation & accès
Transports en commun à proximité
SNCF gare de Metz à 20 km
Accès routier
A31 et A4 à 6 km
Lorraine Aéroport à 35 km
Adresses
approximatives
Adresses
précises
Nos nouveaux biens qui pourraient vous intéresser
Locaux d'Activités - 6 200m²
BELLEVILLE EN BEAUJOLAIS (69220)
BELLEVILLE EN BEAUJOLAIS (69220)
40 000.33€/mois HT HC
Disponibilité : 2ème trimestre 2027
Surface : 6 200 m²
Locaux d'Activités - 25 338m² Divisibles à partir de 6 309 m²
MARIGNANE (13700)
MARIGNANE (13700)
60 796.67€/mois HT HC
Disponibilité : T3 2027
Surface : divisibles à partir de 6 309 m²
Locaux d'Activités - 8 095m² Divisibles à partir de 1 970 m²
LES MUREAUX (78130)
LES MUREAUX (78130)
19 700.00€/mois HT HC
Disponibilité : Immédiate
Surface : divisibles à partir de 1 970 m²
Locaux d'Activités - 177m²
VENDENHEIM (67550)
VENDENHEIM (67550)
1 100.06€/mois HT HC
Disponibilité : 1er aout 2026
Surface : 177 m²
Les entrepreneurs ayant consulté cette offre ont aussi consulté celles ci
Locaux d'Activités - 6 200m²
BELLEVILLE EN BEAUJOLAIS (69220)
BELLEVILLE EN BEAUJOLAIS (69220)
40 000.33€/mois HT HC
Disponibilité : 2ème trimestre 2027
Surface : 6 200 m²
Locaux d'Activités - 8 095m² Divisibles à partir de 1 970 m²
LES MUREAUX (78130)
LES MUREAUX (78130)
19 700.00€/mois HT HC
Disponibilité : Immédiate
Surface : divisibles à partir de 1 970 m²
Locaux d'Activités - 177m²
VENDENHEIM (67550)
VENDENHEIM (67550)
1 100.06€/mois HT HC
Disponibilité : 1er aout 2026
Surface : 177 m²
Locaux d'Activités - 296m²
VENDENHEIM (67550)
VENDENHEIM (67550)
1 799.93€/mois HT HC
Disponibilité : Juin 2026
Surface : 296 m²