Retour
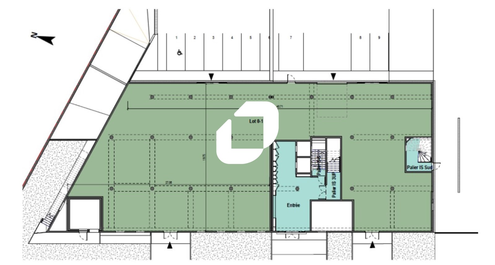
Locaux d'Activités - 729m² à Louer
. Entrée privative en RDC par la rue Paul Duvivier et accès livraison depuis la cour intérieure
. Panneaux solaires en toiture
. Terrasses et balcons
. Espace vert privé
. Des stationnements 2 roues
. Hauteur libre hors retombée des poutres : 5,45 m
. Connexion fibre optique
. Charges au sol : 1T 300 kg/m²
. Portes sectionnelles motorisées (4,5m x 4 m).
Locaux d'Activités - 729m² à Louer
LYON (69007)
DESCRIPTION
Immprove vous propose à la location une belle surface de 729 m² d’activité ou de stockage en RDC de l’immeuble NEW WORKER disponible immédiatement. Le local est situé à Lyon 7, secteur Garibaldi, bénéficiant d’un emplacement stratégique à proximité des axes routiers, des transports en commun et de nombreux services.
En savoir plus
. Site entièrement clos et sécurisé. Entrée privative en RDC par la rue Paul Duvivier et accès livraison depuis la cour intérieure
. Panneaux solaires en toiture
. Terrasses et balcons
. Espace vert privé
. Des stationnements 2 roues
. Hauteur libre hors retombée des poutres : 5,45 m
. Connexion fibre optique
. Charges au sol : 1T 300 kg/m²
. Portes sectionnelles motorisées (4,5m x 4 m).
Consommations énergétiques


Informations non contractuelles
Tableau des divisibilités
| Type | Étage | Surface | Loyer (€/m²/an HT HC) |
Charges (€/m²/an HT HC) |
|---|---|---|---|---|
| Parkings | 800.00 | Prix sur demande | ||
| Parkings | 1 200.00 | Prix sur demande | ||
| Activités | Rez-de-Chaussée | 729 m² | 125.00 | 10.98 |
Caractéristiques
- Surface 729 m²
- Etat des locaux Bon état
- Nbre Parking 90
Adresses
approximatives
Adresses
précises
Nos nouveaux biens qui pourraient vous intéresser
Les entrepreneurs ayant consulté cette offre ont aussi consulté celles ci
Les services Immprove
Une gamme complète de services qui facilitent vos démarches et destinée à satisfaire vos attentes