Retour
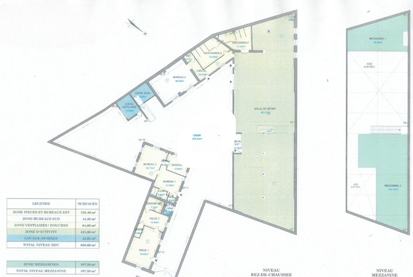
Locaux d'Activités - 874.90m² à Louer
. Accès de plain-pied
. Accès VL
. Site ERP
. Alarme
. Portail avec BIP
. Cour privative
. Façade : 13 ML environ
. Couverture : tuiles, flockage anti feu ERP
. 10 parkings sur le site
-ACTIVITES-
. 2 portes sectionnelles : une automatique, l’autre manuelle (3m x 3m)
. Charpente métallique
. Hauteur sous plafond atelier : 8 m sous ferme
. Hauteur faitage 8m7
. Hauteur sous charpente : 6m3
. Structure : bardage simple peau
. Murs moellons + Mâchefer
. Sol : dalle béton
. Chauffage aérotherme
. Tarif bleu
- MEZZANINE-
. Portance mezzanine : à vérifier mais 350 kg/m²
. Hauteur sous la charpente : 4m5
. Hauteur sous mezzanine : 3m4
-BUREAUX-
. 3 bureaux cloisonnés au RDC
. Sanitaires / Vestiaires / Coin cuisine
. Faux-plafond
. Chauffage individuel
. Climatisation réversible dans certains bureaux
. Triphasé : à voir
Locaux d'Activités - 874.90m² à Louer
LYON (69007)
DESCRIPTION
Immprove vous propose au cœur du 7ème arrondissement de Lyon, un bâtiment d’activités indépendant de 875 m² sur un terrain privatif de 1 300 m², idéalement situé à proximité immédiate de Jean Macé et des grands axes. Bénéficiez d’un site fonctionnel et sécurisé avec cour privative, 10 stationnements, accès de plain-pied et deux portes sectionnelles.
En savoir plus
-BATIMENT-. Accès de plain-pied
. Accès VL
. Site ERP
. Alarme
. Portail avec BIP
. Cour privative
. Façade : 13 ML environ
. Couverture : tuiles, flockage anti feu ERP
. 10 parkings sur le site
-ACTIVITES-
. 2 portes sectionnelles : une automatique, l’autre manuelle (3m x 3m)
. Charpente métallique
. Hauteur sous plafond atelier : 8 m sous ferme
. Hauteur faitage 8m7
. Hauteur sous charpente : 6m3
. Structure : bardage simple peau
. Murs moellons + Mâchefer
. Sol : dalle béton
. Chauffage aérotherme
. Tarif bleu
- MEZZANINE-
. Portance mezzanine : à vérifier mais 350 kg/m²
. Hauteur sous la charpente : 4m5
. Hauteur sous mezzanine : 3m4
-BUREAUX-
. 3 bureaux cloisonnés au RDC
. Sanitaires / Vestiaires / Coin cuisine
. Faux-plafond
. Chauffage individuel
. Climatisation réversible dans certains bureaux
. Triphasé : à voir
Consommations énergétiques


Informations non contractuelles
Tableau des divisibilités
| Type | Étage | Surface | Loyer (€/m²/an HT HC) |
Charges (€/m²/an HT HC) |
|---|---|---|---|---|
| Activités | 875 m² | 112.93 | 2.18 |
Caractéristiques
. Bail commercial investisseur notarié : 10 ans ou plus
- Surface 874.90 m²
- Etat des locaux Bon état
Adresses
approximatives
Adresses
précises
Nos nouveaux biens qui pourraient vous intéresser
Les entrepreneurs ayant consulté cette offre ont aussi consulté celles ci
Les services Immprove
Une gamme complète de services qui facilitent vos démarches et destinée à satisfaire vos attentes