Retour
Locaux d'Activités - 255m² à Louer
. Toiture refaite bac acier isolé
. Accès poids lourds de plain-pied
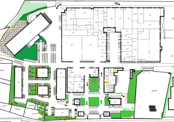
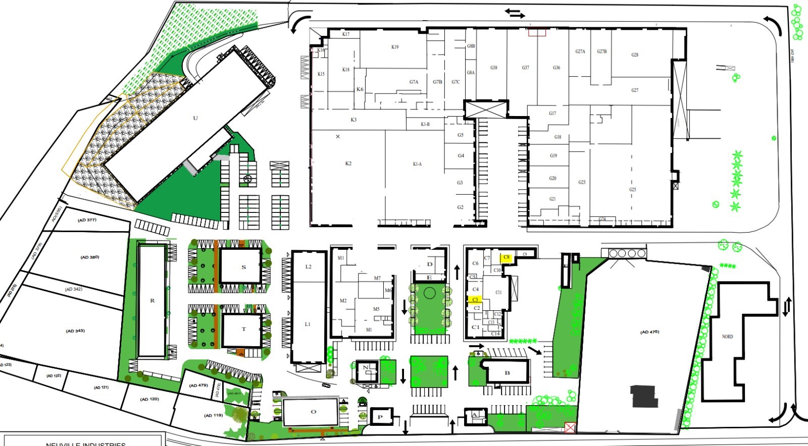
. Cour de déchargement -Lot C8-
. Dalle classique : 1,5 tonne
. Hauteur max 11 M , avec 7m40 et 6 M
. Porte d’entrée : 3 x 3m
. Fibre
. Fluide ok
. Parking devant la cellule et parking commun
-Lot C3-
. Dalle classique 1,5 Tonne
. Hauteur 3 m
. Mur béton
. Faux plafond
. Parking commun
Locaux d'Activités - 255m² à Louer
AVENUE CARNOT NEUVILLE SUR SAONE (69250)
DESCRIPTION
Immprove vous propose sein d'un parc d'activités clos et entièrement sécurisé sur la commune de Neuville sur Saône, deux cellules de 200 m² et 55 m² offrant des espaces de stockages et entrepôts fonctionnels. Idéales pour des activités nécessitant un espace de stockage.
En savoir plus
. Charpente métallique. Toiture refaite bac acier isolé
. Accès poids lourds de plain-pied
. Cour de déchargement -Lot C8-
. Dalle classique : 1,5 tonne
. Hauteur max 11 M , avec 7m40 et 6 M
. Porte d’entrée : 3 x 3m
. Fibre
. Fluide ok
. Parking devant la cellule et parking commun
-Lot C3-
. Dalle classique 1,5 Tonne
. Hauteur 3 m
. Mur béton
. Faux plafond
. Parking commun
Consommations énergétiques


Informations non contractuelles
Tableau des divisibilités
| Type | Étage | Surface | Loyer (€/m²/an HT HC) |
Charges (€/m²/an HT HC) |
|---|---|---|---|---|
| Activités | Rez-de-Chaussée | 55 m² | 76.36 | 7.50 |
| Activités | Rez-de-Chaussée | 200 m² | 60.00 | 7.50 |
Caractéristiques
- Surface 255 m²
- Etat des locaux Bon état
Adresses
approximatives
Adresses
précises
Les entrepreneurs ayant consulté cette offre ont aussi consulté celles ci
Les services Immprove
Une gamme complète de services qui facilitent vos démarches et destinée à satisfaire vos attentes