À Louer Locaux d'Activités 252 m² NEUVILLE SUR SAONE (69250)
Présentation du bien
Prix & Conditions
Signalétique 250 € HT
Etat des lieux effectués par une société externe
Prestations & équipements du bien
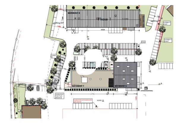
Cour de déchargement . Accès véhicules légers / Accès PL
Accès poids lourds de plain-pied
Aire de manœuvre
Aire de chargement
1 porte sectionnelle de plain-pied par lot (3 m x 3 m)
Portail d'accès
Contrôle d'accès : Parc fermé hors horaires bureaux (7h-19h)
Gardiennage : 4 rondes Securitas / nuit
Hauteur libre : 4,5 m
Tarif jaune sur RDC pour le lot R1
Pour le lot S : Possibilité terrasse de 40 m² et terrain extérieur privatif
Nombreux parkings extérieurs
Charpente métallique
Toiture refaite bac acier isolé
Charges au sol : 3T/m²
Le RDC (activités) est climatisé et chauffé
Répartition & surfaces des espaces
Tableau des divisibilités
| Type | Étage | Surface | Loyer (€/m²/an HT HC) |
Charges (€/m²/an HT HC) |
|---|---|---|---|---|
| Activités | 252 m² | 75.39 | 7.60 |
Performance énergétique du bien (DPE)


Informations non contractuelles
Localisation & accès
Transports en commun à proximité
Gare d'Albigny sur Soane à 1.7 km soit 20 min à pied
Gare de Vaise à 14 min en train
SNCF gare de Perrache à 23 min
SNCF gare de Jean Macé à 28 min
Accès routier
Proximité A46 (sortie Genay à 4 km soit 7 minutes)
Adresses
approximatives
Adresses
précises
Nos nouveaux biens qui pourraient vous intéresser
NEUVILLE SUR SAONE (69250)
Les entrepreneurs ayant consulté cette offre ont aussi consulté celles ci
GEUDERTHEIM (67170)
LE BLANC MESNIL (93150)
COIGNIERES (78310)
PUTEAUX (92800)