Retour
Disponibilité Immédiate
À Louer Locaux d'Activités 486.90 m² divisibles à partir de 50.70 m² PARIS (75020)
Ajouter au comparateur
Vous souhaitez faciliter votre recherche ?
Créez un compte
Présentation du bien
Idéalement situés au cœur du quartier de Belleville, IMMPROVe propose à la location de petits locaux neufs, parfaitement adaptés aux activités artisanales et artistiques.
L’immeuble est sécurisé, accessible 24h/24, avec sanitaires PMR et un monte-charge de 1 600 kg. Les locaux sont lumineux et fonctionnels, idéaux pour tout type d’atelier ou d’activité créative.
Informations techniques : extraction non possible, installation du triphasé à la charge du locataire.
Surface totale
Nature
Divisibilité
Etat des locaux
486.90 m²
Locaux d'Activités
Oui à partir de 50.70 m²
Bon état
Prix & Conditions
Loyer :
210 € /m²/an (HT/HC)
887 € /mois (HT/HC)
10 647 € /an (HT/HC)
Divisibles à partir de 50.70 m²
Dépôt de garantie :
3 mois de loyer HT HC
Prestations & équipements du bien
Les espaces de travail
Luminaires suspendus LED
Fibre optique
Les accès
Portail d'entrée
Portail aire de livraiosn
Accessibilité
Monte-charges
Prestations spécifiques
Chauffage à vanne thermostatique
Autres
Dalles marines en plafond
Prises électriques étanches
Interrupteurs manuels
Alarmes incendies
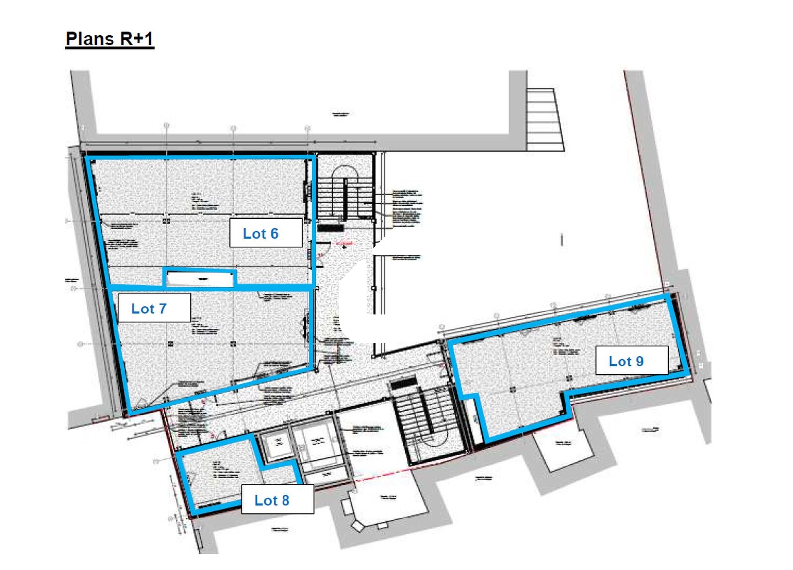
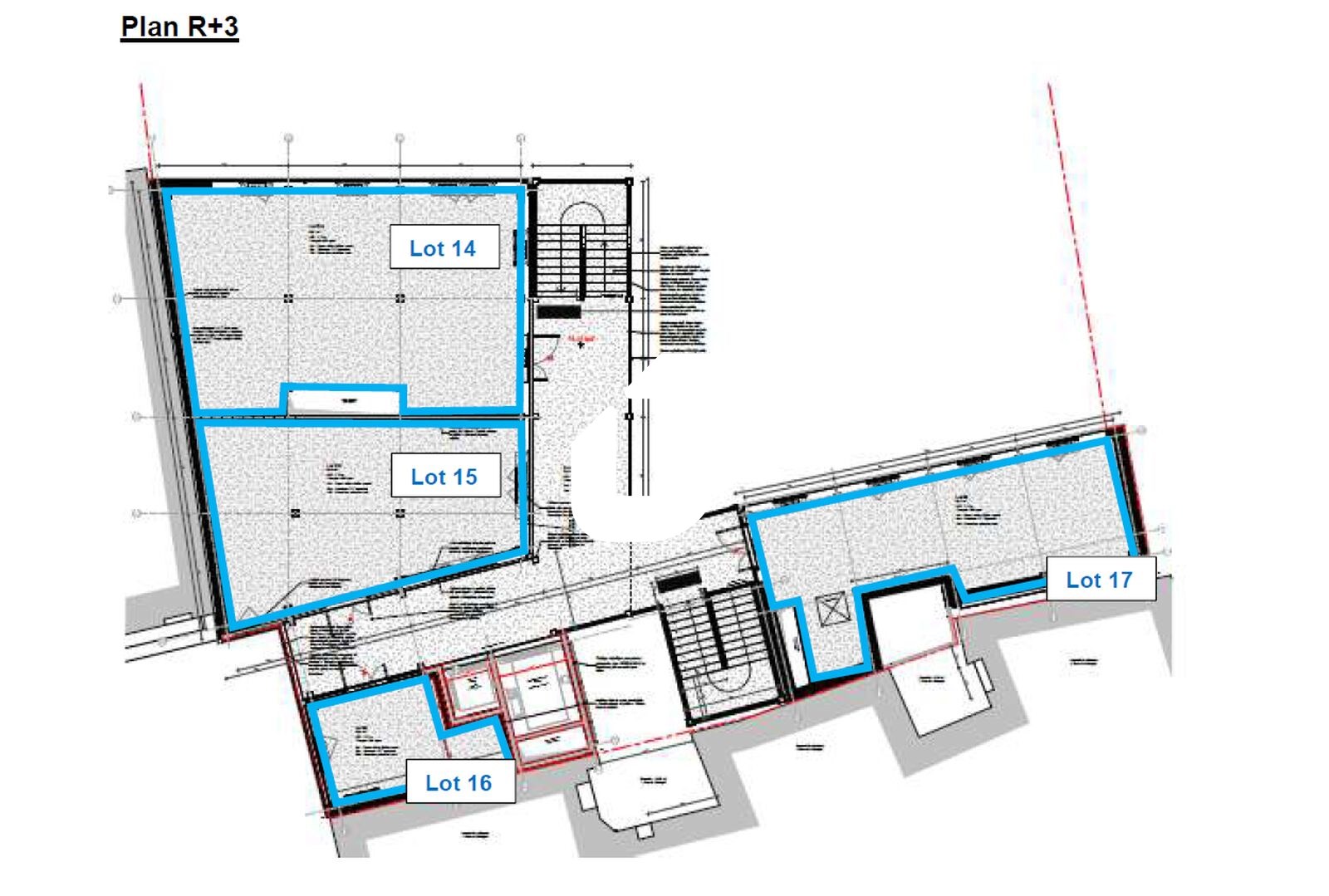
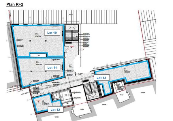
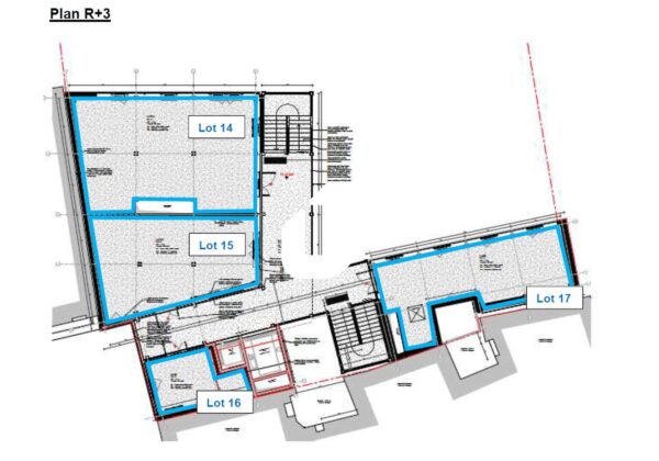
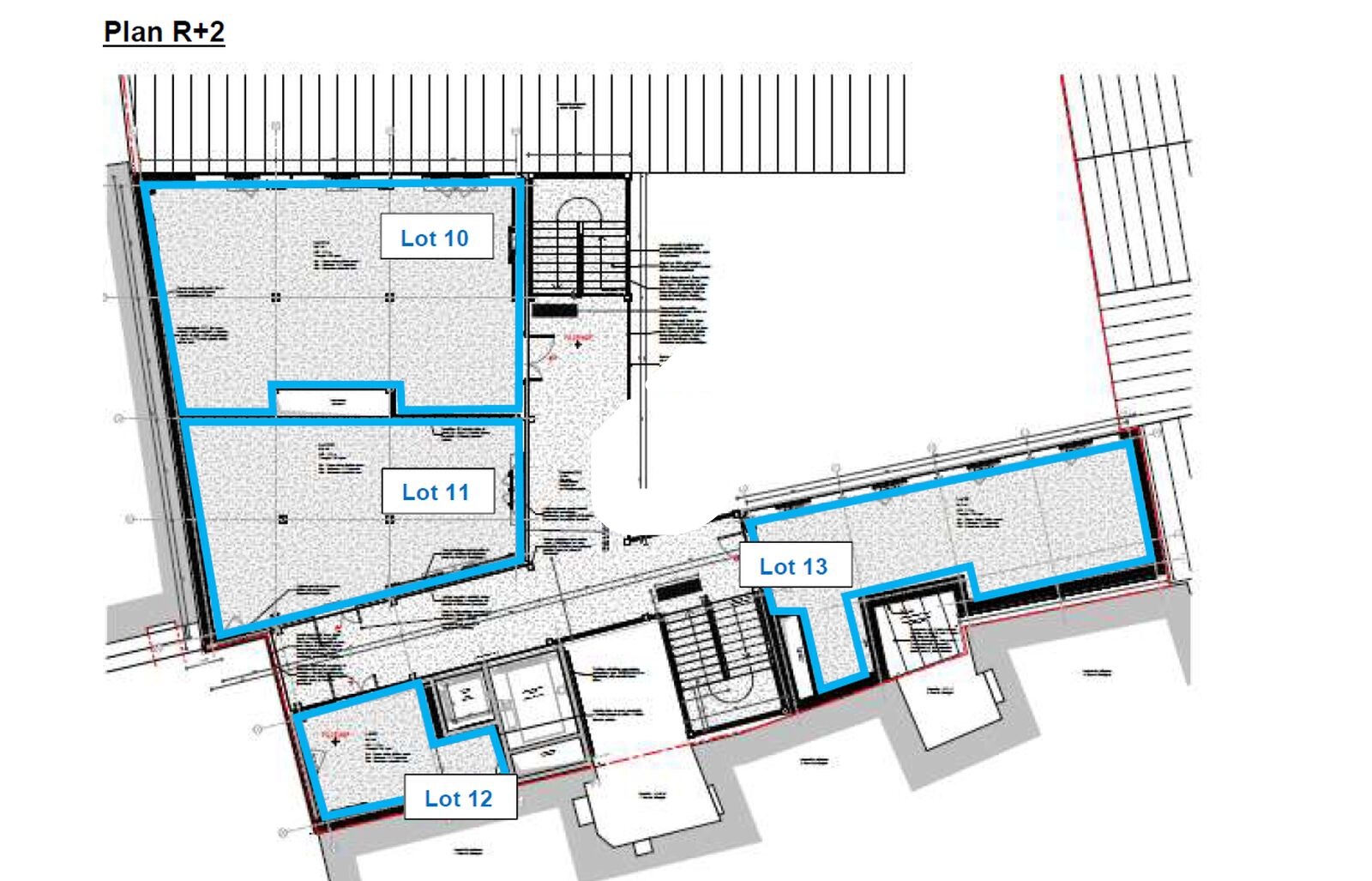
Répartition & surfaces des espaces
Tableau des divisibilités
| Type | Étage | Surface | Loyer (€/m²/an HT HC) |
Charges (€/m²/an HT HC) |
|---|---|---|---|---|
| Activités | RdC Haut | 84 m² | 210.00 | 100.39 |
| Activités | RdC Haut | 62 m² | 210.00 | 100.39 |
| Activités | R + 1 | 84 m² | 210.00 | 100.39 |
| Activités | R + 1 | 62 m² | 210.00 | 100.39 |
| Activités | R + 2 | 84 m² | 210.00 | 100.39 |
| Activités | 3ème étage | 61 m² | 210.00 | 100.39 |
| Activités | 3ème étage | 51 m² | 210.00 | 100.39 |
Performance énergétique du bien (DPE)


Informations non contractuelles
Localisation & accès
Transports en commun à proximité
20
71
96
Adresses
approximatives
Adresses
précises
Nos nouveaux biens qui pourraient vous intéresser
Locaux d'Activités - 1 300m²
PARIS (75012)
PARIS (75012)
21 125.00€/mois HT HC
Disponibilité : Immédiate
Surface : 1 300 m²
Locaux d'Activités - 5 069m² Divisibles à partir de 91 m²
PARIS (75018)
PARIS (75018)
6 841.25€/mois HT HC
Disponibilité : Immédiate
Surface : divisibles à partir de 91 m²
Locaux d'Activités - 1 566.80m² Divisibles à partir de 89.90 m²
PARIS (75019)
PARIS (75019)
3 593.33€/mois HT HC
Disponibilité : Immédiate
Surface : divisibles à partir de 89.90 m²
Les entrepreneurs ayant consulté cette offre ont aussi consulté celles ci
Locaux d'Activités - 363m²
SAINTE GENEVIEVE DES BOIS (91700)
SAINTE GENEVIEVE DES BOIS (91700)
2 873.75€/mois HT HC
Disponibilité : Nous consulter
Surface : 363 m²
Locaux d'Activités - 6 200m²
BELLEVILLE EN BEAUJOLAIS (69220)
BELLEVILLE EN BEAUJOLAIS (69220)
40 000.33€/mois HT HC
Disponibilité : 2ème trimestre 2027
Surface : 6 200 m²
Locaux d'Activités - 8 095m² Divisibles à partir de 1 970 m²
LES MUREAUX (78130)
LES MUREAUX (78130)
19 700.00€/mois HT HC
Disponibilité : Immédiate
Surface : divisibles à partir de 1 970 m²
Locaux d'Activités - 177m²
VENDENHEIM (67550)
VENDENHEIM (67550)
1 100.06€/mois HT HC
Disponibilité : 1er aout 2026
Surface : 177 m²