Retour
Disponibilité Immédiate
À Sous Louer Bureaux 136 m² RUE DE LA BIENFAISANCE PARIS (75008)
Ajouter au comparateur
Vous souhaitez faciliter votre recherche ?
Créez un compte
Présentation du bien
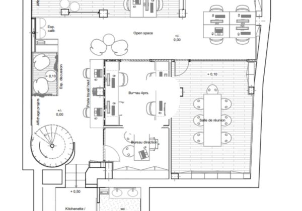
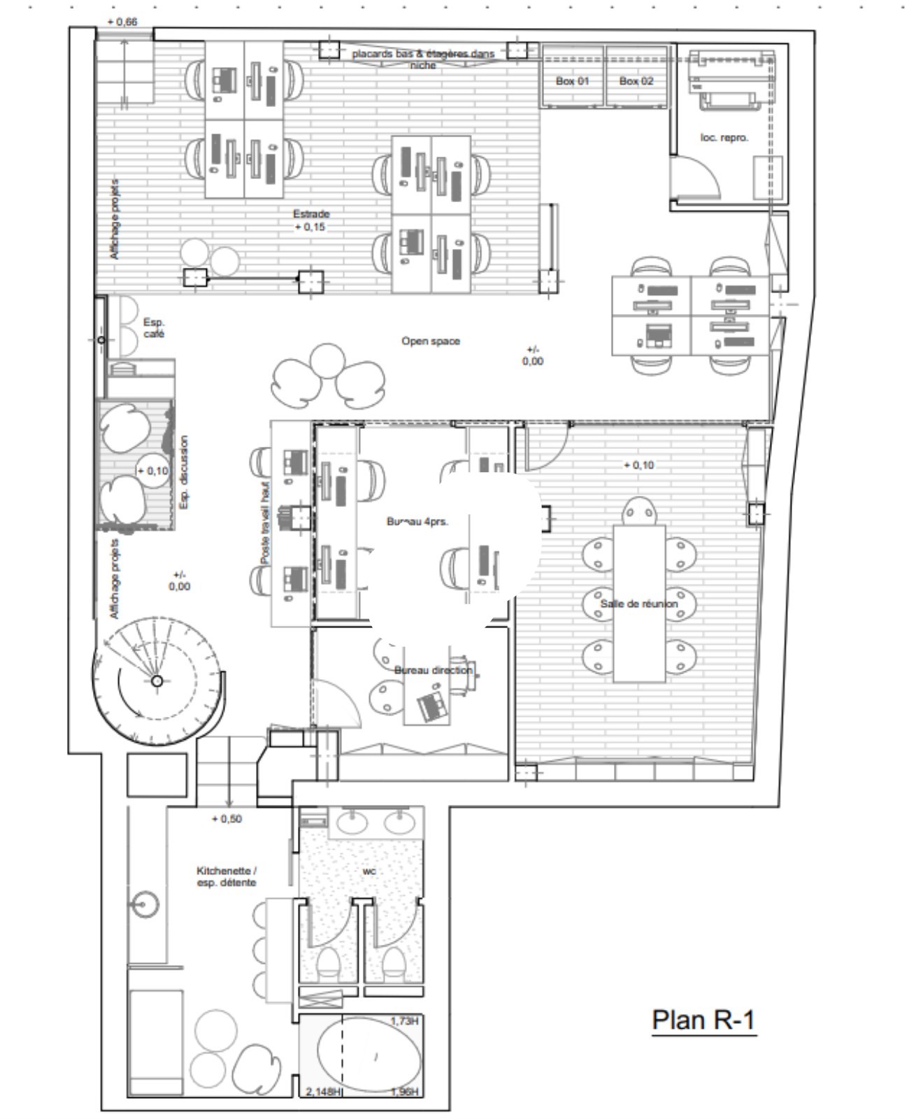
A proximité de la place Saint Augustin, IMMPROVE vous propose en exclusivité, une surface de bureaux de 136 m² environ dans un bel immeuble haussmannien avec gardienne. Ces locaux à louer en sous-sol sont entièrement rénovés avec de beaux matériaux comprenant un espace ouvert, un bureau privatif et une salle de réunion. Environnement calme, belle adresse, idéale pour une activité dans le secteur de l’audiovisuelle. Possibilité de prévoir une location meublée avec charges en sus.
Surface totale
Nature
Divisibilité
Etat des locaux
136 m²
Bureaux
Non
Rénové
Prix & Conditions
Loyer :
478 € /m²/an (HT/HC)
5 417 € /mois (HT/HC)
65 008 € /an (HT/HC)
Taxe bureaux :
26.11
Dépôt de garantie :
3 mois de loyer HT HC
Prestations & équipements du bien
Le bâtiment
Immeuble haussmannien
Façade en pierres de taille
Parties communes de bon standing
Les espaces de travail
Locaux rationnels et modulables aménagés en
Accueil
Espace ouvert
Bureaux cloisonnés
Salle de réunion
Espace détente
Local technique
Cuisine
Sanitaires privatifs
Les accès
Double accès
Sécurité du site
Gardienne
Interphone
Sas d'entrée
Répartition & surfaces des espaces
Tableau des divisibilités
| Type | Étage | Surface | Loyer (€/m²/an HT HC) |
Charges (€/m²/an HT HC) |
|---|---|---|---|---|
| Bureaux | Sous-Sol | 136 m² | 478.00 | 13.23 |
Performance énergétique du bien (DPE)


Informations non contractuelles
Localisation & accès
Transports en commun à proximité
Paris-St-Lazare (Gare SNCF)
Gare Saint-Lazare (TER)
Gare Saint-Lazare (J, L)
20
93
66
95
30
45
Adresses
approximatives
Adresses
précises
Nos nouveaux biens qui pourraient vous intéresser
Bureaux - 1 114m² Divisibles à partir de 155 m²
PARIS (75002)
PARIS (75002)
Prix sur demande
Disponibilité : 31 juillet 2026
Surface : divisibles à partir de 155 m²
Les entrepreneurs ayant consulté cette offre ont aussi consulté celles ci
Bureaux - 1 114m² Divisibles à partir de 155 m²
PARIS (75002)
PARIS (75002)
Prix sur demande
Disponibilité : 31 juillet 2026
Surface : divisibles à partir de 155 m²