Retour
Bureaux - 3 157.60m² à Acheter
. Bâtiment certifié BREEAM Very Good
. Commerce indépendant donnant sur la rue Casimir Périer
. Panneaux photovoltaïques en toiture
. Protections solaires type BSO
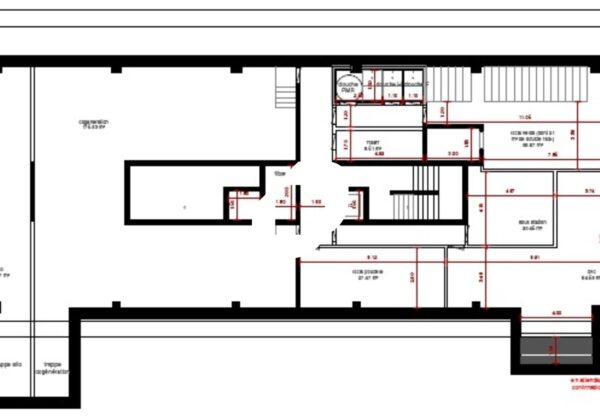
. Locaux vélo en sous-sol, douches
. Hall traversant, côté Rhône et côté jardin
. Plateaux libres de toute contrainte structurelle
. Balcons filants accessibles à tous les étages
. Rafraîchissement par groupe un groupe froid à absorption et un groupe froid à condensation
. Centrale de cogénération pour les 2 îlots en infrastructure
- IMMEUBLE PLUG'YN -
. Bâtiment certifié BREEAM Very Good
. Rafraîchissement par dalle active et ventilo convecteurs
. Protections solaires type BSO
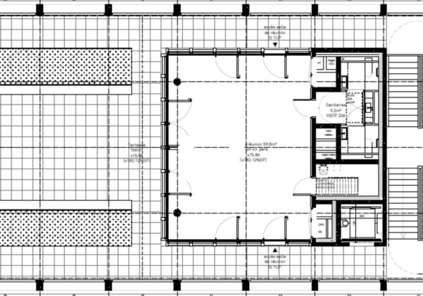
. Terrasse plantée et cour jardinée accessible
. Locaux vélo en rez-de-chaussée
. Commerce indépendant donnant sur la Place du marché gare
Bureaux - 3 157.60m² à Acheter
36 RUE CASIMIR PERIER / 42 QUAI PERRACHE LYON (69002)
DESCRIPTION
Immprove vous propose deux immeubles modernes situés au pied du futur pont des Girondins. Les deux bâtiment PYLOTE et PLUG'YN offrent plusieurs surfaces de bureaux avec en RDC du commerce. Les bâtiments bénéficient d’un ERP 5ème catégorie, type W à tous les étages et d’un ERP 5ème catégorie, type N au rez-de-chaussée pour le commerce.
En savoir plus
- IMMEUBLE PYLOTE-. Bâtiment certifié BREEAM Very Good
. Commerce indépendant donnant sur la rue Casimir Périer
. Panneaux photovoltaïques en toiture
. Protections solaires type BSO
. Locaux vélo en sous-sol, douches
. Hall traversant, côté Rhône et côté jardin
. Plateaux libres de toute contrainte structurelle
. Balcons filants accessibles à tous les étages
. Rafraîchissement par groupe un groupe froid à absorption et un groupe froid à condensation
. Centrale de cogénération pour les 2 îlots en infrastructure
- IMMEUBLE PLUG'YN -
. Bâtiment certifié BREEAM Very Good
. Rafraîchissement par dalle active et ventilo convecteurs
. Protections solaires type BSO
. Terrasse plantée et cour jardinée accessible
. Locaux vélo en rez-de-chaussée
. Commerce indépendant donnant sur la Place du marché gare
Consommations énergétiques


Informations non contractuelles
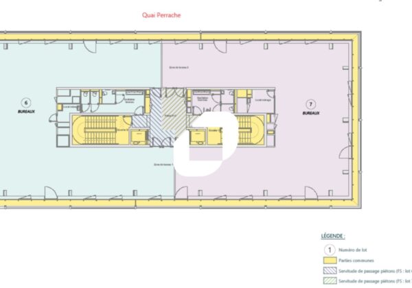
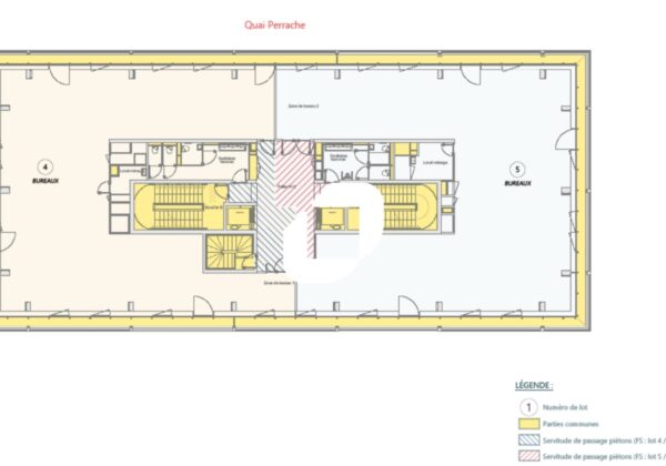
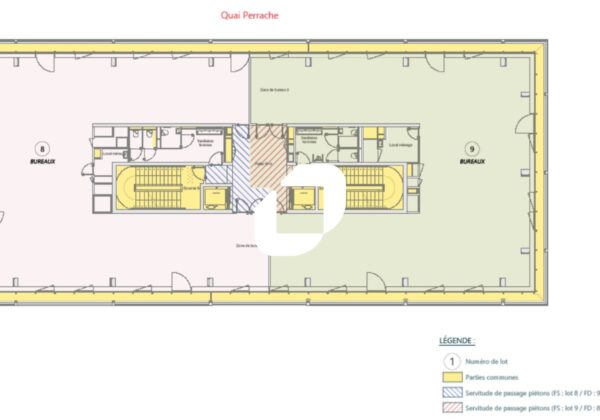
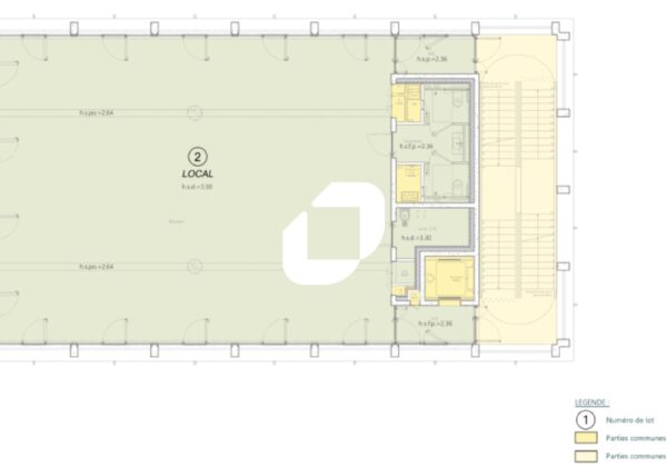
Tableau des divisibilités
| Type | Étage | Surface | Prix achat (€/m² HT HC) |
Charges (achat) (€/m² HT HC) |
|---|---|---|---|---|
| Locaux Commerciaux | RDC | 162 m² | 3 900.00 | Prix sur demande |
| Bureaux | R + 1 | 244 m² | 4 200.00 | Prix sur demande |
| Bureaux | R + 2 | 244 m² | 4 500.00 | Prix sur demande |
| Locaux Commerciaux | RDC | 156 m² | 3 900.00 | Prix sur demande |
| Bureaux | R + 1 | 302 m² | 4 800.00 | Prix sur demande |
| Bureaux | R + 1 | 280 m² | 4 700.00 | Prix sur demande |
| Bureaux | R + 2 | 303 m² | 4 900.00 | Prix sur demande |
| Bureaux | R + 2 | 280 m² | 4 900.00 | Prix sur demande |
| Bureaux | 3ème étage | 300 m² | 5 000.00 | Prix sur demande |
| Bureaux | 3ème étage | 293 m² | 5 000.00 | Prix sur demande |
| Bureaux | 4ème étage | 301 m² | 5 000.00 | Prix sur demande |
| Bureaux | 4ème étage | 294 m² | 5 000.00 | Prix sur demande |
Caractéristiques
- Surface 3 157.60 m²
- Etat des locaux Neuf
Adresses
approximatives
Adresses
précises
Nos nouveaux biens qui pourraient vous intéresser
Les entrepreneurs ayant consulté cette offre ont aussi consulté celles ci
Les services Immprove
Une gamme complète de services qui facilitent vos démarches et destinée à satisfaire vos attentes