Retour
Disponibilité Immédiate
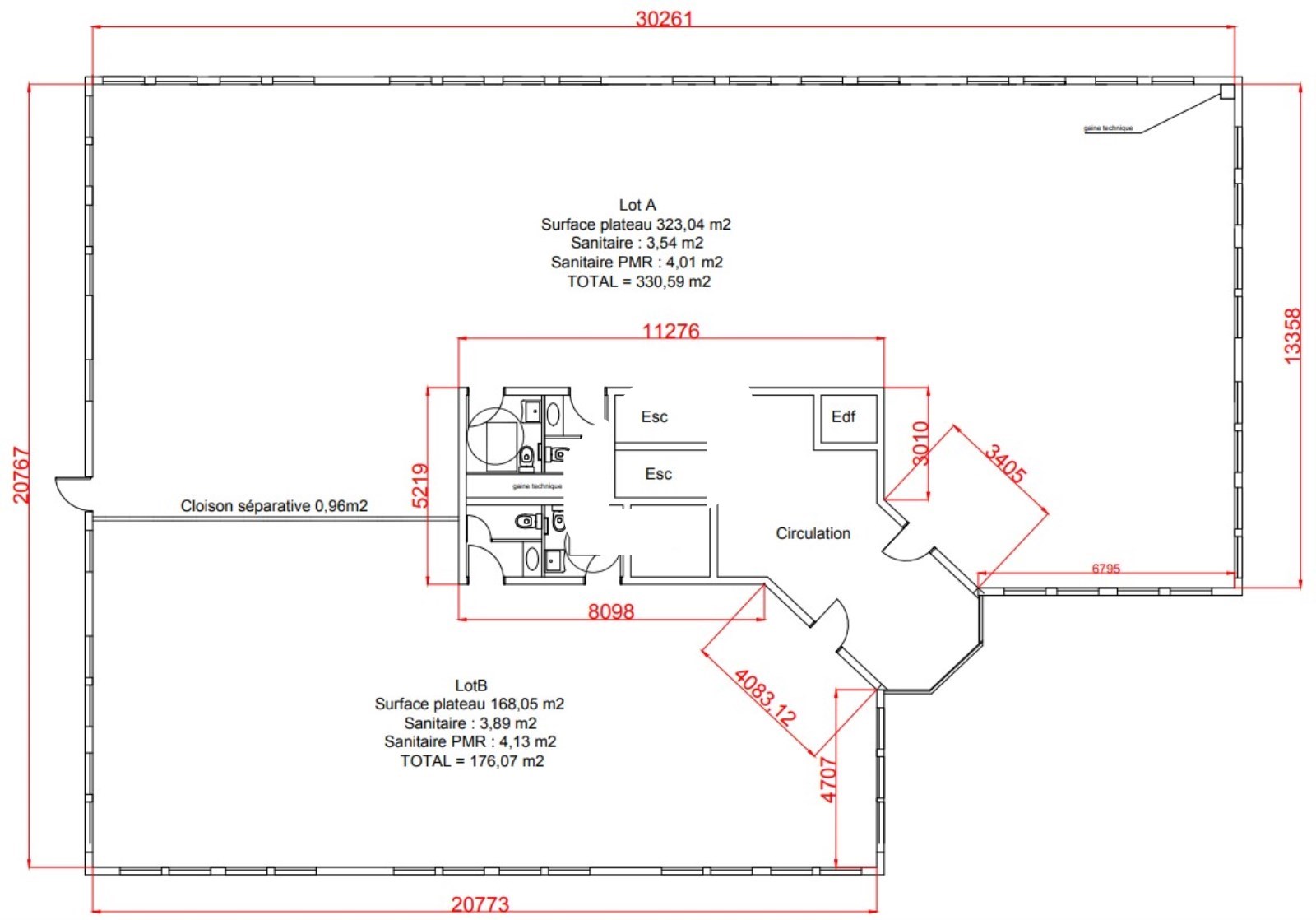
À Acheter ou à Louer Bureaux 508 m² divisibles à partir de 177 m² LE SAINT NICOLAS 31 PLACE JULES GRANDCLEMENT VILLEURBANNE (69100)
Ajouter au comparateur
Vous souhaitez faciliter votre recherche ?
Créez un compte
Présentation du bien
Immprove vous propose à la vente, une opportunité exceptionnelle dans le quartier de Grandclément à Villeurbanne. Imaginez votre entreprise dans un espace de 508m², niché au cœur d'un environnement paisible.
Surface totale
Nature
Divisibilité
Etat des locaux
508 m²
Bureaux
Oui à partir de 177 m²
Rénové
Prix & Conditions
Loyer :
170 € /m²/an (HT/HC)
2 507 € /mois (HT/HC)
30 090 € /an (HT/HC)
Divisibles à partir de 177 m²
Vente :
1 219 200 € (HD)
2 400.00 € /m² (HD)
Divisibles à partir de 177 m²
Impôt foncier :
10848.00
Dépôt de garantie :
3 mois de loyer HT HC
Prestations & équipements du bien
Le bâtiment
Immeuble ancien
Parties communes de bon standing
Les espaces de travail
Rénové
Le confort au quotidien
Jardin paysager
Les accès
Double accès
Sécurité du site
Contrôle d'accès
Accessibilité
Ascenseur
Répartition & surfaces des espaces
Tableau des divisibilités
| Type | Étage | Surface | Loyer (€/m²/an HT HC) |
Charges (€/m²/an HT HC) |
Prix achat (€/m² HT HC) |
Charges (achat) (€/m² HT HC) |
|---|---|---|---|---|---|---|
| Parkings | 1 200.00 | Prix sur demande | 12 000.00 | Prix sur demande | ||
| Bureaux | RDC | 508 m² | 170.00 | Prix sur demande | 2 400.00 | Prix sur demande |
Performance énergétique du bien (DPE)


Informations non contractuelles
Localisation & accès
Transports en commun à proximité
Gare de Villeurbanne
C3
C26
C11
Adresses
approximatives
Adresses
précises
Nos nouveaux biens qui pourraient vous intéresser
Les entrepreneurs ayant consulté cette offre ont aussi consulté celles ci
Bureaux - 168m²
SAINTE FOY LES LYON (69110)
SAINTE FOY LES LYON (69110)
Prix sur demande
Disponibilité : Immédiate
Surface : 168 m²
Bureaux - 380m²
VIGNEUX DE BRETAGNE (44360)
VIGNEUX DE BRETAGNE (44360)
Prix sur demande
Disponibilité : A convenir
Surface : 380 m²
Bureaux - 295m²
BOULOGNE BILLANCOURT (92100)
BOULOGNE BILLANCOURT (92100)
Prix sur demande
Disponibilité : Immédiate
Surface : 295 m²