Retour
Bureaux - 383.34m² à Acheter
. Parties communes de qualité
. Contrôle d'accès
. Gardienne
. Digicode
. Visiophone
. Climatisation réversible
. Fibre optique . Accueil
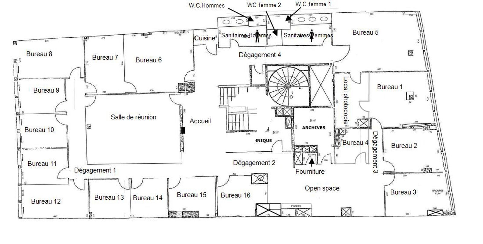
. Espace ouvert
. Bureaux cloisonnés
. Salle de réunion
. Local technique
. Locaux traversants
. Décloisonnement possible
. Locaux rationnels et modulables
. Archives
. Parquet
. Cloisonnement amovible
. Câblage informatique et téléphonique
. Chauffage central
. Cuisine
Bureaux - 383.34m² à Acheter
PARIS (75014)
DESCRIPTION
À proximité du métro " Porte d'Orléans" (ligne 4), au sein d'un immeuble mixte récent de très bon standing, IMMPROVE vous propose à la vente une surface de bureaux développant 383 m² de bureaux environ au 1er étage. Les locaux donnant sue rue et cour bénéficient d'une climatisation réversible. Idéal pour toute activité tertiaire, de communication, avocat, …
En savoir plus
. Immeuble récent. Parties communes de qualité
. Contrôle d'accès
. Gardienne
. Digicode
. Visiophone
. Climatisation réversible
. Fibre optique . Accueil
. Espace ouvert
. Bureaux cloisonnés
. Salle de réunion
. Local technique
. Locaux traversants
. Décloisonnement possible
. Locaux rationnels et modulables
. Archives
. Parquet
. Cloisonnement amovible
. Câblage informatique et téléphonique
. Chauffage central
. Cuisine
Consommations énergétiques


Informations non contractuelles
Tableau des divisibilités
| Type | Étage | Surface | Prix achat (€/m² HT HC) |
Charges (achat) (€/m² HT HC) |
|---|---|---|---|---|
| Bureaux | 1er étage | 383 m² | 8 491.16 | 50.35 |
Caractéristiques
. 1 box au 1er sous-sol : 50 000€ NV
. 1 box au 2eme sous-sol : 40 000€ NV
. 1 box au 2eme sous-sol : 50 000€ NV
. 1 très grand box de 7,30m de long : 60 000€ NV
- Surface 383.34 m²
- Etat des locaux Bon état
- Gardien oui
- Digicode oui
Adresses
approximatives
Adresses
précises
Nos nouveaux biens qui pourraient vous intéresser
Les entrepreneurs ayant consulté cette offre ont aussi consulté celles ci
Les services Immprove
Une gamme complète de services qui facilitent vos démarches et destinée à satisfaire vos attentes