Retour
Disponibilité Immédiate
À Acheter Bureaux 814.80 m² divisibles à partir de 84 m² LE SWING RUE GEORGES HAUSSMANN GUYANCOURT (78280)
Ajouter au comparateur
Vous souhaitez faciliter votre recherche ?
Créez un compte
Présentation du bien
Dans la ZAC de Villaroy à Guyancourt, au cœur de St Quentin en Yvelines, IMMPROVE vous propose des plateaux de bureaux à la vente dans un immeuble neuf certifié RT 2012 et Erpéable. Idéalement situé à proximité de la futur station de Métro Ligne 18 (2030). Accès routier A86. Gare de St Quentin en Yvelines lignes N et U et RER C.
Surface totale
Nature
Divisibilité
Etat des locaux
814.80 m²
Bureaux
Oui à partir de 84 m²
Neuf
Prix & Conditions
Vente :
1 850.00 € (HD)
1 850.00 € /m² (HD)
Divisibles à partir de 84 m²
Impôt foncier :
22.00
Taxe bureaux :
5.7
Conditions vente :
Loi Carrez et affectation juridique en cours de détermination
Frais de notaire réduit
Frais de notaire réduit
Prestations & équipements du bien
Le bâtiment
Immeuble de bureaux neuf
Les espaces de travail
Locaux neufs
Plateaux traversants et lumineux
Luminaires pavés LED et faux plafonds
Le confort au quotidien
Climatisation réversible
Les accès
Accès PMR
Sécurité du site
Accès sécurisés
Accessibilité
Ascenseur PMR
Prestations spécifiques
Immeuble certifié RT 2012
Extérieur
Nombreux parkings extérieurs
Autres
Arrivée et évacuation d'eau en attente par lot
Sanitaires Hommes et Femmes en parties communes avec sanitaires PMR
Un compteur et un tableau par lot
A proximité de tous commerces et services
Loi Carrez et affectation juridique en cours de détermination
Frais de notaire réduit
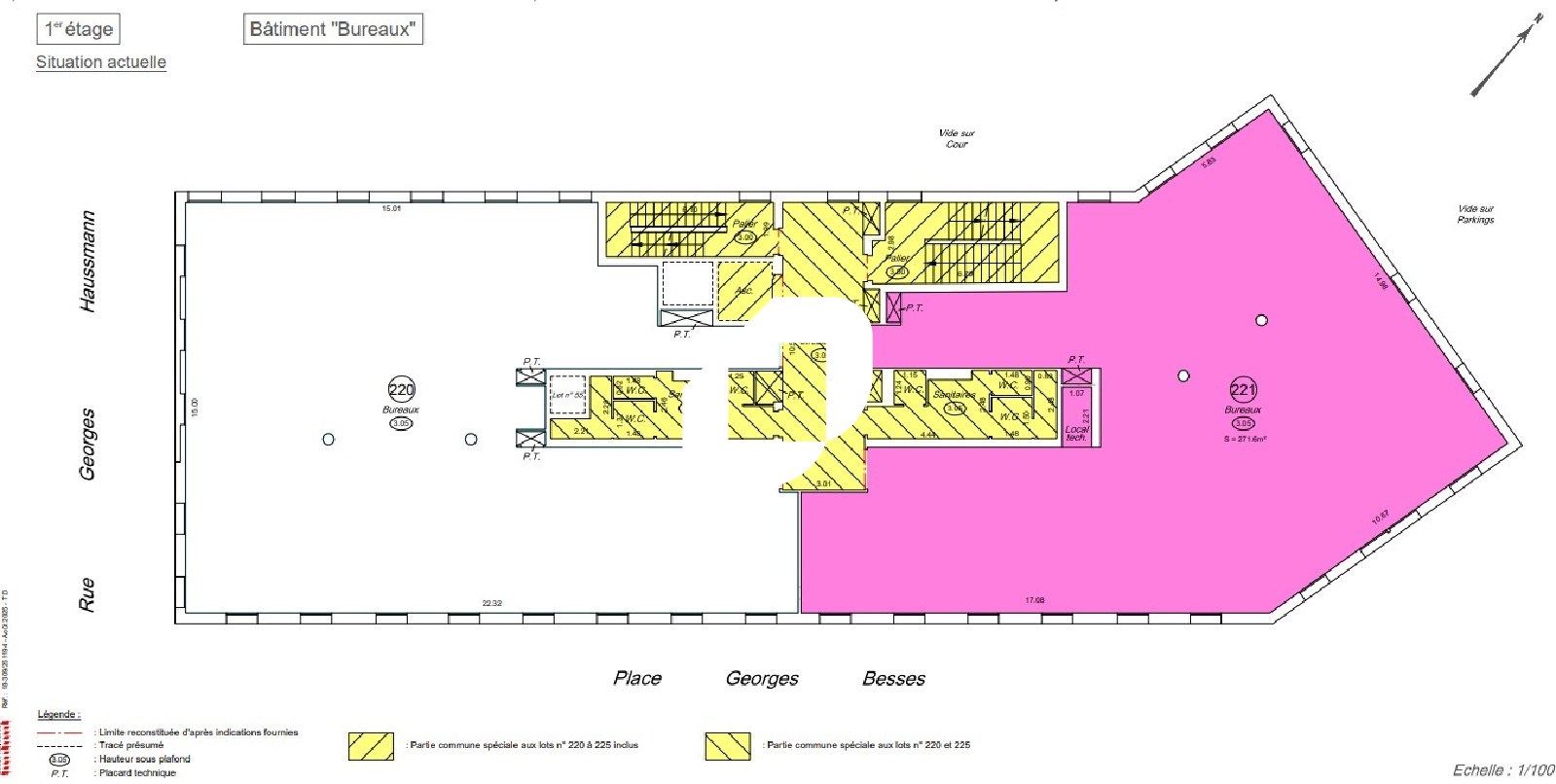
Répartition & surfaces des espaces
Tableau des divisibilités
| Type | Étage | Surface | Prix achat (€/m² HT HC) |
Charges (achat) (€/m² HT HC) |
|---|---|---|---|---|
| Parkings | 3 500.00 | Prix sur demande | ||
| Bureaux | 1er étage | 272 m² | 1 850.00 | 26.00 |
| Bureaux | 2ème étage | 84 m² | 1 990.00 | 26.00 |
| Bureaux | 2ème étage | 188 m² | 1 950.00 | 26.00 |
| Bureaux | 3ème étage | 91 m² | 1 990.00 | 26.00 |
| Bureaux | 3ème étage | 181 m² | 1 950.00 | 26.00 |
Performance énergétique du bien (DPE)


Informations non contractuelles
Localisation & accès
Transports en commun à proximité
SNCF gare de Saint Quentin en Yvelines
439
440
465
468
Accès routier
Autoroutes A12, A13 et A86
Nationale N12
Adresses
approximatives
Adresses
précises
Nos nouveaux biens qui pourraient vous intéresser
Bureaux - 1 512.30m² Divisibles à partir de 307.20 m²
GUYANCOURT (78280)
GUYANCOURT (78280)
791 700.00€ HT HC
Disponibilité : Immédiate
Surface : divisibles à partir de 307.20 m²
Bureaux - 655m² Divisibles à partir de 327.50 m²
GUYANCOURT (78280)
GUYANCOURT (78280)
941 432.16€ HT HC
Disponibilité : Immédiate
Surface : divisibles à partir de 327.50 m²
Bureaux - 375.10m² Divisibles à partir de 168.60 m²
GUYANCOURT (78280)
GUYANCOURT (78280)
289 800.00€ HT HC
Disponibilité : Immédiate
Surface : divisibles à partir de 168.60 m²
Les entrepreneurs ayant consulté cette offre ont aussi consulté celles ci
Bureaux - 697.70m²
NOISY LE GRAND (93160)
NOISY LE GRAND (93160)
750 322.08€ HT HC
Disponibilité : Immédiate
Surface : 697.70 m²
Bureaux et Activités - 1 002m²
SAINT PATHUS (77178)
SAINT PATHUS (77178)
1 549 993.80€ HT HC
Disponibilité : Immédiate
Surface : 1 002 m²
Bureaux - 113.06m² Divisibles à partir de 37.51 m²
TRAPPES (78190)
TRAPPES (78190)
121 600.00€ HT HC
Disponibilité : Immédiate
Surface : divisibles à partir de 37.51 m²