Retour
Disponibilité Immédiate
À Acheter Bureaux 97 m² VIRY CHATILLON (91170)
Ajouter au comparateur
Vous souhaitez faciliter votre recherche ?
Créez un compte
Présentation du bien
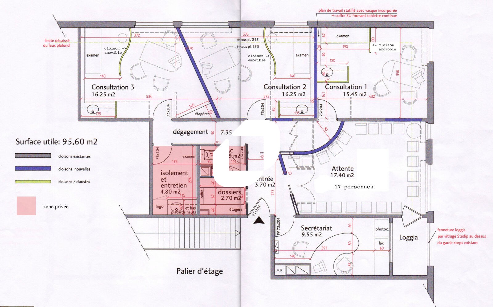
À vendre - Viry-Châtillon - Ancien cabinet médical de 97 m². IMMPROVE vous propose un ancien cabinet médical de 97 m², situé dans une copropriété calme à Viry-Châtillon.
Le local est organisé en salle d’attente, trois bureaux cloisonnés, ainsi que des espaces complémentaires
Surface totale
Nature
Divisibilité
Etat des locaux
97 m²
Bureaux
Non
Bon état
Prix & Conditions
Vente :
177 510.00 € (HD)
1 830.00 € /m² (HD)
Impôt foncier :
18.96
Conditions vente :
Loi Carrez et affectation juridique en cours de détermination
Prestations & équipements du bien
Les espaces de travail
Bon état
Accueil / Salle d’attente
Bureaux cloisonnés
Sanitaires privatifs
Décloisonnement possible
Archives
Faux plafonds
Câblage informatique et téléphonique
Le confort au quotidien
Climatisation réversible
Sol PVC
Climatisation réversible
Sécurité du site
Digicode
Interphone
Site clos
Accès sécurisé par badge
Accessibilité
Ascenseur
Autres
Locaux E.R.P.
Loi Carrez et affectation juridique en cours de détermination
Répartition & surfaces des espaces
Tableau des divisibilités
| Type | Étage | Surface | Prix achat (€/m² HT HC) |
Charges (achat) (€/m² HT HC) |
|---|---|---|---|---|
| Bureaux | 1er étage | 97 m² | 1 830.00 | 3.10 |
Performance énergétique du bien (DPE)


Informations non contractuelles
Localisation & accès
Transports en commun à proximité
4280
4518
4223
4524
4521
4522
4583
Accès routier
Parc du Château (T12)
A 6
N7
Adresses
approximatives
Adresses
précises
Nos nouveaux biens qui pourraient vous intéresser
Bureaux - 697.70m²
NOISY LE GRAND (93160)
NOISY LE GRAND (93160)
750 322.08€ HT HC
Disponibilité : Immédiate
Surface : 697.70 m²
Bureaux - 718m² Divisibles à partir de 230 m²
PARIS (75003)
PARIS (75003)
0.00€ HT HC
Disponibilité : Immédiate
Surface : divisibles à partir de 230 m²
Les entrepreneurs ayant consulté cette offre ont aussi consulté celles ci
Bureaux - 697.70m²
NOISY LE GRAND (93160)
NOISY LE GRAND (93160)
750 322.08€ HT HC
Disponibilité : Immédiate
Surface : 697.70 m²
Bureaux et Activités - 1 002m²
SAINT PATHUS (77178)
SAINT PATHUS (77178)
1 549 993.80€ HT HC
Disponibilité : Immédiate
Surface : 1 002 m²
Bureaux - 113.06m² Divisibles à partir de 37.51 m²
TRAPPES (78190)
TRAPPES (78190)
121 600.00€ HT HC
Disponibilité : Immédiate
Surface : divisibles à partir de 37.51 m²