Retour
Disponibilité Immédiate
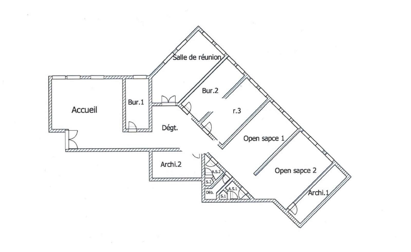
À Acheter Bureaux 225.56 m² LE VOLTA RUE JEANNE BRACONNIER MEUDON LA FORET (92360)
Ajouter au comparateur
Vous souhaitez faciliter votre recherche ?
Créez un compte
Présentation du bien
Immprove vous propose à la vente un plateau de bureaux idéalement situé à Meudon-la-Forêt, à deux pas du centre commercial Vélizy 2 et bénéficiant d’un accès rapide aux principaux axes routiers (N118, A86, N12).
Ces bureaux d’environ 225 m² offrent un environnement de travail fonctionnel et agréable.
Surface totale
Nature
Divisibilité
Etat des locaux
225.56 m²
Bureaux
Non
Bon état
Prix & Conditions
Vente :
1 950.00 € (HD)
1 950.00 € /m² (HD)
Impôt foncier :
45.58
Taxe bureaux :
21.64
Conditions vente :
Loi Carrez et affectation juridique en cours de détermination
Prestations & équipements du bien
Le bâtiment
Immeuble moderne
Les espaces de travail
Fibre optique dans l'immeuble
Crèche d'entreprise à proximité . Locaux en bon état
Accueil
Espace ouvert
Bureaux cloisonnés
Cloisonnement amovible
Décloisonnement possible
Salle de réunion
Sanitaires privatifs
Faux plafonds
Faux planchers techniques
Le confort au quotidien
Moquette
Climatisation
Les accès
Accès véhicules légers
Accès PMR
Sécurité du site
Contrôle d'accès
Gardien
Interphone
Accessibilité
3 ascenseurs larges porte 90 cm PMR
Services & espaces partagés
Restaurant inter-entreprises sur le site
Loi Carrez et affectation juridique en cours de détermination
Répartition & surfaces des espaces
Tableau des divisibilités
| Type | Étage | Surface | Prix achat (€/m² HT HC) |
Charges (achat) (€/m² HT HC) |
|---|---|---|---|---|
| Parkings | 8 000.00 | Prix sur demande | ||
| Bureaux | 2ème étage | 226 m² | 1 950.00 | 31.94 |
Performance énergétique du bien (DPE)


Informations non contractuelles
Localisation & accès
Transports en commun à proximité
Gares de Viroflay Rive Droite et Rive Gauche
T6 Meudon la Forêt
40
24
34
Accès routier
Autoroute A86/Duplex
Nationales N12 et N118
Adresses
approximatives
Adresses
précises
Nos nouveaux biens qui pourraient vous intéresser
Bureaux - 3 639m² Divisibles à partir de 578 m²
NOISY LE GRAND (93160)
NOISY LE GRAND (93160)
6 732 150.00€ HT HC
Disponibilité : Immédiate
Surface : divisibles à partir de 578 m²
Les entrepreneurs ayant consulté cette offre ont aussi consulté celles ci
Bureaux - 3 639m² Divisibles à partir de 578 m²
NOISY LE GRAND (93160)
NOISY LE GRAND (93160)
6 732 150.00€ HT HC
Disponibilité : Immédiate
Surface : divisibles à partir de 578 m²
Bureaux et Activités - 435m²
VILLIERS SUR MARNE (94350)
VILLIERS SUR MARNE (94350)
639 998.10€ HT HC
Disponibilité : Immédiate
Surface : 435 m²