Retour
À Acheter Bureaux 252 m² LE GRAND ANGLE 61-65 AVENUE GABRIEL PERI ASNIERES SUR SEINE (92600)
Ajouter au comparateur
Vous souhaitez faciliter votre recherche ?
Créez un compte
Présentation du bien
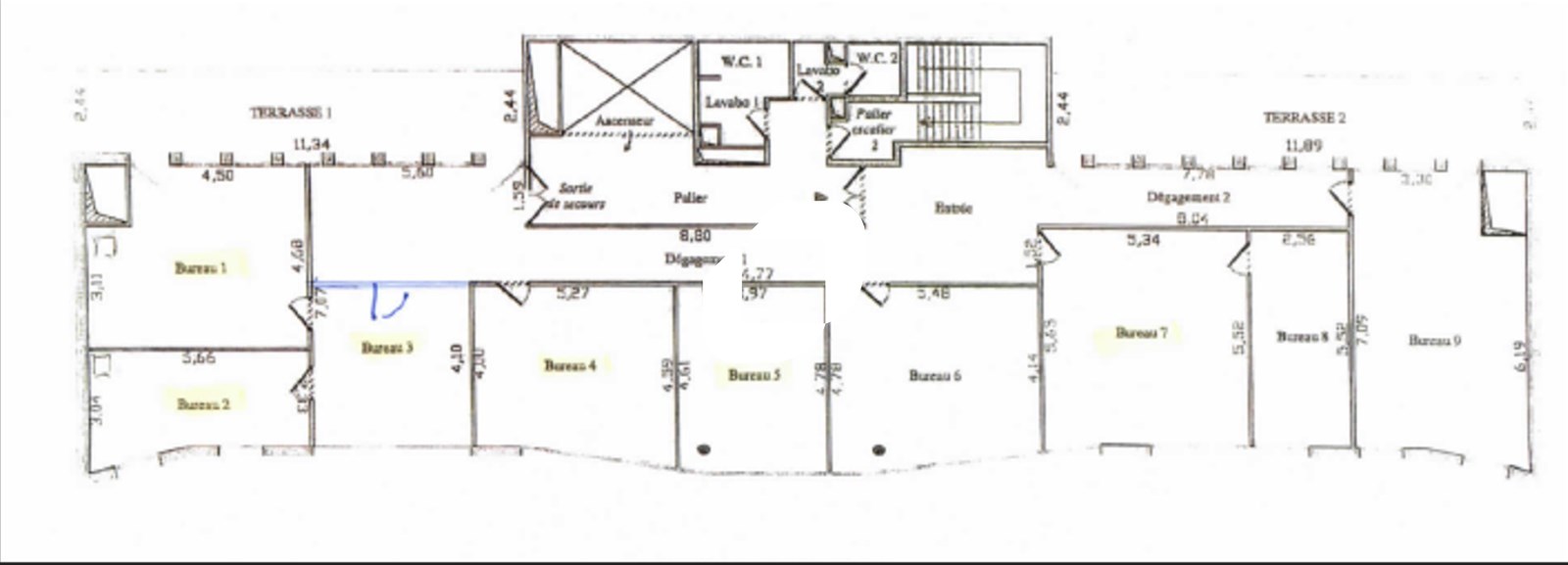
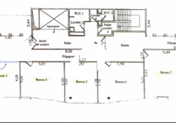
IMMPROVE vous propose des bureaux de 252 m² à la vente au dernier étage d'un immeuble situé en face du métro Gabriel Péri. Ce local est un actif immobilier de bon standing qui propose des surfaces de bureaux rationnelles et lumineuses. De plus, 6 parkings inclus dans le prix sont disponibles au deuxième sous-sol.
Surface totale
Nature
Divisibilité
Etat des locaux
252 m²
Bureaux
Non
Bon état
Prix & Conditions
Vente :
1 000 000.00 € (HD)
3 849.21 € /m² (HD)
Impôt foncier :
6300.00
Conditions vente :
Loi Carrez et affectation juridique en cours de détermination
Les parkings sont compris dans le prix de vente
Les parkings sont compris dans le prix de vente
Prestations & équipements du bien
Les espaces de travail
Immeuble en très bon état
Fibre optique
Bureaux cloisonnés
Le confort au quotidien
Climatisation réversible
Les accès
Accès PMR
Accessibilité
Batterie d'ascenseurs
Extérieur
Deux terrasses de 30 m² chacune
Parkings intérieurs
Autres
Contrôle accès intérieur
Environnement tertiaire
Accès en voiture facile
En face du métro Gabriel Péri
Immeuble sécurisé
Bureaux fonctionnels
Dernier étage
Doubles sanitaires en parties communes
Loi Carrez et affectation juridique en cours de détermination
Les parkings sont compris dans le prix de vente
Répartition & surfaces des espaces
Tableau des divisibilités
| Type | Étage | Surface | Prix achat (€/m² HT HC) |
Charges (achat) (€/m² HT HC) |
|---|---|---|---|---|
| Parkings | Prix sur demande | Prix sur demande | ||
| Bureaux | 7ème étage | 252 m² | 3 849.21 | Prix sur demande |
Performance énergétique du bien (DPE)


Informations non contractuelles
Localisation & accès
Transports en commun à proximité
177
175
340
54
N15
N51
140
235
Adresses
approximatives
Adresses
précises
Nos nouveaux biens qui pourraient vous intéresser
Bureaux - 299m²
ASNIERES SUR SEINE (92600)
ASNIERES SUR SEINE (92600)
582 990.20€ HT HC
Disponibilité : Selon les lots
Surface : 299 m²
Bureaux - 482.48m² Divisibles à partir de 241 m²
ASNIERES SUR SEINE (92600)
ASNIERES SUR SEINE (92600)
878 249.79€ HT HC
Disponibilité : Immédiate
Surface : divisibles à partir de 241 m²
Bureaux - 265.50m²
ASNIERES SUR SEINE (92600)
ASNIERES SUR SEINE (92600)
884 450.00€ HT HC
Disponibilité : Immédiate
Surface : 265.50 m²
Les entrepreneurs ayant consulté cette offre ont aussi consulté celles ci
Bureaux - 3 639m² Divisibles à partir de 578 m²
NOISY LE GRAND (93160)
NOISY LE GRAND (93160)
6 732 150.00€ HT HC
Disponibilité : Immédiate
Surface : divisibles à partir de 578 m²
Bureaux et Activités - 435m²
VILLIERS SUR MARNE (94350)
VILLIERS SUR MARNE (94350)
639 998.10€ HT HC
Disponibilité : Immédiate
Surface : 435 m²