Retour
Disponibilité Immédiate
À Acheter Bureaux 1 240 m² divisibles à partir de 210 m² 111 RUE MOLIERE IVRY SUR SEINE (94200)
Ajouter au comparateur
Vous souhaitez faciliter votre recherche ?
Créez un compte
Présentation du bien
Idéalement situé à Ivry, IMMPROVE vous propose deux plateaux de bureaux à vendre.
Modulables et confortables, ces locaux s'adapteront parfaitement à votre activité.
Surface totale
Nature
Divisibilité
Etat des locaux
1 240 m²
Bureaux
Oui à partir de 210 m²
Bon état
Prix & Conditions
Vente :
4 100 000.00 € (HD)
3 368.42 € /m² (HD)
Divisibles à partir de 210 m²
Impôt foncier :
19.20
Prestations & équipements du bien
Le bâtiment
Immeuble restructuré
Parties communes de qualité
Les espaces de travail
Fibre optique
Accueil
Espace ouvert
Bureaux cloisonnés
Salle de réunion
Espace détente
Sanitaires privatifs
Décloisonnement possible
Locaux rationnels et modulables
Le confort au quotidien
belle hauteur sous plafond
Locaux traversants
Double exposition
Terrasse privative
Sécurité du site
Accès sécurisé
Prestations spécifiques
Chauffage CPU (lot n°1)
Chauffage individuel (lot n°2)
Charge au sol : 500 kgs / m²
Autres
Béton ciré
Possibilité de normes ERP
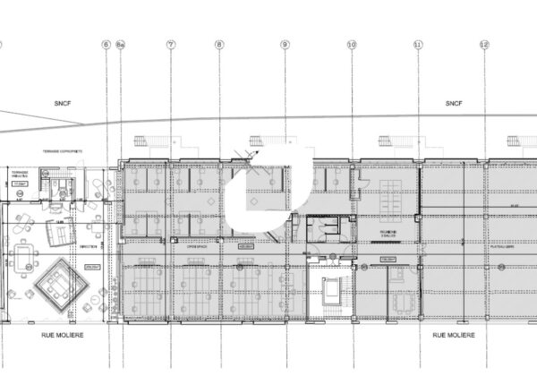
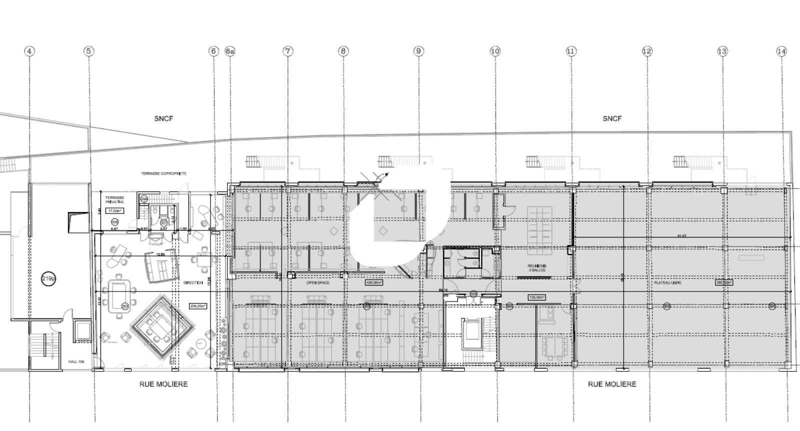
Répartition & surfaces des espaces
Tableau des divisibilités
| Type | Étage | Surface | Prix achat (€/m² HT HC) |
Charges (achat) (€/m² HT HC) |
|---|---|---|---|---|
| Parkings | Prix sur demande | Prix sur demande | ||
| Cave | 1er Sous-Sol | 80 m² | Prix sur demande | Prix sur demande |
| Bureaux | 1er étage | 210 m² | 4 285.71 | 31.00 |
| Bureaux | 1er étage | 950 m² | 3 368.42 | 31.00 |
Performance énergétique du bien (DPE)


Informations non contractuelles
Localisation & accès
Transports en commun à proximité
SNCF gare de Ivry-sur-Seine (TRAIN)
SNCF gare de Ivry-sur-Seine
325
125
25
Accès routier
Quai d’Ivry à 9 minutes en voiture
D19
Boulevard Périphérique: 10 minutes de la Sortie Quai d’Ivry
A4 / A6
Adresses
approximatives
Adresses
précises
Nos nouveaux biens qui pourraient vous intéresser
Bureaux - 247m²
IVRY SUR SEINE (94200)
IVRY SUR SEINE (94200)
1 200 000.10€ HT HC
Disponibilité : Immédiate
Surface : 247 m²
Bureaux - 226m²
IVRY SUR SEINE (94200)
IVRY SUR SEINE (94200)
1 299 999.46€ HT HC
Disponibilité : Immédiate
Surface : 226 m²
Les entrepreneurs ayant consulté cette offre ont aussi consulté celles ci
Bureaux - 3 639m² Divisibles à partir de 578 m²
NOISY LE GRAND (93160)
NOISY LE GRAND (93160)
6 732 150.00€ HT HC
Disponibilité : Immédiate
Surface : divisibles à partir de 578 m²
Bureaux et Activités - 435m²
VILLIERS SUR MARNE (94350)
VILLIERS SUR MARNE (94350)
639 998.10€ HT HC
Disponibilité : Immédiate
Surface : 435 m²