Retour
N19
Disponibilité 2T 2026
À Acheter Bureaux 3 272.80 m² SUCY EN BRIE (94370)
Ajouter au comparateur
Vous souhaitez faciliter votre recherche ?
Créez un compte
Présentation du bien
CO EXCLUSIVITE- Située dans la zone d'activité "Les Portes de SUCY" à Sucy-en-Brie, à proximité immédiate du RER A station "Sucy-Bonneuil", Immprove vous offre une opportunité d'investissement dans un immeuble neuf en R+4. Nous mettons en vente des surfaces de bureaux d'une superficie totale de 3 272 m² non divisibles.
Surface totale
Nature
Divisibilité
Etat des locaux
3 272.80 m²
Bureaux
Non
Neuf
Prix & Conditions
Vente :
12 273 000.00 € (HD)
3 750.00 € /m² (HD)
Conditions vente :
Loi Carrez et affectation juridique en cours de détermination
. Parkings extérieurs : 10.000 € / Unité / HT
. Parkings vélos : 1.850 € / m² / HT
. Locaux poubelles couverts à 1850€ HT/m²
. Parkings extérieurs : 10.000 € / Unité / HT
. Parkings vélos : 1.850 € / m² / HT
. Locaux poubelles couverts à 1850€ HT/m²
Prestations & équipements du bien
Le bâtiment
Façade en bardage biosourcé
Les espaces de travail
Fibre optique Locaux aménagés en :
Espace ouvert
Faux plafonds
Plinthes périphériques pour le câblage informatique
Sanitaires privatifs
Le confort au quotidien
Moquette
Climatisation réversible
Les accès
Accès véhicules légers
Accès PMR
Sécurité du site
Contrôle d'accès
Accès sécurisé par badge
Sas d'entrée
Visiophone
Accessibilité
Ascenseur PMR
Extérieur
Parkings vélos : 51 m²
Loi Carrez et affectation juridique en cours de détermination
. Parkings extérieurs : 10.000 € / Unité / HT
. Parkings vélos : 1.850 € / m² / HT
. Locaux poubelles couverts à 1850€ HT/m²
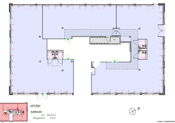
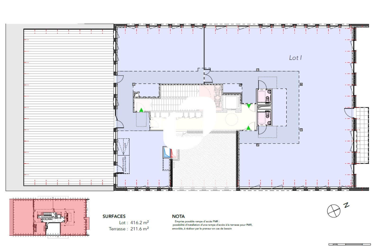
Répartition & surfaces des espaces
Tableau des divisibilités
| Type | Étage | Surface | Prix achat (€/m² HT HC) |
Charges (achat) (€/m² HT HC) |
|---|---|---|---|---|
| Parkings | Prix sur demande | Prix sur demande | ||
| Bureaux | Rez-de-Chaussée | 614 m² | 3 750.00 | 30.00 |
| Bureaux | 1er étage | 724 m² | 3 750.00 | 30.00 |
| Bureaux | 2ème étage | 724 m² | 3 750.00 | 30.00 |
| Bureaux | 3ème étage | 725 m² | 3 750.00 | 30.00 |
| Bureaux | 4ème étage | 487 m² | 3 750.00 | 30.00 |
Performance énergétique du bien (DPE)


Informations non contractuelles
Localisation & accès
Transports en commun à proximité
104
308
393
Adresses
approximatives
Adresses
précises
Nos nouveaux biens qui pourraient vous intéresser
Bureaux - 3 639m² Divisibles à partir de 578 m²
NOISY LE GRAND (93160)
NOISY LE GRAND (93160)
6 732 150.00€ HT HC
Disponibilité : Immédiate
Surface : divisibles à partir de 578 m²
Les entrepreneurs ayant consulté cette offre ont aussi consulté celles ci
Bureaux - 3 639m² Divisibles à partir de 578 m²
NOISY LE GRAND (93160)
NOISY LE GRAND (93160)
6 732 150.00€ HT HC
Disponibilité : Immédiate
Surface : divisibles à partir de 578 m²
Bureaux et Activités - 435m²
VILLIERS SUR MARNE (94350)
VILLIERS SUR MARNE (94350)
639 998.10€ HT HC
Disponibilité : Immédiate
Surface : 435 m²