Retour
Disponibilité Immédiate
À Acheter Bureaux 533.80 m² EAUBONNE (95600)
Ajouter au comparateur
Vous souhaitez faciliter votre recherche ?
Créez un compte
Présentation du bien
Projet d’investissement !
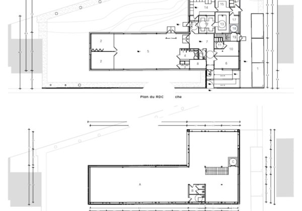
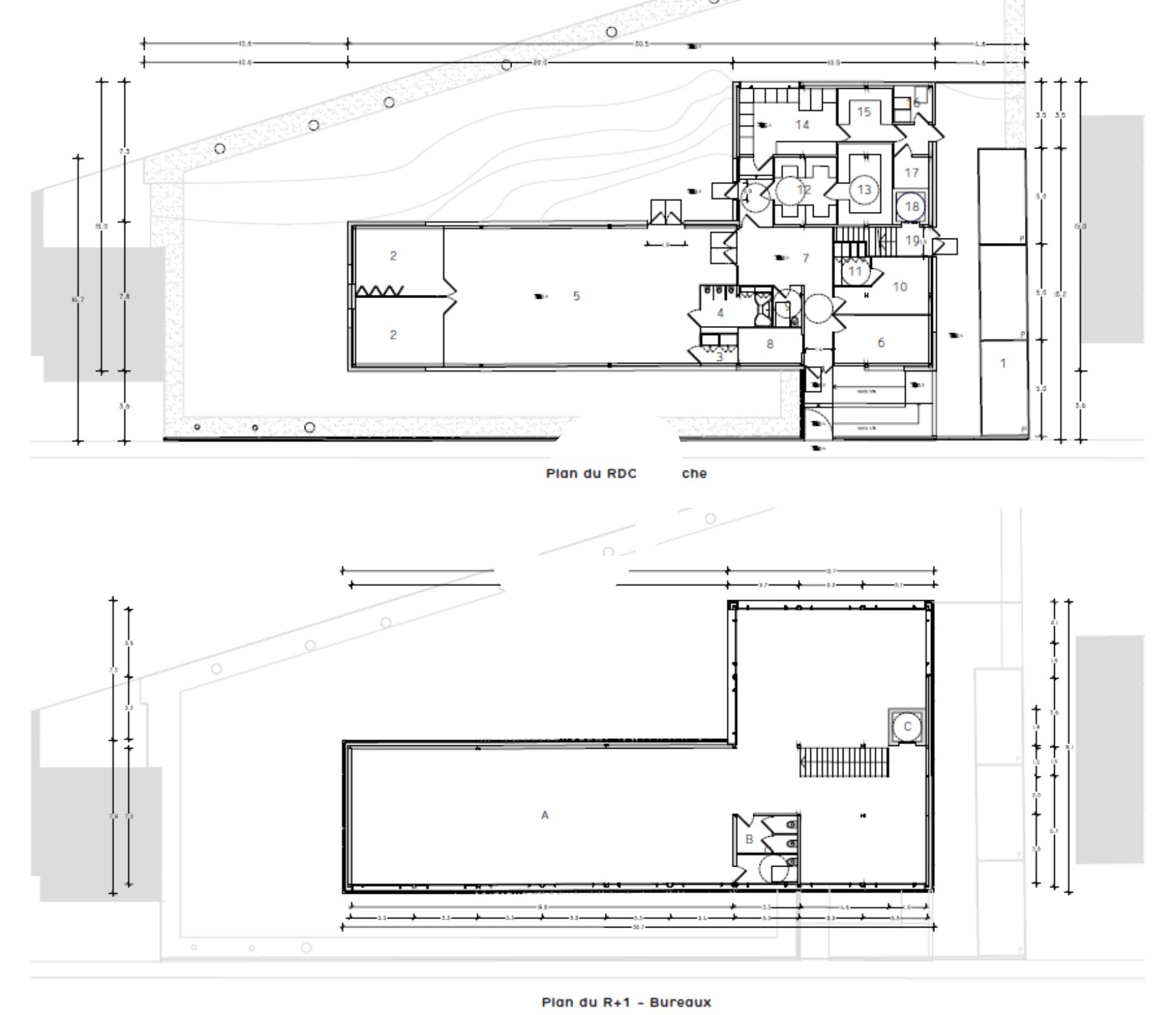
A pied à la gare d’Enghein les bains Champs de Course, IMMPROVE vous propose un bâtiment indépendant de bureaux d’une surface 532,8 m² sur un terrain cadastré de 979 m². Idéalement placé, sur 2 niveaux, il nécessite des travaux de gros œuvre.
Surface totale
Nature
Divisibilité
Etat des locaux
533.80 m²
Bureaux
Non
Ancien
Prix & Conditions
Vente :
700 000.00 € (HD)
1 313.00 € /m² (HD)
Conditions vente :
Loi Carrez et affectation juridique en cours de détermination
Prestations & équipements du bien
Le bâtiment
Immeuble ancien
Les espaces de travail
Portail d'accès . Travaux à prévoir
Brut de béton
Accueil
Espace ouvert
Bureaux cloisonnés
Salle de réunion
Espace détente
Local technique
Cuisine
Sanitaires privatifs
Les accès
Accès véhicules légers
Autres
Terrain 979 m²
Loi Carrez et affectation juridique en cours de détermination
Répartition & surfaces des espaces
Tableau des divisibilités
| Type | Étage | Surface | Prix achat (€/m² HT HC) |
Charges (achat) (€/m² HT HC) |
|---|---|---|---|---|
| Bureaux | 1er étage | 271 m² | 1 313.00 | Prix sur demande |
| Bureaux | RDC | 263 m² | 1 313.00 | Prix sur demande |
Performance énergétique du bien (DPE)


Informations non contractuelles
Localisation & accès
Transports en commun à proximité
SNCF gare de RER C - ERMONT EAUBONNE
SNCF gare de Ligne H - CHAMPS DE COURSES D'ENGHIEN
Ligne 3804 - EDOUARD VAILLANT
Accès routier
A15 et A86
Adresses
approximatives
Adresses
précises
Nos nouveaux biens qui pourraient vous intéresser
Bureaux - 3 639m² Divisibles à partir de 578 m²
NOISY LE GRAND (93160)
NOISY LE GRAND (93160)
1 069 300.00€ HT HC
Disponibilité : Immédiate
Surface : divisibles à partir de 578 m²
Les entrepreneurs ayant consulté cette offre ont aussi consulté celles ci
Bureaux - 3 639m² Divisibles à partir de 578 m²
NOISY LE GRAND (93160)
NOISY LE GRAND (93160)
1 069 300.00€ HT HC
Disponibilité : Immédiate
Surface : divisibles à partir de 578 m²
Bureaux et Activités - 435m²
VILLIERS SUR MARNE (94350)
VILLIERS SUR MARNE (94350)
639 998.10€ HT HC
Disponibilité : Immédiate
Surface : 435 m²