À Acheter Bureaux et Activités 2 156 m² MONTIGNY LE BRETONNEUX (78180)
Présentation du bien
Prix & Conditions
Les charges comprennent le gaz, l’eau, l’électricité, la sécurité (alarme et télésurveillance), assurance, frais et maintenance du site.
Prestations & équipements du bien
Bâtiment raccordé à la fibre optique . Bâtiment partiellement loué
Accueil
Espaces ouverts et bureaux cloisonnés
Salle de réunion, local technique
Cuisine
Faux plafonds, sol PVC
Prises RJ45
Accès véhicules légers et poids lourds
Porte sectionnelle de plain-pied
Alarme, digicode
Chauffage immeuble gaz
Chauffage par aérothermes eau chaude
Charge au sol : 3 T / m²
Hauteur libre : de 8,75 à 9, 5 m
Salle blanche, laboratoires, pont roulant de 2,5 T
Tarif jaune 120 Kw
45 emplacements extérieurs de parking
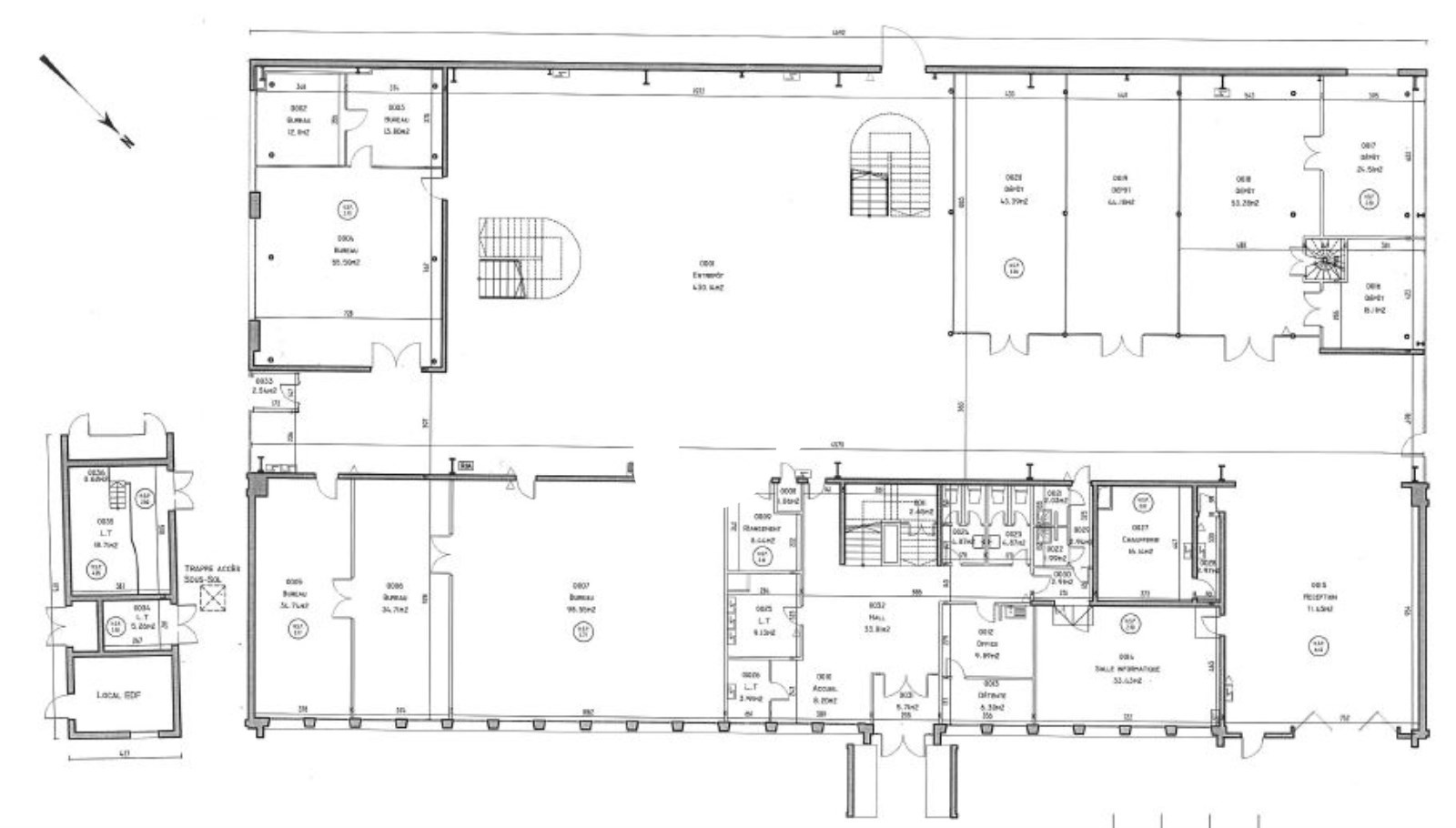
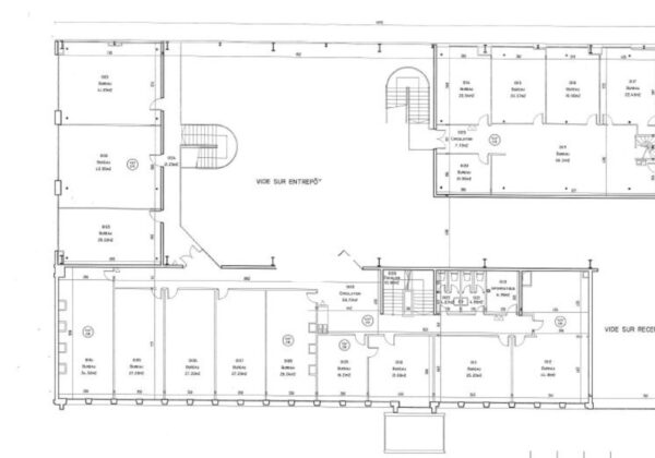
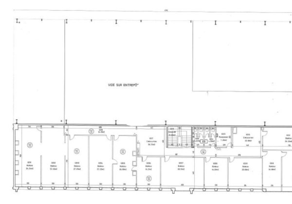
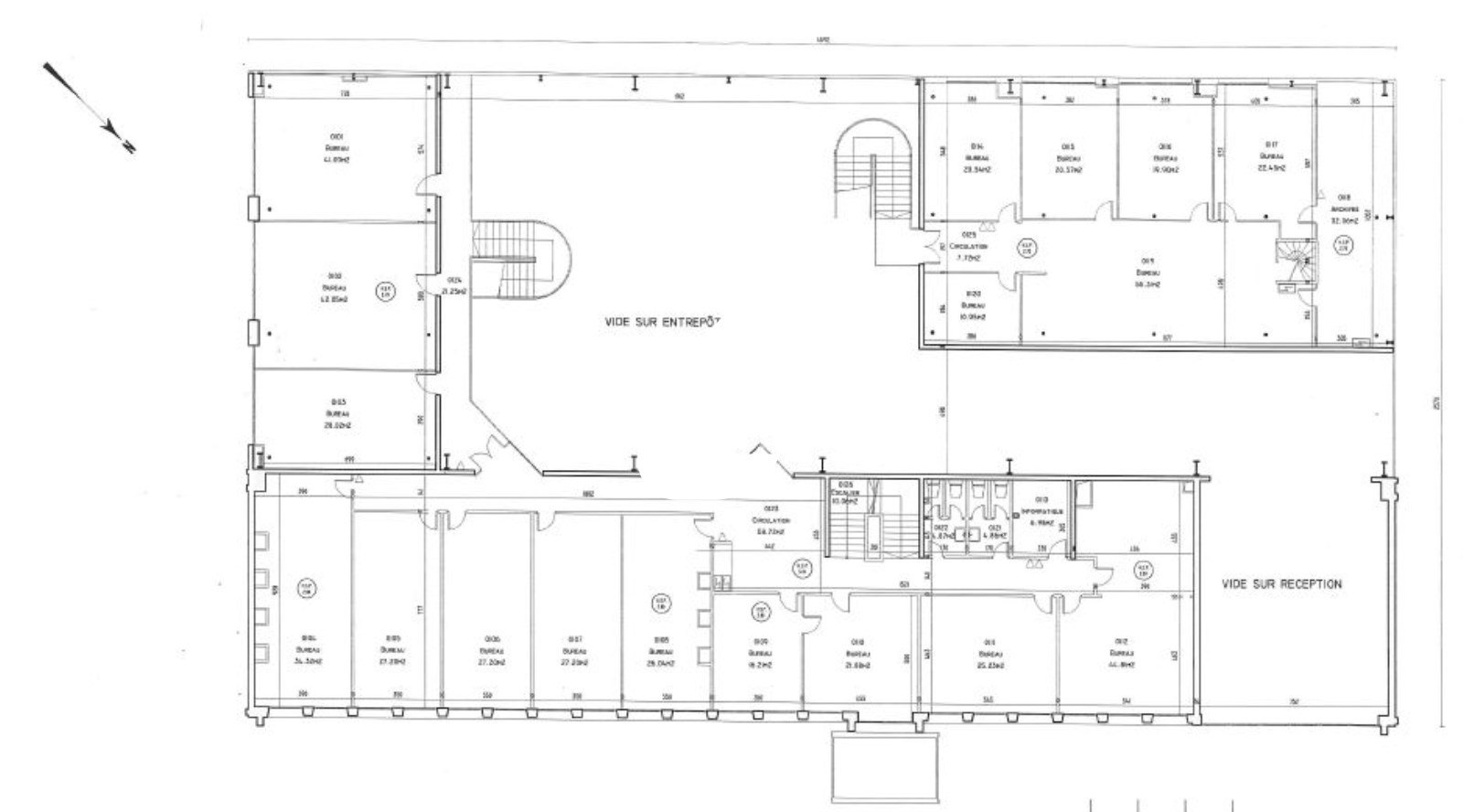
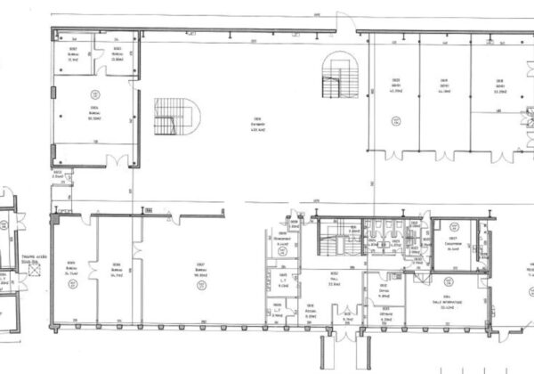
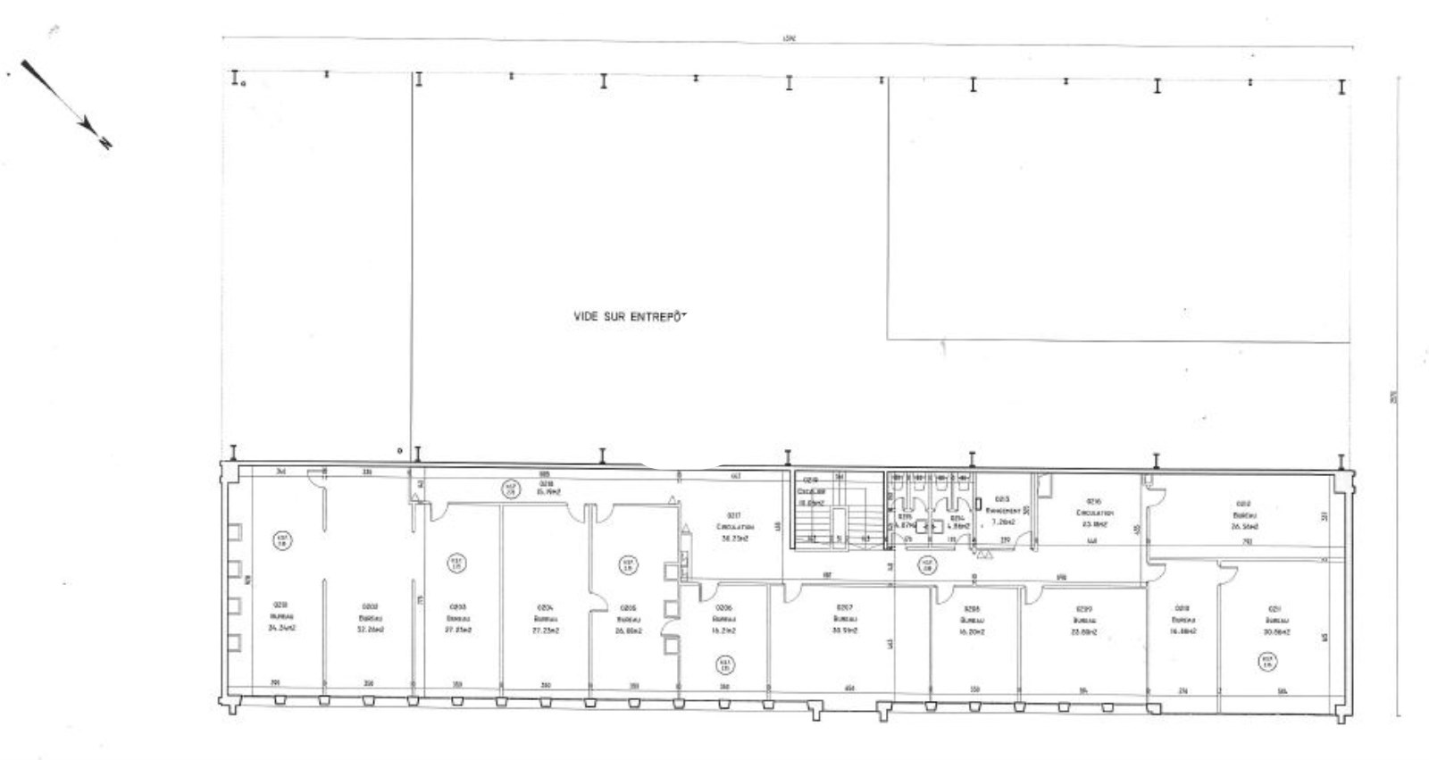
Bureaux :
Répartis sur 3 niveaux + bureaux partie entrepôt
Double sanitaires par niveau
Entrepôt :
Vide sanitaire de 120 m²
Répartition & surfaces des espaces
Tableau des divisibilités
| Type | Étage | Surface | Prix achat (€/m² HT HC) |
Charges (achat) (€/m² HT HC) |
|---|---|---|---|---|
| Parkings | Prix sur demande | Prix sur demande | ||
| Activités | Rez-de-Chaussée | 934 m² | Prix sur demande | Prix sur demande |
| Bureaux | 2ème étage | 1 222 m² | Prix sur demande | Prix sur demande |
Performance énergétique du bien (DPE)


Informations non contractuelles
Localisation & accès
Transports en commun à proximité
Gares de Saint Quentin en Yvelines et de Trappes
Accès routier
Autoroutes A12, A13 et A86
Nationale N10
Adresses
approximatives
Adresses
précises
Nos nouveaux biens qui pourraient vous intéresser
MONTIGNY LE BRETONNEUX (78180)
MONTIGNY LE BRETONNEUX (78180)
Les entrepreneurs ayant consulté cette offre ont aussi consulté celles ci
SAINT PATHUS (77178)
VOISINS LE BRETONNEUX (78960)
MORET LOING ET ORVANNE (77250)
REUIL EN BRIE (77260)