Retour
Disponibilité Immédiate
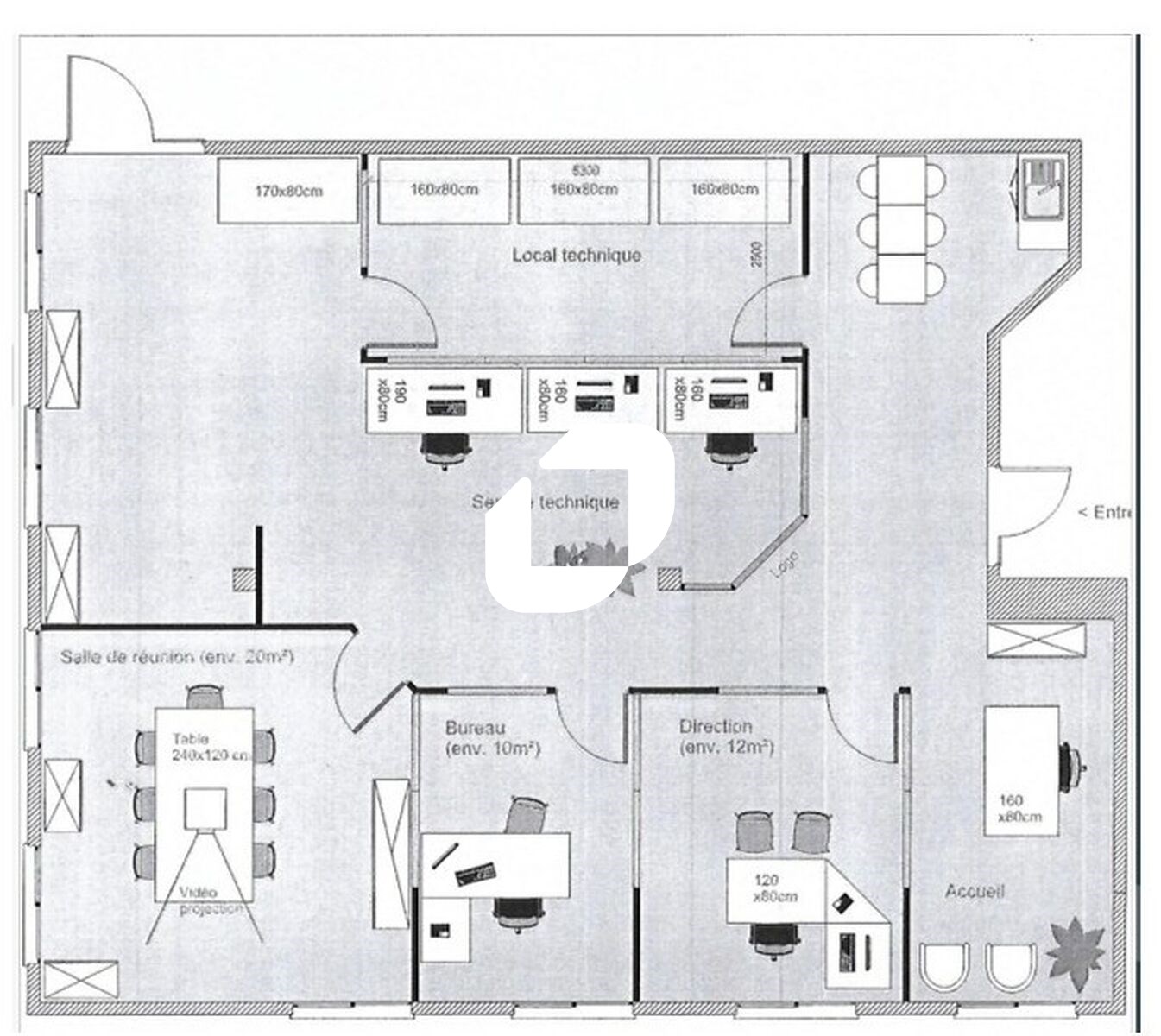
À Acheter ou à Louer Bureaux et Activités 128 m² VOISINS LE BRETONNEUX (78960)
Ajouter au comparateur
Vous souhaitez faciliter votre recherche ?
Créez un compte
Présentation du bien
Immprove vous propose à la location ou à la vente une surface de bureaux de 128 m² en rez-de-chaussée, accompagnée de 6 places de stationnement en extérieur, le tout au sein de la ZA de la Grande-Île à Voisins-le-Bretonneux.
Surface totale
Nature
Divisibilité
Etat des locaux
128 m²
Bureaux et Activités
Non
Rénové
Prix & Conditions
Loyer :
150 € /m²/an (HT/HC)
1 600 € /mois (HT/HC)
19 200 € /an (HT/HC)
Vente :
230 001 € (HD)
1 796.88 € /m² (HD)
Impôt foncier :
3636.00
Dépôt de garantie :
3 mois de loyer HT HC
Conditions location :
Les charges comprennent l’entretiens des parties communes, des parkings et des espaces verts. Places de parkings N° 1 à 6
Prestations & équipements du bien
Le bâtiment
Parties communes de qualités
Les espaces de travail
Fibre optique
Commerces de proximité .Locaux rénovés
Faux plafonds
Plinthes périphériques
Prises RJ45
Les accès
Accès véhicules légers
Sécurité du site
Site clos
Interphone
Extérieur
Bon ratio de parkings : 6 places de stationnement extérieures
Autres
Environnement calme et verdoyant
Bureaux semi-cloisonnés
Kitchenette
Double portes de livraisons
Sanitaires en parties communes
Les charges comprennent l’entretiens des parties communes, des parkings et des espaces verts. Places de parkings N° 1 à 6
Répartition & surfaces des espaces
Tableau des divisibilités
| Type | Étage | Surface | Loyer (€/m²/an HT HC) |
Charges (€/m²/an HT HC) |
Prix achat (€/m² HT HC) |
Charges (achat) (€/m² HT HC) |
|---|---|---|---|---|---|---|
| Parkings | Prix sur demande | Prix sur demande | Prix sur demande | Prix sur demande | ||
| Bureaux | Rez-de-Chaussée | 128 m² | 150.00 | 23.20 | 1 796.88 | 23.20 |
Performance énergétique du bien (DPE)


Informations non contractuelles
Localisation & accès
Transports en commun à proximité
Gare de St Quentin en Yvelines
Réseau SQYBUS
Accès routier
Autoroutes A12, A13 et A86
Nationale N12
Nos nouveaux biens qui pourraient vous intéresser
Bureaux et Activités - 1 850m²
VOISINS LE BRETONNEUX (78960)
VOISINS LE BRETONNEUX (78960)
Prix sur demande
Disponibilité : Immédiate
Surface : 1 850 m²
Les entrepreneurs ayant consulté cette offre ont aussi consulté celles ci
Bureaux et Activités - 1 850m²
VOISINS LE BRETONNEUX (78960)
VOISINS LE BRETONNEUX (78960)
Prix sur demande
Disponibilité : Immédiate
Surface : 1 850 m²
Bureaux et Activités - 140m²
EVRY COURCOURONNES (91000)
EVRY COURCOURONNES (91000)
Prix sur demande
Disponibilité : Immédiate
Surface : 140 m²
Bureaux et Activités - 422m²
CAMPBON (44750)
CAMPBON (44750)
Prix sur demande
Disponibilité : Immédiate
Surface : 422 m²
Bureaux et Activités - 6 381.20m² Divisibles à partir de 349 m²
PESSAC (33600)
PESSAC (33600)
Prix sur demande
Disponibilité : Nous consulter
Surface : divisibles à partir de 349 m²