Retour
Bureaux et Activités - 1 340m² à Acheter
. Fibre optique . Sol PVC
. Faux plafonds
. Luminaires encastrés
. Climatisation réversible sur certains lots
. Câblage informatique et téléphonique
. Prises RJ45
. Local technique
. Sanitaires privatifs
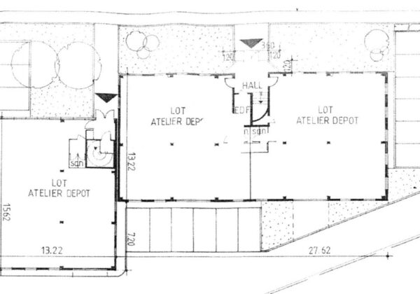
. 2 lots d'activités légères en RDC
. 1 accès de plain-pied par lot
. Hauteur libre 3m50
Bureaux et Activités - 1 340m² à Acheter
RUE DE RIS VIRY CHATILLON (91170)
DESCRIPTION
Situé à proximité immédiate de la Nationale 7 et de la gare RER D de Viry-Châtillon, Immprove vous présente une opportunité d'acquisition exceptionnelle : un bâtiment polyvalent à vendre de 1334 m² dont 533 m² disponibles, comprenant des bureaux à la fois au rez-de-chaussée et à l'étage.
En savoir plus
. Interphone. Fibre optique . Sol PVC
. Faux plafonds
. Luminaires encastrés
. Climatisation réversible sur certains lots
. Câblage informatique et téléphonique
. Prises RJ45
. Local technique
. Sanitaires privatifs
. 2 lots d'activités légères en RDC
. 1 accès de plain-pied par lot
. Hauteur libre 3m50
Consommations énergétiques


Informations non contractuelles
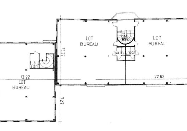
Tableau des divisibilités
| Type | Étage | Surface | Prix achat (€/m² HT HC) |
Charges (achat) (€/m² HT HC) |
|---|---|---|---|---|
| Activités | Rez-de-Chaussée | 163 m² | Prix sur demande | Prix sur demande |
| Activités | Rez-de-Chaussée | 163 m² | Prix sur demande | Prix sur demande |
| Bureaux | 1er étage | 164 m² | Prix sur demande | Prix sur demande |
| Bureaux | 1er étage | 159 m² | Prix sur demande | Prix sur demande |
| Bureaux | 2ème étage | 162 m² | Prix sur demande | Prix sur demande |
| Bureaux | 2ème étage | 160 m² | Prix sur demande | Prix sur demande |
| Bureaux | Rez-de-Chaussée | 181 m² | Prix sur demande | Prix sur demande |
| Bureaux | 1er étage | 188 m² | Prix sur demande | Prix sur demande |
| Parkings | Prix sur demande | Prix sur demande |
Caractéristiques
- Surface 1 340 m²
- Etat des locaux Bon état
- Nbre Parking 21
- Interphone oui
Adresses
approximatives
Adresses
précises
Les entrepreneurs ayant consulté cette offre ont aussi consulté celles ci
Les services Immprove
Une gamme complète de services qui facilitent vos démarches et destinée à satisfaire vos attentes