Retour
Bureaux et Activités - 239.60m² à Acheter
. Bureaux cloisonnés
. Salle de réunion
. Décloisonnement possible
. Hauteur libre : 4,9m
. Porte sectionnelle de plain-pied
Bureaux et Activités - 239.60m² à Acheter
NANTERRE (92000)
DESCRIPTION
Immprove vous propose un batiment indépendant alliant bureaux fraichement rénovés, espace de stockage-activité et d'une cour privative. L’actif est situé au sein d’une zone d’activité recherchée et proche des axes routiers. Idéal pour artisans, paysagistes, stockage, etc… L'agrandissement de la surface couverte est envisageable. Disponible de suite !
En savoir plus
. Rénové. Bureaux cloisonnés
. Salle de réunion
. Décloisonnement possible
. Hauteur libre : 4,9m
. Porte sectionnelle de plain-pied
Consommations énergétiques


Informations non contractuelles
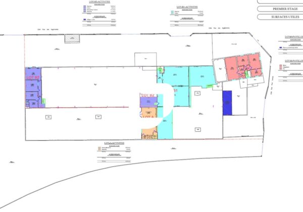
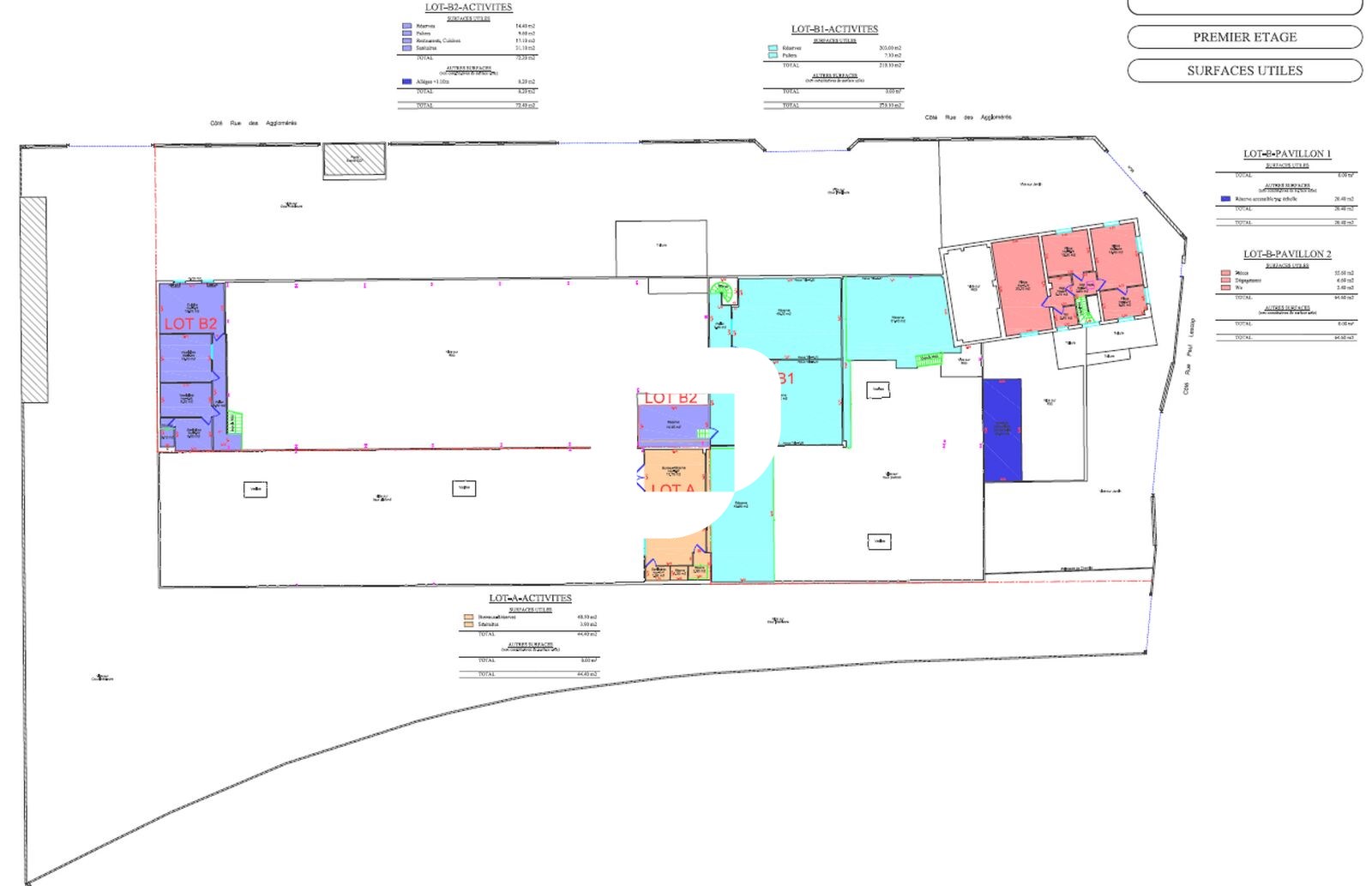
Tableau des divisibilités
| Type | Étage | Surface | Prix achat (€/m² HT HC) |
Charges (achat) (€/m² HT HC) |
|---|---|---|---|---|
| Activités | Rez-de-Chaussée | 72 m² | 3 262.59 | Prix sur demande |
| Bureaux | Rez-de-Chaussée | 103 m² | 3 263.59 | Prix sur demande |
| Terrain | Rez-de-Chaussée | 256 m² | Prix sur demande | Prix sur demande |
| Bureaux | 1er étage | 65 m² | 3 263.59 | Prix sur demande |
Caractéristiques
Loi Carrez et affectation juridique en cours de détermination
- Surface 239.60 m²
Adresses
approximatives
Adresses
précises
Les entrepreneurs ayant consulté cette offre ont aussi consulté celles ci
Les services Immprove
Une gamme complète de services qui facilitent vos démarches et destinée à satisfaire vos attentes