Retour
Disponibilité 4e trimestre 2026
À Acheter Entrepôts 5 300 m² CHEMIN DE LA QUEUE EN BRIE CHENNEVIERES SUR MARNE (94430)
Ajouter au comparateur
Vous souhaitez faciliter votre recherche ?
Créez un compte
Présentation du bien
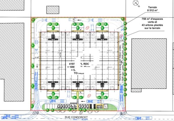
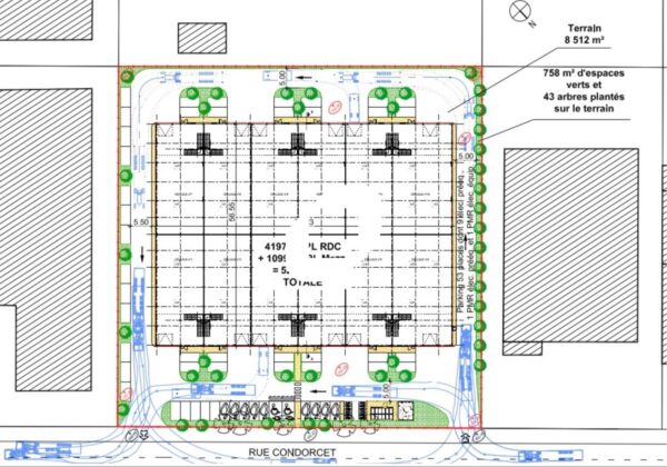
A proximité des autoroutes A4, A86 et N104, Immprove vous propose en VEFA un bâtiment d’activités neuf de 5 300 m² environ et adaptable à vos besoins, situé dans une ZI entièrement clos et gardiennée.
Surface totale
Nature
Divisibilité
Etat des locaux
5 300 m²
Entrepôts
Non
Neuf
Prix & Conditions
Vente :
2 100.00 € (HD)
2 100.00 € /m² (HD)
Prestations & équipements du bien
Le bâtiment
Bâtiment indépendant et neuf
Façade en bardage double-peau
Le confort au quotidien
Climatisation réversible dans les bureaux
Les accès
Accès poids lourds . Chauffage par aérotherme gaz
Quais possible
Porte sectionnelle de plain-pied : 12 possible
Dimensions porte : 4 (H) x4 (L) m
Services & espaces partagés
Réfectoire / Cafétéria
Prestations spécifiques
Charge au sol : 3 tonnes / m²
Hauteur libre : 9 mètres
Autres
Panneaux photovoltaïques en toiture
Toiture en bac acier
Locaux sociaux avec :
Douche et vestiaires
Sanitaires PMR
Répartition & surfaces des espaces
Tableau des divisibilités
| Type | Étage | Surface | Prix achat (€/m² HT HC) |
Charges (achat) (€/m² HT HC) |
|---|---|---|---|---|
| Activités | 5 300 m² | 2 100.00 | Prix sur demande |
Performance énergétique du bien (DPE)


Informations non contractuelles
Localisation & accès
Transports en commun à proximité
Accès routier
A4- A104 - A86
D4 ; N104 ; N4
Adresses
approximatives
Adresses
précises
Nos nouveaux biens qui pourraient vous intéresser
Entrepôts - 6 295m²
SAINT HERBLAIN (44800)
SAINT HERBLAIN (44800)
6 000 016.30€ HT HC
Disponibilité : FIN 2026
Surface : 6 295 m²
Entrepôts - 1 099.84m²
CHOISY LE ROI (94600)
CHOISY LE ROI (94600)
0.00€ HT HC
Disponibilité : Après accord
Surface : 1 099.84 m²
Les entrepreneurs ayant consulté cette offre ont aussi consulté celles ci
Entrepôts - 1 099.84m²
CHOISY LE ROI (94600)
CHOISY LE ROI (94600)
0.00€ HT HC
Disponibilité : Après accord
Surface : 1 099.84 m²
Entrepôts - 57 000m²
PIERRELATTE (26700)
PIERRELATTE (26700)
Prix sur demande
Disponibilité : 12 mois après accord
Surface : 57 000 m²